Ons kantoor is lid van Baerz & Co Luxury Homes; een internationaal platform dat exclusieve woningmakelaars met elkaar verbindt. Neem contact op met ons secretariaat voor meer informatie over het landelijke aanbod, waarvan u hieronder een selectie kunt bekijken.

BERGEN (NH)
Wiertdijkje 1 - 1861 CE
هولندا

Angeline Croonen profile image
Angeline Croonen
Real Estate Agent
€1,195,000 k.k.
منطقة المعيشة
194m2
حجم الأرض
635m2
غرف النوم
2

الوصف

تقع فيلا Bergen NH في موقع مرغوب للغاية، وتمنح فرصة نادرة للسكن مع إطلالات بانورامية على الأراضي الزراعية، والطاحونة، والكثبان الرملية البعيدة. تجمع هذه الفيلا المعروضة للبيع في Bergen NH بين الطابع المميز والخصوصية، وتقدم مشاهد يومية متجددة للطبيعة الهولندية المتقلبة من كل زاوية.

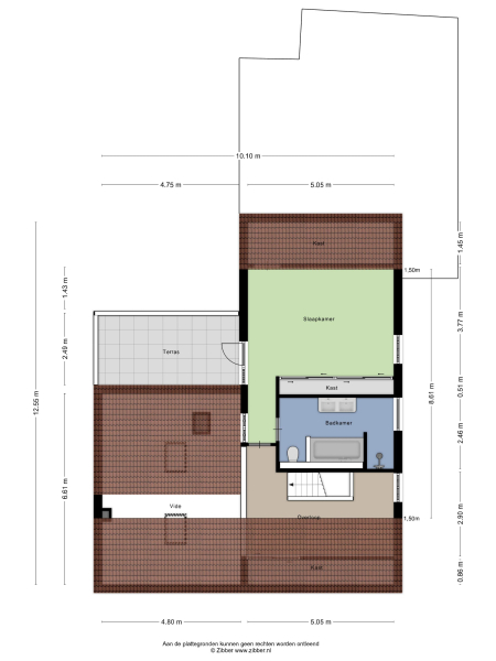
يمتد المنزل بمساحة 194 م² من حديقة أمامية عميقة، حيث تحافظ النباتات الناضجة والمدخل المُسيج على الخصوصية. تم تصميم الطابق الأرضي ليمنح مرونة في العيش، حيث يتوفر فيه غرفة نوم مع حمام داخلي تقع بشكل ملائم لمعيشة في طابق واحد. هناك أيضاً غرفة منفصلة يمكن استخدامها كمكتب أو غرفة ضيوف مع دش إضافي، لتلبي الاحتياجات المهنية واستضافة الزوار.

تتميز غرفة المعيشة بمدفأة تعمل بالغاز، وإطارات خشبية مكشوفة ونوافذ بزجاج معشق تعكس طابع الفيلا التراثي. تتيح الأسقف العالية تدفق الضوء الطبيعي، بينما تمتد المطبخ المجاور، المزود بأجهزة مدمجة، إلى غرفة مساعدة توفر أحدث وسائل الراحة. في الطابق العلوي، تتصل غرفة النوم الرئيسية بتراس واسع على السطح للاستمتاع بغروب الشمس فوق الريف. أما الحمام العلوي، الذي تم تجديده في عام 2018، فيحتوي على حوض استحمام ودش منفصل واثنين من الأحواض.

يمتد التراس المواجه للجنوب الغربي مساحة المعيشة إلى الهواء الطلق، ليكون مثالياً لأمسيات الصيف. ويوجد موقف داخلي لعدة سيارات ضمن الحدود المؤمنة للفيلا. وبفضل الوصول المباشر للغابات وقربها من حياة قرية Bergen والشاطئ، توفر الفيلا توازناً متناغماً بين الخصوصية والمنظر الطبيعي وسهولة الوصول للمرافق المحلية. ومع أرض بمساحة 635 م²، وغرفتي نوم وحمامين، تدعوكم هذه الفيلا لتشكيل مستقبلها بأسلوب أنيق وهادئ.

الميزات

نقل الملكية
السعر المطلوب
€ 1.195.000 k.k.
الحالة
beschikbaar
القبول
in overleg
البناء
نوع المنزل
Eengezinswoning
نوع المبنى
vrijstaande woning
فترة البناء
1948
تقييم الطاقة
F
نوع السقف
samengesteld dak
غرف النوم
2
الحمامات
3
المساحات السطحية والحجم
منطقة المعيشة
194 m2
مساحة داخلية أخرى
11 m2
المساحة الخارجية الملحقة بالمبنى
13 m2
الحجم بالأمتار المكعبة
763 m3
حجم الأرض
635 m2
المرافق
Mechanische ventilatie
Tv kabel
Rookkanaal
Aan bosrand
Aan rustige weg
Vrij uitzicht
Buiten bebouwde kom
In bosrijke omgeving
Landelijk gelegen
Baerz & Co Property Brochure

كتيب

فيديوهات

مخططات الطوابق

Croon Makelaars

Breelaan 41
1861 GD Bergen

info@croonmakelaars.nl
+31 (0)72 743 32 44

www.croonmakelaars.nl

طلب معلومات / مشاهدة

Angeline Croonen profile image
Angeline Croonen
Real Estate Agent