Ons kantoor is lid van Baerz & Co Luxury Homes; een internationaal platform dat exclusieve woningmakelaars met elkaar verbindt. Neem contact op met ons secretariaat voor meer informatie over het landelijke aanbod, waarvan u hieronder een selectie kunt bekijken.

'S-GRAVENHAGE
Hellingkade 82 - 2583 WC
Die Niederlande

Irma Postma profile image
Irma Postma
Real estate agent
€800,000 k.k.
Wohnbereich
86m2
Grundstücksgröße
N/A
Schlafzimmer
2

Beschreibung

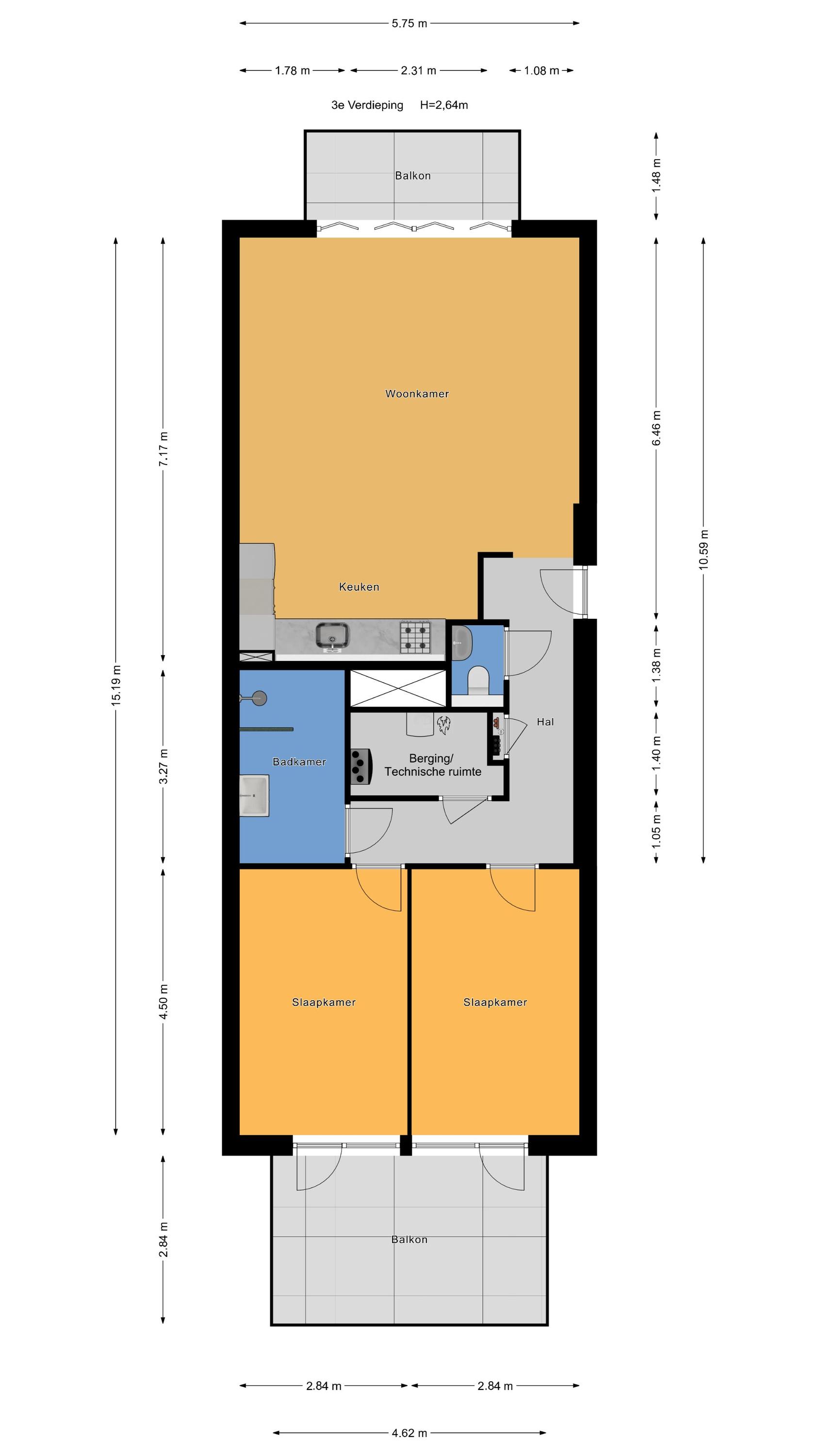
Das Apartment Scheveningen bietet 86 m² anspruchsvolles Küstenleben, direkt am Hafen gelegen mit beeindruckendem Meerblick. Diese neu gebaute Zwei-Zimmer-Residenz im dritten Stock vereint Dynamik und Privatsphäre. Große Fenster und Schiebetüren lassen das Panorama-Licht und den Rhythmus des Wassers in die Räume strömen. Hafenansichten und das lebendige Treiben auf der Scheveninger Promenade verknüpfen den Alltag mit den wechselnden Stimmungen des Meeres.

Der offene Wohnbereich wird von einer NEXT-125 Küche mit Komposit-Arbeitsplatte und integrierten Geräten geprägt, darunter ein Quooker, ein Induktionskochfeld mit Dunstabzug sowie ein Kombi-Backofen. Fußbodenheizung und -kühlung verlaufen durch das gesamte Apartment und erreichen die Energieeffizienz von Label A+++. Jeder Raum – mit Ausnahme des Technikraums – ist komfortabel ausgestattet. Der nach Süden ausgerichtete Balkon auf der Rückseite verspricht ruhige Momente mit Blick auf einen gemeinschaftlichen Innenhof und ist von beiden Schlafzimmern zugänglich.

Den Bewohnern stehen ein privater Stellplatz mit der Möglichkeit einer individuell zuschaltbaren Ladestation für Elektroautos sowie ein gemeinsamer Fahrradraum mit Ladestationen zur Verfügung. Die komplett gedämmte, gasfreie Bauweise und die eigene Wärmepumpe bringen dieses Apartment an die Spitze nachhaltigen Wohnens. In direkter Nähe liegen die Boutiquen der Frederik Hendriklaan, das historische Zentrum von Den Haag, sowie die lebendigen Restaurants und Strände am Hafen – all das unterstreicht den exklusiven Lebensstil, den nur eine Luxuswohnung zum Verkauf in Scheveningen bieten kann.

Merkmale

Eigentumsübertragung
Verkaufspreis
€ 800.000 k.k.
Status
verkocht onder voorbehoud
Annahme
in overleg
Bau
Art des Hauses
Portiekflat
Gebäudetyp
appartement
Bauzeitraum
2024
Energieausweis
A+++
Dachtyp
plat dak
Schlafzimmer
2
Badezimmer
1
Flächen und Volumen
Wohnbereich
86 m2
Andere Innenräume
0 m2
Außenbereich am Gebäude
18 m2
Externer Lagerraum
6 m2
Volumen in Kubikmetern
289 m3
Einrichtungen
Mechanische ventilatie
Lift
Glasvezel kabel
Balansventilatie
Vrij uitzicht
Open ligging
Zeezicht
Baerz & Co Property Brochure

Broschüre

Videos

Grundrisse

Nelisse Makelaarsgroep

Statenlaan 128
2582 GW Den Haag

info@nelisse.nl
+31 (70) 350 14 00

www.nelisse.nl

Information / Besichtigungsanfrage

Irma Postma profile image
Irma Postma
Real estate agent