Ons kantoor is lid van Baerz & Co Luxury Homes; een internationaal platform dat exclusieve woningmakelaars met elkaar verbindt. Neem contact op met ons secretariaat voor meer informatie over het landelijke aanbod, waarvan u hieronder een selectie kunt bekijken.

AMSTERDAM
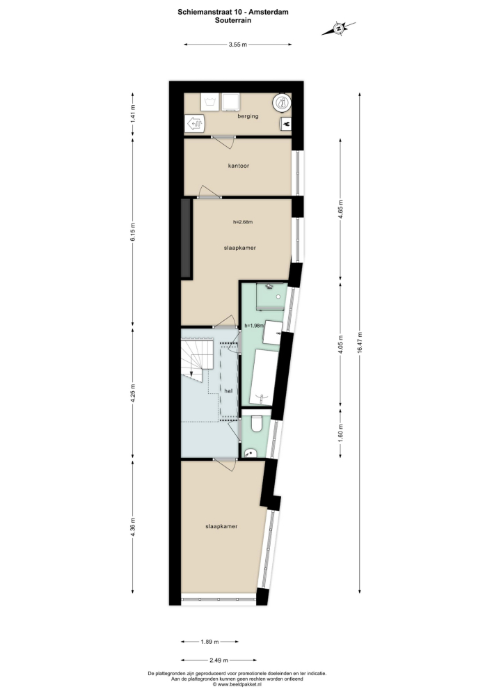
Schiemanstraat 10 - 1013 MJ
Die Niederlande

Stefano B. Djoemena profile image
Stefano B. Djoemena
Beëdigd register makelaar o.z.
€985,000 k.k.
Wohnbereich
100m2
Grundstücksgröße
80m2
Schlafzimmer
2

Beschreibung

Das Townhouse-Apartment in Amsterdam bietet eine einzigartige Gelegenheit, in einem zeitgenössischen Zuhause zu wohnen, das von zurückhaltender Architektur und urbaner Lebendigkeit geprägt ist. Das neu errichtete, an ein Lagerhaus erinnernde Gebäude an der Schiemanstraat 10 verfügt über ein Erdgeschossapartment mit rund 100 m² Wohnfläche. Es verbindet markante Fassadendetails mit ruhigem Blick auf den Kanal und einem privaten Eingang. Die lange Silhouette aus klassischem Backstein, symmetrischen Fenstern und schlanken Aluminiumrahmen in RAL 6006 prägt das Erscheinungsbild des Hauses. A+++ Energieeffizienz, Dreifachverglasung, Solarpanels und eine moderne Luft-Wärmepumpe sorgen für nachhaltige Zukunftsfähigkeit.

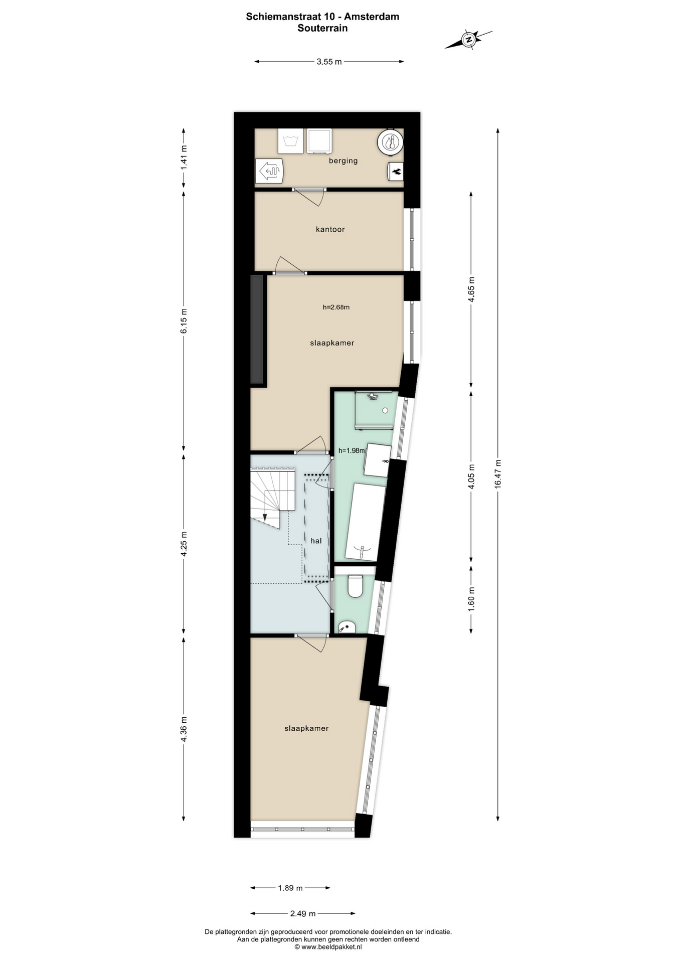
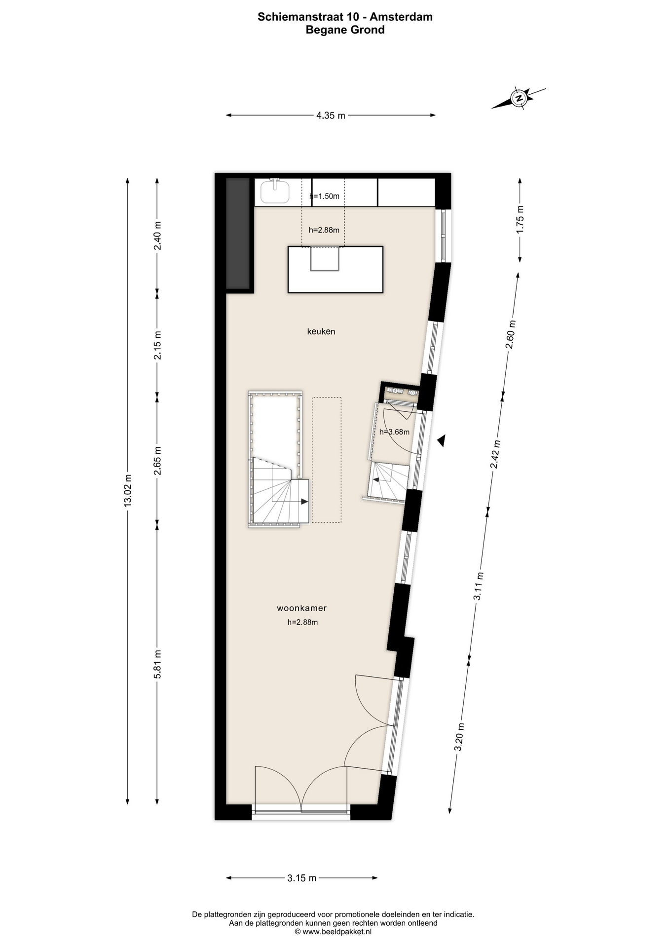
Die erhöhte Hauptebene ist dank großzügiger Fenster zur Kanalfront lichtdurchflutet und erreicht Raumhöhen von nahezu 2,90 Metern. Französische Balkontüren und eine ausklappbare Bank schaffen eine diskrete Verbindung zum Westerkanaal. Das Untergeschoss in voller Raumhöhe bietet zwei Schlafzimmer, einen Arbeitsbereich, einen Hauswirtschaftsraum und ein weitläufiges Bad – alles mit technischer Kohärenz und mechanischer Belüftung ausgestattet. Die Innenräume werden als Ausbaufassung übergeben und bieten Ihnen Freiheit für Ihre eigene stilistische Gestaltung, ergänzt durch eine Beratung von Co van der Horst.

Vor Ihrer Haustür entfaltet sich Amsterdams historisches Stadtzentrum entlang ruhiger Kais. Haarlemmerplein, die belebte Haarlemmerstraat und der Westerpark sind fußläufig erreichbar und vereinen Kultur, Gastronomie und Grünflächen. Zudem genießen Sie eine hervorragende Anbindung an den Hauptbahnhof und den Autobahnring A10. Für all jene, die ein individuell gestaltbares Zuhause mit starker Ortsbindung suchen, ist dieses luxuriöse Townhouse-Apartment in Amsterdam ein Statement und zugleich ein Refugium.

Entdecken Sie Amsterdam mit Baerz, Ihrem vertrauenswürdigen persönlichen Immobilienfinder und Berater

Der Zugang zum Luxusimmobilienmarkt von Amsterdam erfordert tiefgreifendes lokales Know-how, Diskretion und Verhandlungsgeschick. Erstklassige Berater verschaffen Zugang zu privaten Angeboten, erklären komplexe Besitzrechte und erkennen Werte in einem Markt, in dem Opportunitäten selten sichtbar werden. Beratungsteams prüfen jedes Objekt sorgfältig und vertreten Ihre Interessen souverän – sie stärken Ihre Verhandlungsposition, begleiten Transaktionen nahtlos und wahren Ihre Privatsphäre.

Häufige Fallstricke vermeiden

Internationale Käufer verlieren oft wertvolle Zeit, weil sie sich durch doppelte, veraltete oder irreführende Online-Angebote kämpfen müssen – besonders da fast 30% aller Luxusimmobilien überhaupt nicht auf dem Markt erscheinen.
Makler des Verkäufers vertreten die Interessen des Verkäufers, nicht Ihre, und schon eine einfache Anfrage kann dazu führen, dass eine Agentur Sie ohne Ihre Zustimmung als deren „Kunden“ registriert.
Mit Baerz Property Finders & Advisors umgehen Sie all diese Fallstricke vollständig.
Wir handeln ausschließlich in Ihrem Interesse, bieten unabhängige Vertretung, transparente Beratung und Zugang zu jedem verfügbaren Objekt – einschließlich privater und off-market Angebote, die andere nie zu sehen bekommen.

Neugierig, wie Sie Ihren eigenen Personal Property Advisor sichern können? Kontaktieren Sie uns, um zu erfahren, wie wir Ihre Interessen vertreten und Ihnen den gesamten Markt öffnen können.

Merkmale

Solarmodule
Eigentumsübertragung
Verkaufspreis
€ 985.000 k.k.
Status
beschikbaar
Annahme
in overleg
Bau
Art des Hauses
Dubbel benedenhuis
Gebäudetyp
appartement
Bauzeitraum
2025
Energieausweis
A+++
Dachtyp
samengesteld dak
Schlafzimmer
2
Badezimmer
1
Flächen und Volumen
Wohnbereich
100 m2
Andere Innenräume
0 m2
Volumen in Kubikmetern
420 m3
Grundstücksgröße
80 m2
Einrichtungen
Mechanische ventilatie
Frans balkon
Zonnepanelen
Aan water
Aan rustige weg
In centrum
Vrij uitzicht
Aan vaarwater
 

Videos

Lunshof Makelaardij Amsterdam

Keizersgracht 555
1017 DR Amsterdam

info@lunshof.nl
+31 575 55 05

www.lunshof.nl

Information / Besichtigungsanfrage

Stefano B. Djoemena profile image
Stefano B. Djoemena
Beëdigd register makelaar o.z.