Ons kantoor is lid van Baerz & Co Luxury Homes; een internationaal platform dat exclusieve woningmakelaars met elkaar verbindt. Neem contact op met ons secretariaat voor meer informatie over het landelijke aanbod, waarvan u hieronder een selectie kunt bekijken.

BAARLE-NASSAU
Hoogbraak 48 - 5111 CT
Niederlande

Andy Tjokrokoesoemo profile image
Andy Tjokrokoesoemo
Real Estate Agent
€1,595,000 k.k.
Wohnfläche
466m2
Grundstücksgröße
2270m2
Schlafzimmer
3

Beschreibung

Die Villa Baarle-Nassau lädt zu einem Leben voller Raffinesse ein. Diese großzügige Villa bietet auf 466 m² Wohnfläche und einem privaten Grundstück von 2.270 m² eine Verbindung aus repräsentativer Architektur und zeitgemäßem Komfort an einer erstklassigen Adresse im Herzen von Baarle-Nassau. Hier vereinen sich ein klarer Raumeindruck, fließende Übergänge und viel Tageslicht mit durchdachten Sichtachsen, die Sie durch jedes weitläufige Zimmer führen. Die Villa Baarle-Nassau verfügt über die Energieklasse A, was dauerhafte Behaglichkeit garantiert.

Im Erdgeschoss erwarten Sie drei miteinander verbundene Wohnbereiche, die sich durch hohe Decken und großzügige Fenster auszeichnen und dennoch jeweils einen eigenen Charakter besitzen. Parkettböden und ein integrierter Gaskamin schaffen eine ruhige Atmosphäre, während Wohn- und Essbereiche nahtlos in die Veranda und den gestalteten Garten übergehen. Die beeindruckende Küche mit offenem Grundriss und großzügiger Mittelinsel ist mit hochwertigen Geräten, darunter modulare BORA-Systeme und ein Weinklimaschrank, ausgestattet – Räume der Begegnung und des täglichen Genusses. Ein angrenzender multifunktionaler Flügel bietet Hauswirtschaftsraum, Büro, Gartenraum sowie einen separaten Eingang und eignet sich flexibel als Gästehaus, Pflegebereich oder professionelles Arbeitsumfeld.

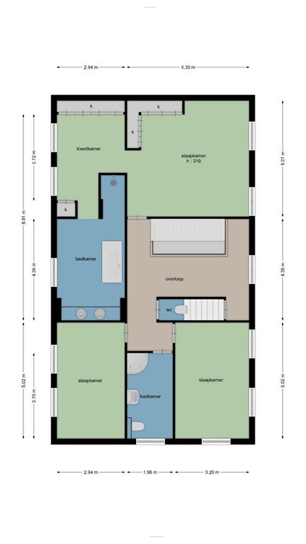
Das Obergeschoss umfasst eine Master-Suite mit Blick ins Grüne, begehbarem Kleiderschrank und eigenem Bad mit bodengleicher Dusche, freistehender Badewanne und Doppelwaschtisch. Zwei weitere Schlafzimmer und ein zweites Badezimmer unterstreichen die wohldurchdachten Proportionen des Hauses; Helligkeit und Deckenhöhe verleihen jedem Raum eine stille Dynamik. Der Dachboden, ein großzügiger und vielseitig nutzbarer Bereich mit Anschlussmöglichkeit für Waschmaschine und Trockner, bietet Potenzial zur weiteren Individualisierung.

Außen laden aufwendig gestaltete Außenanlagen zum entspannten Aufenthalt im Freien ein. Rasenflächen, reife Bepflanzungen, Obstbäume und verschiedene Terrassenbereiche umgeben das Haus, ergänzt durch eine beheizte Veranda mit Einbauleuchten und Bewässerungssystem. Praktische Details wie Doppelgarage, großzügige Parkmöglichkeiten sowie vorbereitete Ladestation kommen hinzu. Für Sicherheit sorgt eine integrierte Alarmanlage.

Diese Immobilie in Baarle-Nassau vereint Privatsphäre mit bester Anbindung: In unmittelbarer Nähe finden sich niederländische und belgische Schulen, Sportvereine, Supermärkte und medizinische Einrichtungen. Die einzigartige Enklavenlage des Dorfes im grünen Dreieck zwischen Breda, Tilburg und Turnhout garantiert Zugang zu Naturpfaden und kulturellen Angeboten. Diese luxuriöse Villa zum Verkauf in Baarle-Nassau ist bezugsbereit und richtet sich an Menschen, die Ruhe und durchdachte Details schätzen.

Entdecken Sie Baarle-Nassau mit Baerz, Ihrem vertrauenswürdigen persönlichen Immobilienfinder & Berater

Das besondere Immobilienumfeld von Baarle-Nassau erfordert tiefgehende Ortskenntnis und internationale Erfahrung. Die grenzüberschreitenden Besonderheiten und das begrenzte Angebot erschließen Gelegenheiten oft nur für Eingeweihte mit Zugang zu diskreten Off-Market-Angeboten. Erfahrene Berater verfügen über fortgeschrittene Verhandlungsfähigkeiten, kennen die Abläufe beider Länder und schützen Klienten vor gängigen Fallstricken, um Privatsphäre und Wert zu optimieren.

Vermeiden Sie häufige Fallstricke

Internationale Käufer verschwenden oft wertvolle Zeit mit doppelten, veralteten oder irreführenden Online-Angeboten, insbesondere da fast 30% der Luxusimmobilien nie auf dem öffentlichen Markt erscheinen. Verkäufermakler vertreten die Interessen des Verkäufers, nicht die des Käufers. Selbst die Anfrage nach Informationen zu einer Immobilie kann dazu führen, dass ein Verkäufermakler Sie ohne Ihre Zustimmung als seinen „Kunden“ registriert.
Mit Baerz Property Finders & Advisors vermeiden Sie all diese Fallstricke vollständig. Wir arbeiten ausschließlich in Ihrem Auftrag, bieten unabhängige Vertretung, klare Beratung und Zugang zu allen verfügbaren Immobilien, einschließlich Off-Market-Möglichkeiten, die andere nie zu sehen bekommen.

Interessiert an einem Personal Property Advisor?

Wir zeigen Ihnen alle verfügbaren Häuser an einem Ort. Kontaktieren Sie uns gerne, um zu erfahren, wie wir Ihre Bedürfnisse erfüllen und Ihre Interessen exklusiv schützen können.

Merkmale

Alarmsystem
Garage
Eigentumsübertragung
Verkaufspreis
€ 1.595.000 k.k.
Status
Available
Annahme
In Concert
Referenz
179
Bau
Art des Hauses
Villa
Gebäudetyp
Detached House
Bauzeitraum
2009
Energieeffizienzklasse
A
Dachtyp
hipped
Schlafzimmer
3
Badezimmer
2
Oberflächen und Volumen
Wohnfläche
466 m2
Anderer Innenbereich
25 m2
Außenbereich am Gebäude angebaut
17 m2
Volumen in Kubikmetern
1854 m3
Grundstücksgröße
2270 m2
Einrichtungen
Alarm
Garage
Garden
Baerz & Co Property Brochure

Broschüre

Videos

Grundrisse

Van Baarle Makelaardij

Hoogbraak 1
5111 CS Baarle-Nassau

andy@vanbaarlemakelaardij.com
+31 013762 02 02

www.vanbaarlemakelaardij.com

Information / Besichtigungsanfrage

Andy Tjokrokoesoemo profile image
Andy Tjokrokoesoemo
Real Estate Agent