Welkom bij Makelaarschap - Elburg Internationaal. Ook ver buiten Nederland zijn wij zeer actief. Via ons internationale netwerk binnen Baerz & Co Luxury Homes begeleiden onze Nederlandse (!) partners u vakkundig bij de aankoop van exclusieve tweede huizen. U vindt ons in 20 landen rond de Middellandse zee, de Alpen, Mexico en Dubai. Neem voor meer informatie contact op met ons secretariaat.

BARCELONA
Spanien

Chantal Cunningham profile image
Chantal Cunningham
Chief Property Advisory
€2,100,000
Wohnbereich
201m2
Grundstücksgröße
N/A
Schlafzimmer
3

Beschreibung

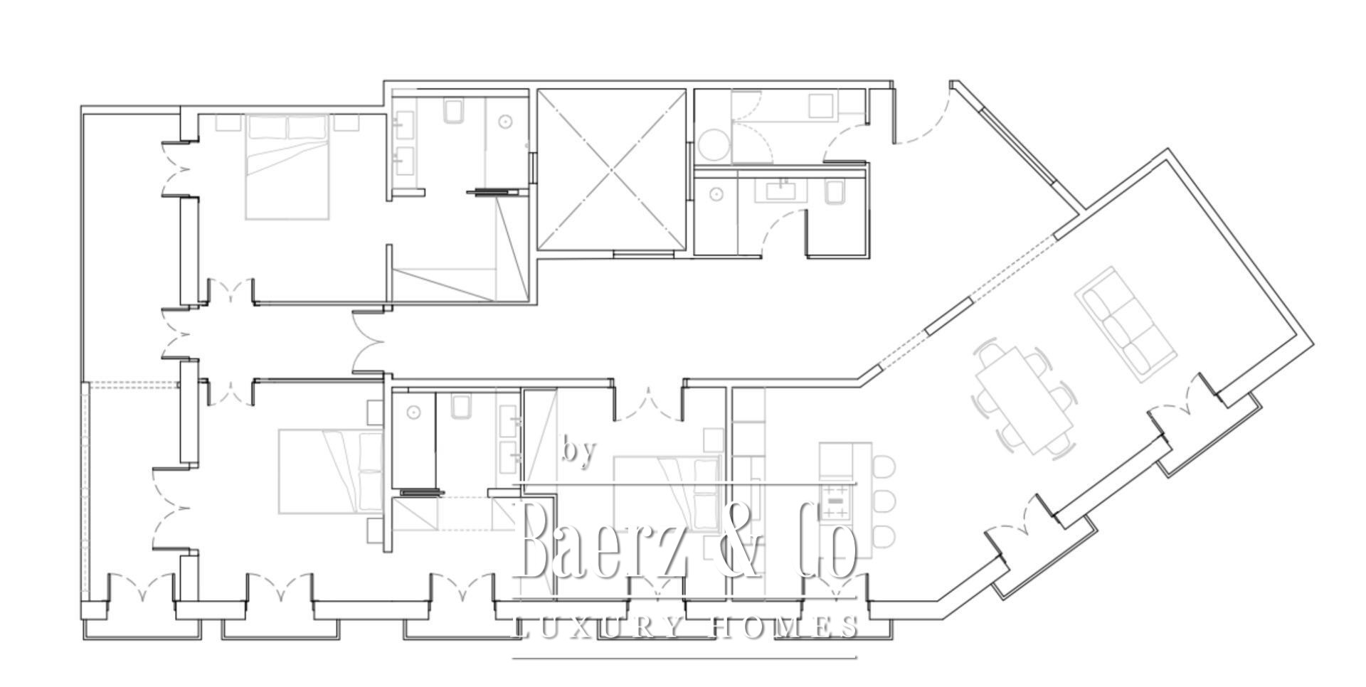
Das Penthouse Barcelona Quadrat d'Or verkörpert gehobenes Wohnen an der Schnittstelle von Calle Girona und Gran Via de les Corts Catalanes. Dieses vollständig renovierte Penthouse mit 201 m² Wohnfläche und einer 20 m² großen Terrasse befindet sich im Herzen von Barcelonas ikonischem Quadrat d'Or und bietet unmittelbaren Zugang zum Passeig de Gràcia und Plaça Catalunya. Die Residenz ist geschaffen für diejenigen, die Wert auf Design, Herkunft und den zeitlosen Charakter historischer Viertel legen.

Die Raumaufteilung bietet drei Doppelschlafzimmer, zwei davon mit eigenem Bad, sowie drei voll ausgestattete Bäder. Originale Hydraulikfliesenböden und Holzelemente wurden sorgfältig restauriert und mit modernem Komfort wie einem Aerothermalsystem kombiniert. Der großzügige Wohn- und Essbereich verschmilzt mühelos mit einer maßgefertigten offenen Küche, die über eine zentrale Kochinsel, hochwertige Geräte von Miele und Liebherr, Neolith-Arbeitsflächen und lackierte Schränke verfügt. Balkone, großzügige Staumöglichkeiten und ein eigener Hauswirtschaftsraum erhöhen den Wohnkomfort.

Von Terrasse und Balkonen strömt Tageslicht herein und erzeugt einen Dialog zwischen eleganter Innenarchitektur und der Skyline Barcelonas. Das Gebäude verfügt über einen Aufzug sowie einen professionellen Concierge-Service. Dieses luxuriöse Penthouse zum Verkauf in Barcelona verbindet kosmopolitische Lebendigkeit mit diskreter Wohnkultur und ist umgeben von Restaurants, Theatern, Boutiquen und architektonischen Wahrzeichen. Das Ergebnis ist eine stille Raffinesse im Zentrum der Stadt.

Entdecken Sie Barcelona mit Baerz, Ihrem vertrauenswürdigen persönlichen Immobilienfinder und Berater

Die Unterstützung eines Experten im Premiumsegment Barcelonas ist von unschätzbarem Wert. Kenntnisse lokaler Marktgegebenheiten, Zugang zu vertraulichen oder Off-Market-Angeboten sowie versierte Verhandlungsführung sind entscheidend. Maßgeschneiderte Beratung bietet Diskretion, belastbare Kontakte und Risikominimierung in jedem Stadium des Kaufs oder Verkaufs und stellt sicher, dass Ziele von Käufern und Verkäufern optimal erreicht werden.

Häufige Fallstricke vermeiden

Internationale Käufer verlieren oft wertvolle Zeit, weil sie sich durch doppelte, veraltete oder irreführende Online-Angebote kämpfen müssen – besonders da fast 30% aller Luxusimmobilien überhaupt nicht auf dem Markt erscheinen.
Makler des Verkäufers vertreten die Interessen des Verkäufers, nicht Ihre, und schon eine einfache Anfrage kann dazu führen, dass eine Agentur Sie ohne Ihre Zustimmung als deren „Kunden“ registriert.
Mit Baerz Property Finders & Advisors umgehen Sie all diese Fallstricke vollständig.
Wir handeln ausschließlich in Ihrem Interesse, bieten unabhängige Vertretung, transparente Beratung und Zugang zu jedem verfügbaren Objekt – einschließlich privater und off-market Angebote, die andere nie zu sehen bekommen.

Neugierig, wie Sie Ihren eigenen Personal Property Advisor sichern können? Kontaktieren Sie uns, um zu erfahren, wie wir Ihre Interessen vertreten und Ihnen den gesamten Markt öffnen können.

Merkmale

Eigentumsübertragung
Verkaufspreis
€ 2.100.000
LAS
Bau
Zimmer
N/A
Schlafzimmer
3
Badezimmer
3
Flächen und Volumen
Wohnbereich
201 m2
Grundstücksgröße
0 m2
Einrichtungen
Balcon
A/A
Telephone
Terrace
Elevator
Wardrobes cupboard
Appliances
Light
Town Gas
Laundry
Automatic Doors
Satellite
T. V.
Clearly
Baerz & Co Property Brochure

Broschüre

Videos

Information / Besichtigungsanfrage

Chantal Cunningham profile image
Chantal Cunningham
Chief Property Advisory

Buying a Luxury Property in Barcelona

Der Luxusimmobilienmarkt Barcelonas begrüßt internationale Bewohner, die anspruchsvolles Wohnen, lebendige Kultur und sichere Investitionsmöglichkeiten suchen. In diesem mediterranen Zentrum erwarten Sie eine Mischung aus Tradition, Gemeinschaft und erstklassigen Dienstleistungen.