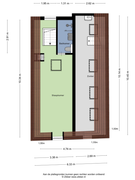
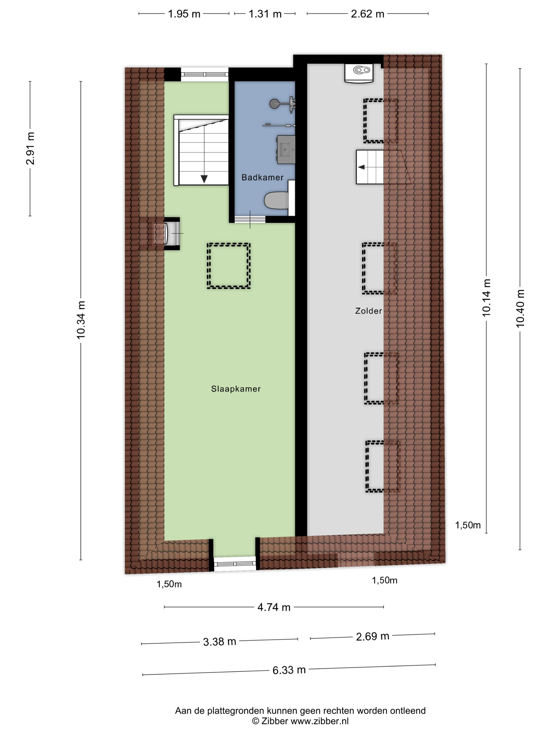
Dieses monumentale Haus in Leiden nimmt eine außergewöhnliche Position im historischen Herzen der Stadt ein, die Fassade öffnet sich zu fesselnden Ausblicken auf den Rhein. Das Anwesen vereint zwei vordere Häuser und eine ruhige rückwärtige Residenz, die nun als ein vielschichtiges, flexibles Zuhause miteinander verbunden wurden. Auf 332 m² verteilen sich sieben Schlafzimmer, fünf davon mit en suite Badezimmern, was jedem Bewohner und Gast Privatsphäre und Komfort bietet. Natürliches Licht durchströmt jeden großzügigen Raum, hohe Decken tragen zu einem Gefühl von Weite und Gelassenheit bei.
Drei verschiedene Dachterrassen, darunter eine großzügige Terrasse neben der Küche und dem Essbereich, bieten für das Stadtleben ungewöhnlich viel Außenraum. Die beiden Küchen des Hauses – eine besonders für Kochbegeisterte geeignet – laden dazu ein, Leidens berühmten Markt und regionale Anbieter zu genießen, die nur einen kurzen Spaziergang vom Eingang entfernt sind. Überreichlich Stauraum findet sich im Untergeschoss, im Keller und im Dachboden, was ein gehobenes Maß an Ordnung und Möglichkeiten ermöglicht.
Architektonisch bedeutend ist dieses Objekt als nationales Monument registriert und liegt in einem geschützten Stadtbild. Moderne Annehmlichkeiten – mechanische Belüftung, Glasfaserkabel, TV und teilweise Doppelverglasung – ergänzen dezent den historischen Charakter. Durch das Teilungsgesetz wird das Haus in eine einzelne Wohnung umgewandelt; ein unabhängiges technisches Gutachten steht potenziellen Käufern zur Verfügung. Dieses Haus ist mehr als ein Wohnsitz – es ist ein Statement für Präsenz in einem der traditionsreichsten Viertel Leidens. Wer ein luxuriöses Haus zum Verkauf in Leiden sucht, das Tradition und modernen Lebensstil vereint, findet hier eine einzigartige Möglichkeit.
Entdecken Sie Leiden mit Baerz, Ihrem vertrauenswürdigen persönlichen Immobilienfinder und Berater
Für den Markterfolg in Leiden ist fundiertes Wissen zu lokalen Traditionen, Rechtsrahmen und diskreten Off-Market-Angeboten essenziell. Erfahrene Berater verschaffen Zugang zu exklusiven Portfolios, verhandeln geschickt und bieten ganzheitliche Unterstützung bei der Strukturierung der Transaktion. Ihr Gespür für Markttrends, ihre Fähigkeit zur Identifikation seltener Gelegenheiten und ihr umfassender Schutz der Kundeninteressen sichern entscheidende Vorteile und Ruhe während des Erwerbsprozesses.
Häufige Fallstricke vermeiden
Internationale Käufer verlieren oft wertvolle Zeit, weil sie sich durch doppelte, veraltete oder irreführende Online-Angebote kämpfen müssen – besonders da fast 30% aller Luxusimmobilien überhaupt nicht auf dem Markt erscheinen.
Makler des Verkäufers vertreten die Interessen des Verkäufers, nicht Ihre, und schon eine einfache Anfrage kann dazu führen, dass eine Agentur Sie ohne Ihre Zustimmung als deren „Kunden“ registriert.
Mit Baerz Property Finders & Advisors umgehen Sie all diese Fallstricke vollständig.
Wir handeln ausschließlich in Ihrem Interesse, bieten unabhängige Vertretung, transparente Beratung und Zugang zu jedem verfügbaren Objekt – einschließlich privater und off-market Angebote, die andere nie zu sehen bekommen.
Neugierig, wie Sie Ihren eigenen Personal Property Advisor sichern können? Kontaktieren Sie uns, um zu erfahren, wie wir Ihre Interessen vertreten und Ihnen den gesamten Markt öffnen können.