Ons kantoor is lid van Baerz & Co Luxury Homes; een internationaal platform dat exclusieve woningmakelaars met elkaar verbindt. Neem contact op met ons secretariaat voor meer informatie over het landelijke aanbod, waarvan u hieronder een selectie kunt bekijken.

SCHOORL
Duinweg 65 - 1871 AD
Niederlande

Angeline Croonen profile image
Angeline Croonen
Real Estate Agent
€2,745,000 k.k.
Wohnfläche
273m2
Grundstücksgröße
7454m2
Schlafzimmer
4

Beschreibung

Das Landhaus Schoorl liegt verborgen am Ende eines langen Waldweges und bietet einen ruhigen Rückzugsort nur wenige Momente von der niederländischen Küste entfernt. Diese außergewöhnliche Residenz, 1935 von Architekt Royaards entworfen, vereint Stille, Natur und Geschichte und macht das Landhaus Schoorl zu einer unvergleichlichen Immobilie.

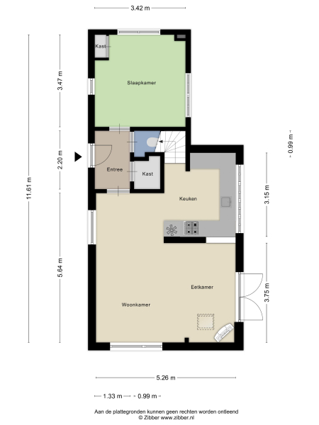
Das Haupthaus besteht aus Materialien aus dem 17. Jahrhundert und spiegelt sein Erbe mit robusten Kaminen, freiliegenden Eichenbalken, Lehmputzwänden und weitläufigen Eichenholzböden wider. Die großzügige Wohnfläche von 273 m² öffnet sich in ruhige Nischen und lichtdurchflutete Räume, darunter ein zum Garten ausgerichtetes Wohnzimmer mit Kamin, ein einladender vorderer Wohnbereich mit erhöhtem Alkoven und ein angeschlossenes Büro mit Blick ins Grüne, das zum konzentrierten Arbeiten inspiriert. Moderne Annehmlichkeiten verbinden sich mit der Geschichte, einschließlich eines Badezimmers, das in Tadelakt ausgeführt ist, und einer zentralen Heizungsanlage.

Die Seele dieses Hauses erstreckt sich nach draußen auf ein vollständig eingezäuntes, 7.454 m² großes Grundstück, das von einem Wassergraben eingefasst und von Dünengräben durchzogen ist, wo der Gesang der Vögel den Alltag begleitet. Auf dem Anwesen finden sich ein separates, voll ausgestattetes Gästehaus, Nebengebäude, ein ruhiger Teepavillon sowie ein Lehm-Pizzaofen, der zu stillen Momenten oder geselligen Zusammenkünften einlädt.

Mit vier Schlafzimmern, zwei Badezimmern, einem erneuerten Reetdach und Kabelanschlüssen ist dieses Haus ein Ort, an dem die Zeit im Rhythmus der Natur vergeht. Exklusiv und doch zurückhaltend bietet das Landhaus unvergleichliche Privatsphäre, Komfort und eine tiefe Verbundenheit mit der Natur. Die seltene Luxusvariante von Stille und Raum erwartet Sie am Duinweg in Schoorl.

Entdecken Sie Schoorl mit Baerz, Ihrem vertrauenswürdigen persönlichen Immobilienfinder & Berater

Expertise und DiskretionDer Premiummarkt in Schoorl verlangt tiefgehende lokale Marktkenntnis und ein gut vernetztes Vorgehen. Berater ermöglichen Zugang zu Immobilien, die selten öffentlich gelistet werden. Verhandlungsstärke und fundiertes Verständnis für Denkmalschutz, ökologisches Bauen und Marktdynamik sorgen für optimale Ergebnisse unter Wahrung der Privatsphäre und Werte.

Vermeiden Sie häufige Fallstricke

Internationale Käufer verschwenden oft wertvolle Zeit mit doppelten, veralteten oder irreführenden Online-Angeboten, insbesondere da fast 30% der Luxusimmobilien nie auf dem öffentlichen Markt erscheinen. Verkäufermakler vertreten die Interessen des Verkäufers, nicht die des Käufers. Selbst die Anfrage nach Informationen zu einer Immobilie kann dazu führen, dass ein Verkäufermakler Sie ohne Ihre Zustimmung als seinen „Kunden“ registriert.
Mit Baerz Property Finders & Advisors vermeiden Sie all diese Fallstricke vollständig. Wir arbeiten ausschließlich in Ihrem Auftrag, bieten unabhängige Vertretung, klare Beratung und Zugang zu allen verfügbaren Immobilien, einschließlich Off-Market-Möglichkeiten, die andere nie zu sehen bekommen.

Interessiert an einem Personal Property Advisor?

Wir zeigen Ihnen alle verfügbaren Häuser an einem Ort. Kontaktieren Sie uns gerne, um zu erfahren, wie wir Ihre Bedürfnisse erfüllen und Ihre Interessen exklusiv schützen können.

Merkmale

Eigentumsübertragung
Verkaufspreis
€ 2.745.000 k.k.
Status
beschikbaar
Annahme
in overleg
Bau
Art des Hauses
Landhuis
Gebäudetyp
vrijstaande woning
Bauzeitraum
1935
Energieeffizienzklasse
D
Dachtyp
schilddak
Schlafzimmer
4
Badezimmer
2
Oberflächen und Volumen
Wohnfläche
273 m2
Anderer Innenbereich
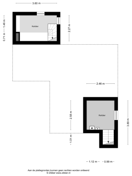
17 m2
Externer Stauraum
94 m2
Volumen in Kubikmetern
660 m3
Grundstücksgröße
7454 m2
Einrichtungen
Tv kabel
Rookkanaal
Dakraam
Vrij uitzicht
Beschutte ligging
In bosrijke omgeving
Baerz & Co Property Brochure

Broschüre

Videos

Croon Makelaars

Breelaan 41
1861 GD Bergen

info@croonmakelaars.nl
+31 (0)72 743 32 44

www.croonmakelaars.nl

Information / Besichtigungsanfrage

Angeline Croonen profile image
Angeline Croonen
Real Estate Agent