Ons kantoor is lid van Baerz & Co Luxury Homes; een internationaal platform dat exclusieve woningmakelaars met elkaar verbindt. Neem contact op met ons secretariaat voor meer informatie over het landelijke aanbod, waarvan u hieronder een selectie kunt bekijken.

VENLO
Negen-novemberweg 27 - 5916 LD
Die Niederlande

Don Willems profile image
Don Willems
Makelaar
€839,000 k.k.
Wohnbereich
227m2
Grundstücksgröße
754m2
Schlafzimmer
6

Beschreibung

Dieses Landhaus in Venlo setzt neue Maßstäbe für nachhaltiges Wohnen und verbindet zukunftsweisendes Design mit wohltuender Ruhe. Beim Betreten der 227 m² großen Innenfläche spürt man sofort das Leitmotiv „Landhaus Venlo“ in zeitloser, zukunftssicherer Wohnlichkeit. Das Haus trägt das Energieeffizienzlabel A++, unterstützt durch 16 Solarpaneele, eine Hybrid-Wärmepumpe und umfassende Dämmung. Daraus resultiert ein angenehmes Wohnklima bei monatlichen Energiekosten von nur 160 €.

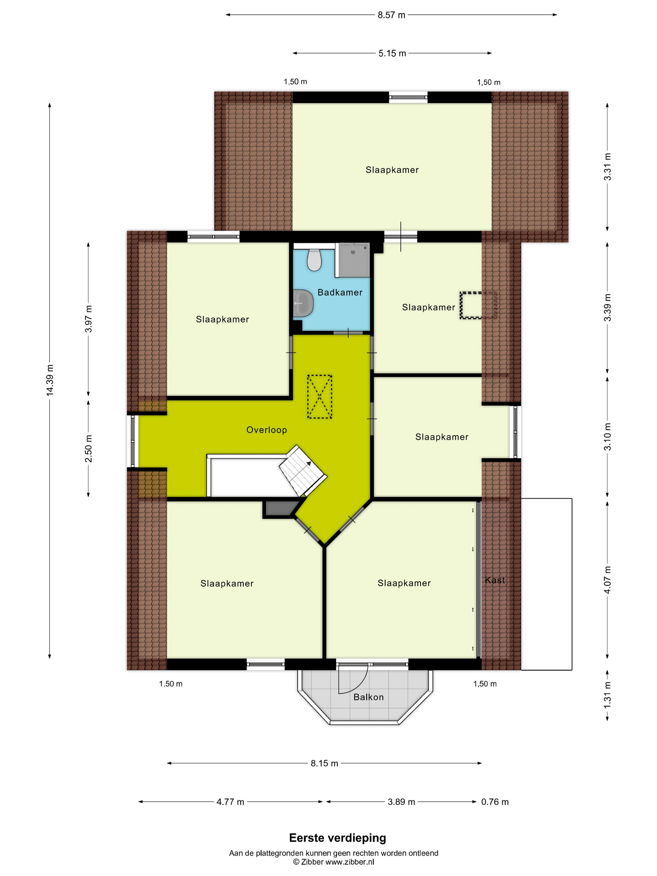
Der Hauptwohnbereich mit 62 m² wird durch ein Erkerfenster lichtdurchflutet und bietet einen Kamin, ein Dachfenster sowie Schiebetüren, die direkt in den liebevoll angelegten Privatgarten auf einem 754 m² großen Grundstück führen. Die angrenzende Küche und der Hauswirtschaftsraum präsentieren praktische Eleganz. Elektrische Sonnenschutzsysteme sorgen für angenehme Lichtverhältnisse. Die nahezu gesamte Erdgeschossfläche verfügt über Fußbodenheizung und -kühlung. Die auf dieser Ebene gelegene Master-Suite mit 16 m² bietet ein eigenes Bad und kombiniert Privatsphäre mit Barrierefreiheit.

Fünf weitere Schlafzimmer und ein zweites Badezimmer befinden sich im Obergeschoss. Eines der Zimmer bietet Zugang zu einem möglichen Wellnessbereich, ein weiteres öffnet sich zu einem Balkon. Ein Keller, ein Dachboden und eine 21 m² große, beheizbare Garage mit Sektionaltor und Gartenzugang schaffen flexible Stauraummöglichkeiten. Im Außenbereich laden mehrere Sitzplätze zwischen altem Baumbestand und liebevoll gestalteten Beeten zum Verweilen ein – perfekt für ruhiges Familienleben oder gesellige Zusammenkünfte.

In einer ruhigen niederländisch-deutschen Grenzlage nahe dem Naturschutzgebiet Groote Heide und fußläufig zu Sporteinrichtungen vereint diese Immobilie Verbundenheit mit Rückzug. Nur zehn Minuten vom Zentrum Venlos entfernt sowie mit besten Anbindungen nach Eindhoven und Deutschland ist dieses Landhaus ideal für alle, die Ruhe und gute Erreichbarkeit schätzen. Eine seltene Gelegenheit für alle, die ein nachhaltiges, komfortables und großzügiges Landhaus in Venlo erwerben möchten.

Entdecken Sie Venlo mit Baerz, Ihrem vertrauenswürdigen persönlichen Immobilienfinder und Berater

Für Premium-Transaktionen sind fundierte Marktkenntnisse, Einblicke ins lokale Angebot, Planungsrecht und anstehende Entwicklungen entscheidend. Erfahrene Berater verschaffen Zugang zu exklusiven Off-Market-Objekten, handeln diskret und sichern so den entscheidenden Vorsprung für Ihre Investments. Professionelle Begleitung ist essenziell, um die architektonisch wertvollsten Immobilien zu sichern oder optimale Vertragskonditionen zu verhandeln.

Häufige Fallstricke vermeiden

Internationale Käufer verlieren oft wertvolle Zeit, weil sie sich durch doppelte, veraltete oder irreführende Online-Angebote kämpfen müssen – besonders da fast 30% aller Luxusimmobilien überhaupt nicht auf dem Markt erscheinen.
Makler des Verkäufers vertreten die Interessen des Verkäufers, nicht Ihre, und schon eine einfache Anfrage kann dazu führen, dass eine Agentur Sie ohne Ihre Zustimmung als deren „Kunden“ registriert.
Mit Baerz Property Finders & Advisors umgehen Sie all diese Fallstricke vollständig.
Wir handeln ausschließlich in Ihrem Interesse, bieten unabhängige Vertretung, transparente Beratung und Zugang zu jedem verfügbaren Objekt – einschließlich privater und off-market Angebote, die andere nie zu sehen bekommen.

Neugierig, wie Sie Ihren eigenen Personal Property Advisor sichern können? Kontaktieren Sie uns, um zu erfahren, wie wir Ihre Interessen vertreten und Ihnen den gesamten Markt öffnen können.

Merkmale

Solarmodule
Alarm system
Eigentumsübertragung
Verkaufspreis
€ 839.000 k.k.
Status
verkocht onder voorbehoud
Annahme
in overleg
Bau
Art des Hauses
Landhuis
Gebäudetyp
vrijstaande woning
Bauzeitraum
1989
Energieausweis
A++
Dachtyp
zadeldak
Schlafzimmer
6
Badezimmer
2
Flächen und Volumen
Wohnbereich
227 m2
Andere Innenräume
70 m2
Außenbereich am Gebäude
8 m2
Volumen in Kubikmetern
1100 m3
Grundstücksgröße
754 m2
Einrichtungen
Mechanische ventilatie
Alarminstallatie
Tv kabel
Buitenzonwering
Schuifpui
Dakraam
Zonnepanelen
Aan bosrand
In woonwijk
Baerz & Co Property Brochure

Broschüre

Videos

Grundrisse

VeTeBe

Grotestraat 84a
5931 CX Tegelen

info@vetebe.nl
+31 77 3262600

www.vetebe.nl

Information / Besichtigungsanfrage

Don Willems profile image
Don Willems
Makelaar