Baerz & Co is een landelijk samenwerkingsverband van zorgvuldig geselecteerde boutique luxury makelaars. Samen vormen wij één netwerk, met één gedeeld aanbod. De woningen die u op onze website ziet, zijn afkomstig van alle aangesloten kantoren binnen Baerz & Co. Daardoor is niet ieder object rechtstreeks door ons kantoor in verkoop, maar door een gespecialiseerde collega binnen ons netwerk. Heeft u een woning gevonden die u aanspreekt en wilt u meer informatie? Dan brengen wij u graag persoonlijk in contact met de betreffende verkoopmakelaar, zodat u direct en zorgvuldig wordt begeleid.

'S-GRAVENHAGE
Prinsestraat 37 F - 2513 CA
Netherlands

€1,580,000
Living Area
201m2
Plot Size
116m2
Bedrooms
4

Description

The best city vibes in The Hague!!

In a prime location right in the heart of the beloved Hofkwartier, specifically on Prinsestraat, part of the bustling historic downtown, lies this fully renovated, unique city villa. It enjoys a secluded setting in a “courtyard” behind the facade of the former fire station dating back to 1899. Here, you’ll experience optimal tranquility while having every conceivable amenity just around the corner. Shops, supermarkets, restaurants, public transportation, schools, theaters, cinemas, museums, galleries, sports facilities, and plenty of green space (including the Paleistuin) are all within walking distance, as are Noordeinde, Denneweg, and Frederikstraat.
Within 10 minutes by bike, you can get from the historic city center to the beach at Scheveningen.

This unique home has been designed with great style and originality and is in excellent condition. With its three south-facing terraces spread across three floors, you have the perfect choice of where to enjoy a cup of coffee or a glass of wine. In the summer months, enjoy a BBQ with friends on your own terrace in front of the house. In the evenings and on weekends, the imposing entrance gate is closed, ensuring total privacy.

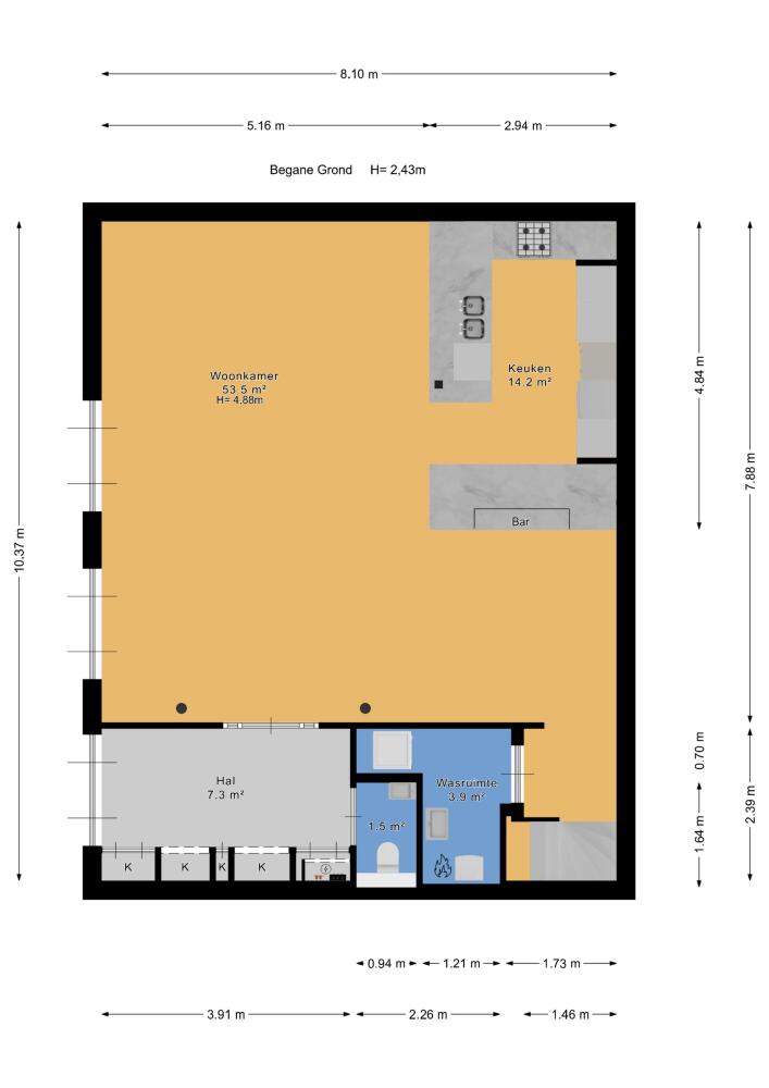
Layout:
Entrance, spacious foyer with built-in closets, modern half-bath with a sink; through the steel-and-glass frame, we enter the spacious living/dining room (70 m²) with an open, modern kitchen equipped with built-in appliances. This space has a loft-like feel due to its high ceilings, and the large windows allow plenty of natural light to flood in. The flooring is beautiful oak parquet (including underfloor heating), and there are two sets of French doors leading to the front terrace. The ground floor is completed by an internal storage room housing the central heating system, water pump, and water softener, as well as connections for a washer and dryer.

The first floor consists of a large L-shaped open space that can be utilized in various ways. Currently, there are two lovely, bright workspaces here, but if additional bedrooms are needed, they can be created here.

The second floor features three bedrooms (previously four), a spacious, sunny balcony, and two modern bathrooms. The master bedroom also has a loft-like feel with exposed rafters. From the hallway, there is access to an attic housing a heat recovery system, and a fixed staircase leads to the sunny rooftop terrace with panoramic views of The Hague.

Residents have access to an underground parking facility. These 158 parking spaces are available to people who live or work within 200 meters of the palace gardens.

Further details:
- Freehold
- National Historic Landmark
- Living area approx. 200 m²
- Energy efficiency rating A
- Ground-floor terrace
- Rooftop terrace
- Balcony
- All exterior woodwork has recently been repainted
- Closing date to be agreed upon
- Age and materials clauses will be included in the NVM Purchase Agreement

Features

Transfer of ownership
Asking Price
€ 1.580.000
Status
beschikbaar
Acceptance
in overleg
Construction
Kind of house
Herenhuis
Building type
geschakelde woning
Construction period
1938
Energy rating
A
Bedrooms
4
Bathrooms
2
Surface Areas And Volume
Living Area
201 m2
Other indoor space
2 m2
Exterior space attached to the buildinge
18 m2
Volume in cubic meters
820 m3
Plot Size
116 m2
Facilities
In centrum
Beschutte ligging
Baerz & Co Property Brochure

Brochure

Videos

Beeuwkes Makelaardij

Van Alkemadelaan 338
2597 AS Den Haag

info@beeuwkes.nl
+31 703143000

www.beeuwkes.nl

Information / Viewing request

Sjoerd Bouma profile image
Sjoerd Bouma
Real estate agent

Buying a Luxury Property in The Hague

The Hague offers a sophisticated community, global connectivity, and respected cultural institutions. Residents enjoy premium services, elegant surroundings, and seamless access to international amenities, all within a discreet and secure urban environment.