Baerz & Co is een landelijk samenwerkingsverband van zorgvuldig geselecteerde boutique luxury makelaars. Samen vormen wij één netwerk, met één gedeeld aanbod. De woningen die u op onze website ziet, zijn afkomstig van alle aangesloten kantoren binnen Baerz & Co. Daardoor is niet ieder object rechtstreeks door ons kantoor in verkoop, maar door een gespecialiseerde collega binnen ons netwerk. Heeft u een woning gevonden die u aanspreekt en wilt u meer informatie? Dan brengen wij u graag persoonlijk in contact met de betreffende verkoopmakelaar, zodat u direct en zorgvuldig wordt begeleid.

'S-HERTOGENBOSCH
Achter De Boogaard 2 - 5211 DG
Netherlands

Eric Tiebosch profile image
Eric Tiebosch
Owner / Real Estate Agent
€850,000 k.k.
Living Area
146m2
Plot Size
N/A
Bedrooms
4

Description

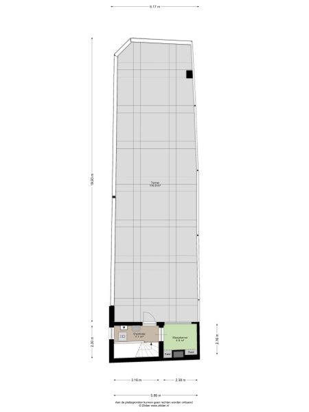
Large apartment in the heart of the city center with five rooms, a private entrance/bicycle storage, and an impressive roof terrace.

You've probably noticed this unique building while strolling along Vughterstraat. You've probably also gazed in amazement at this enormous roof terrace. On "the roof of the city," you'll find a roof garden of approximately 113 m². Not only from this terrace, but also from the apartment itself, there are expansive views and abundant natural light. In addition to the large living room with open-plan kitchen, there are four bedrooms and, of course, a luxurious bathroom. Stepping out of the front door, you enter your own hallway, which easily accommodates four bicycles. A fully equipped, tasteful, and spacious apartment, complete with that exceptional roof terrace.

Download the brochure here or request a viewing. We're happy to assist you.

Features

Transfer of ownership
Asking Price
€ 850.000 k.k.
Status
verkocht onder voorbehoud
Acceptance
in overleg
Construction
Kind of house
Bovenwoning
Building type
appartement
Construction period
1968
Energy rating
D
Roof type
plat dak
Bedrooms
4
Bathrooms
1
Surface Areas And Volume
Living Area
146 m2
Other indoor space
0 m2
Exterior space attached to the buildinge
113 m2
Volume in cubic meters
481 m3
Facilities
In centrum
Baerz & Co Property Brochure

Brochure

Floor Plans

De Huyzerij Makelaardij

Kruisstraat 2
5211 DV 's-Hertogenbosch

info@dehuyzerij.nl
+31 736122225

www.dehuyzerij.nl

Information / Viewing request

Eric Tiebosch profile image
Eric Tiebosch
Owner / Real Estate Agent

Buying a Luxury Property in 's-Hertogenbosch

's-Hertogenbosch offers a refined blend of history, culture, and contemporary living, attracting a globally minded community who value privacy, aesthetics, and seamless services within a vibrant, authentic Dutch environment.