Baerz & Co is een landelijk samenwerkingsverband van zorgvuldig geselecteerde boutique luxury makelaars. Samen vormen wij één netwerk, met één gedeeld aanbod. De woningen die u op onze website ziet, zijn afkomstig van alle aangesloten kantoren binnen Baerz & Co. Daardoor is niet ieder object rechtstreeks door ons kantoor in verkoop, maar door een gespecialiseerde collega binnen ons netwerk. Heeft u een woning gevonden die u aanspreekt en wilt u meer informatie? Dan brengen wij u graag persoonlijk in contact met de betreffende verkoopmakelaar, zodat u direct en zorgvuldig wordt begeleid.

AMSTELVEEN
Burgemeester Rijnderslaan 646 - 1185 MC
Netherlands

Stefano B. Djoemena profile image
Stefano B. Djoemena
Beëdigd register makelaar o.z.
€1,775,000 k.k.
Living Area
233m2
Plot Size
N/A
Bedrooms
3

Description

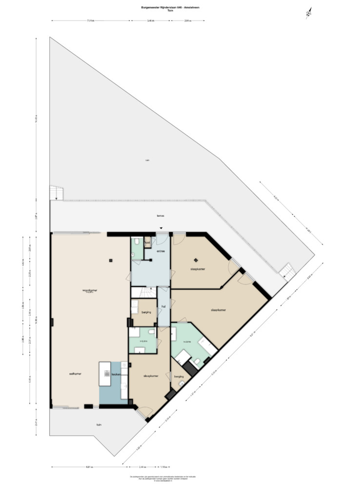
Luxury apartment Amstelveen defines a new standard of refined living in the prestigious The Mayor complex. This ground floor residence offers 233 m² of meticulously finished interior, fully furnished and ready for immediate occupancy, featuring a seamless transition between indoor sophistication and tranquil outdoor spaces.

A vast living area of nearly 90 m² integrates a custom-designed lounge, elegant dining zone, and modern open kitchen equipped with premium appliances and a generous island. Light flows in through expansive windows, connecting the living spaces to a private garden at the front and a wide terrace stretching the full width of the apartment at the rear.

There are three spacious bedrooms, including a serene master suite with its own luxurious bathroom. A second, centrally positioned bathroom maintains the same high standard. Storage is generous, with two internal units and a 21 m² private storage accessible both from the residence and the underground garage—with two exclusive parking spaces.

Amenities include M-Exclusive concierge services, a residents’ lounge, a fully equipped gym and Pilates studio, and advanced security systems. The Mayor’s reputation for quality and its proximity to Amstelveen’s central heart, premium facilities, transit, and major routes offer a blend of comfort, privacy, and convenience. Climate control is efficient, using underfloor heating, a heat pump, advanced heat recovery, and full insulation achieving energy class A_P.

Features

Transfer of ownership
Asking Price
€ 1.775.000 k.k.
Status
beschikbaar
Acceptance
direct
Construction
Kind of house
Benedenwoning
Building type
appartement
Construction period
2023
Energy rating
A+
Bedrooms
3
Bathrooms
2
Surface Areas And Volume
Living Area
233 m2
Other indoor space
21 m2
Exterior space attached to the buildinge
58 m2
Volume in cubic meters
877 m3
Facilities
Lift
Schuifpui
Glasvezel kabel
In woonwijk
 

Videos

Lunshof Makelaardij bv

Keizer Karelweg 342
1181 RJ Amstelveen

info@lunshof.nl
+31 20 345 8 345

www.lunshof.nl

Information / Viewing request

Stefano B. Djoemena profile image
Stefano B. Djoemena
Beëdigd register makelaar o.z.

Buying a Luxury Property in Amstelveen

Amstelveen offers refined residences, a cosmopolitan atmosphere, and exceptional connectivity. The blend of green areas, international amenities, and community sophistication continues to captivate global buyers and families seeking both privacy and vibrant urban connections.