Baerz & Co is een landelijk samenwerkingsverband van zorgvuldig geselecteerde boutique luxury makelaars. Samen vormen wij één netwerk, met één gedeeld aanbod. De woningen die u op onze website ziet, zijn afkomstig van alle aangesloten kantoren binnen Baerz & Co. Daardoor is niet ieder object rechtstreeks door ons kantoor in verkoop, maar door een gespecialiseerde collega binnen ons netwerk. Heeft u een woning gevonden die u aanspreekt en wilt u meer informatie? Dan brengen wij u graag persoonlijk in contact met de betreffende verkoopmakelaar, zodat u direct en zorgvuldig wordt begeleid.

AMSTERDAM
Prinsengracht 683 D - 1017 JT
Netherlands

Sander Bovenkerk profile image
Sander Bovenkerk
Real estate agent
€1,395,000 k.k.
Living Area
131m2
Plot Size
N/A
Bedrooms
1

Description

Prinsengracht 683 D, 1017 JT Amsterdam
Living on the Prinsengracht, in the heart of Amsterdam’s canal belt, with unobstructed views over the water and a deep rear garden: this is living in a truly rare and beautiful location.

This charming apartment of approximately 130 m² is spread over the bel-etage and the basement and combines characteristic details with a practical layout. With, among other things, a generous living/work room at the front, a living room at the garden side, a spacious bedroom and a detached storage unit of approximately 22 m², this is a unique property on freehold land.

Layout
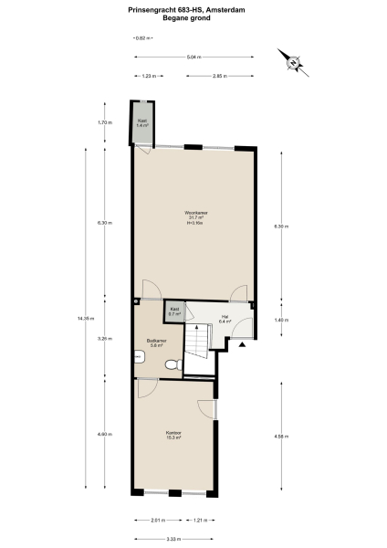
Via the communal entrance on the Prinsengracht, you reach the apartment on the bel-etage at the end of the hallway. You enter a hall with a separate cupboard, providing access to the rooms on this floor as well as the staircase to the basement. The bel-etage has a warm, characterful appearance with plenty of natural light and unobstructed views of the canal.

At the front of the apartment is a spacious room, ideal as a home office or separate dining room. This room also has its own private entrance from the communal hallway. At the rear is the living room overlooking the inner garden. Both rooms feature characteristic wooden beams and high windows, creating a pleasant influx of daylight.

The two rooms are separated by a toilet with a separate hand basin, accessible from both rooms.

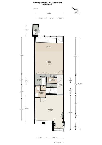
Basement
The basement is reached via the internal staircase and is spacious and functionally laid out. At the rear is the dining room with adjoining kitchen. The kitchen is located on the garden side and offers direct access to the deep rear garden, creating a pleasant connection between indoor and outdoor living. The kitchen is equipped with a Quooker, dishwasher, a freestanding gas stove with oven and a fridge-freezer combination. In addition, the kitchen features beautiful built-in wooden cabinets, ideal for extra storage space. From the kitchen there is access to a separate room with connections for a washing machine and dryer.

Centrally located in the basement are several practical spaces, including a separate toilet, a bathroom with shower, washbasin and toilet, multiple built-in cupboards and a separate storage room. This smart layout provides ample storage and comfort.

At the front of the basement is the spacious bedroom. This room is quietly located and offers sufficient space for a large bed and a wall of wardrobes. The bedroom also has direct access to the bathroom.

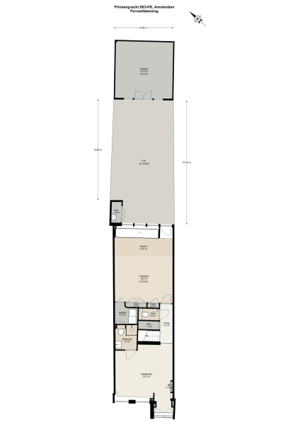
Garden and storage
From the basement you access the deep rear garden of approximately 50 m², a rare outdoor space at this location in the canal belt. At the rear of the garden is a detached garden house of approximately 22 m², ideal for bicycles, storage or as a hobby space. The space is currently used as a separate guest accommodation.

Location and accessibility
The property is situated in an exceptional location on the Prinsengracht, between the Leidsegracht and the Leidsestraat, and within walking distance of both Koningsplein and Leidseplein. This central location in Amsterdam’s canal belt is known for its charming streets, iconic canal houses and its rich selection of boutique shops, specialty stores, cafés, restaurants and cultural hotspots.

For daily groceries, various amenities are available nearby, while the popular Nine Streets, the Jordaan and the Museum Quarter can all be reached within minutes. An ideal combination of characteristic city living with everything Amsterdam has to offer within easy reach.

Accessibility is excellent. Tram and bus connections are within short walking distance and by bicycle you can reach both Amsterdam Central Station and Amsterdam Zuid within minutes. The property is also easily accessible by car via the main roads leading to the A10 ring road.

Special features
– Apartment right of approximately 130 m² (measured in accordance with NEN 2580)
– Spacious garden of approximately 50 m²
– Detached storage unit of approximately 22 m²
– Complete foundation renovation carried out in 2023
– Underfloor heating in the basement
– Kitchen and bathroom installed in 2023
– Nationally protected cityscape
– UNESCO World Heritage Site
– Central heating installation from 2023
– Located on freehold land
– Small owners’ association (VvE)
– VvE contribution is €150.00 per month
– Age clause and non-owner-occupancy clause apply
– Delivery in consultation

This information has been compiled by us with due care. However, no liability is accepted on our part for any incompleteness, inaccuracies or otherwise, nor for the consequences thereof. All stated dimensions and surface areas are indicative. The buyer has a duty to investigate all matters that are of importance to him or her. With regard to this property, the estate agent acts as advisor to the seller. We advise you to engage a qualified (NVM) estate agent to assist you during the purchasing process. If you have specific wishes regarding the property, we recommend that you make these known to your purchasing agent in good time and carry out (or have carried out) independent investigations accordingly. If you do not engage a professional representative, you consider yourself legally knowledgeable enough to oversee all matters of importance. The NVM conditions apply.

Features

Transfer of ownership
Asking Price
€ 1.395.000 k.k.
Status
beschikbaar
Acceptance
in overleg
Construction
Kind of house
Dubbel benedenhuis
Building type
appartement
Construction period
1715
Roof type
zadeldak
Bedrooms
1
Bathrooms
2
Surface Areas And Volume
Living Area
131 m2
Other indoor space
1 m2
External storage space
22 m2
Volume in cubic meters
477 m3
Facilities
Natuurlijke ventilatie
Aan rustige weg
In centrum
Aan vaarwater
Baerz & Co Property Brochure

Brochure

Videos

Heeren Makelaars

Stadionweg 75
1077 SE Amsterdam

info@heerenmakelaars.nl
+31 204702255

www.heerenmakelaars.nl

Information / Viewing request

Sander Bovenkerk profile image
Sander Bovenkerk
Real estate agent

Buying a Luxury Property in Amsterdam

Amsterdam offers a cosmopolitan lifestyle defined by heritage, connectivity, and discreet luxury. Residents benefit from a robust international community, curated services, and vibrant culture. The city’s enduring appeal lies in its blend of history, sophistication, and progressive spirit.