Unique Penthouse with Abundant Light (approx. 219 m²), (ex) Parking with EV Charging Point, and Elevator, Located Adjacent to Vondelpark!
This exceptional apartment is situated on the eighth floor of the Byzantium complex and features a spacious living area, open kitchen, three bedrooms, two bathrooms, a comfortable workspace, and a separate storage unit on the ground floor. Additionally, it boasts a wide balcony that spans the entire width of the property, complete with sunshades and breathtaking views of Vondelpark.
Location & Accessibility
Byzantium is ideally located, offering the vibrant city center on one side and the tranquility of Vondelpark on the other. Within walking distance, you’ll find iconic landmarks such as Hotel Americain, Stadsschouwburg, DeLaMar Theater, Leidseplein with its array of international dining options, Pathé Cinemas, the Rijksmuseum, Stedelijk Museum, Van Gogh Museum, and the Concertgebouw. Renowned shopping streets like P.C. Hooftstraat and Van Baerlestraat are just around the corner.
The apartment is easily accessible by both car and public transport. Near Leidseplein, there are tram stops for lines 1, 2, 5, 7, 11, and 19. At the bus station on Marnixstraat (near Elandsgracht), various bus lines, including an express bus to Schiphol, are available. By car, the A10 ring road can be reached within 15 minutes. Parking is available in the ground-floor garage of the complex or in nearby streets for a fee.
The Byzantium Complex
This modern apartment building, *Byzantium*, is located on the eighth floor. Designed by the world-renowned architect Rem Koolhaas, the complex features a luxurious natural stone entrance. The elegant hall includes an elevator and a well-maintained staircase. Security is top-notch, with 24-hour surveillance and a concierge. Both the ground-floor entrance and the parking garage are monitored. From the parking garage, residents have direct access to the stairwell and can reach their homes internally. The garage also includes a bicycle storage area and a car wash. Additionally, the homeowners’ association maintains a shared, beautifully landscaped and furnished rooftop garden on the first floor.
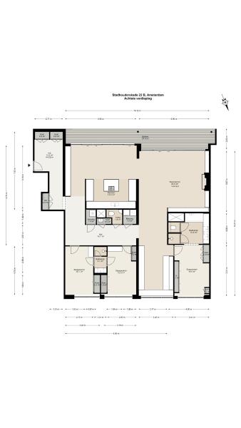
Layout
Upon entering, you are greeted by a spacious entrance hall with ample wardrobe storage on the left. From the hall, you proceed to the open-plan kitchen with a dining area. The kitchen features a cooking island with a six-burner induction hob, extractor fan, oven, three refrigerators, microwave, dishwasher, Quooker, and plenty of storage. Floor-to-ceiling glass sliding doors open onto the 25 m² balcony, which is about two meters deep, equipped with electric sunshades, and offers stunning views.
Next to the dining area is the expansive living room with a gas fireplace and built-in cabinetry. The TV can be concealed behind a wooden sliding panel, creating the perfect ambiance for cozy evenings by the fire. Adjacent to the living area is a comfortable workspace with ample storage.
The primary bedroom, located in the northwest corner, includes spacious built-in wardrobes, air conditioning, built-in speakers, and an en-suite bathroom. The bathroom features exquisite green marble, a double vanity unit, a bathtub with a showerhead, a toilet, and a walk-in shower.
Two additional bedrooms, sharing a bathroom, are situated in the northeast corner. Both include built-in wardrobes, air conditioning, and built-in desks. The shared bathroom has a walk-in shower and a vanity unit. Opposite these bedrooms in the hallway, you’ll find a storage room with a freezer, a separate toilet with a sink, and a practical laundry room.
In summary, this property offers a well-designed layout, abundant space, natural light, and a stunning outdoor area.**
Details:
- Apartment size approx. 219 m² (NEN2580 report available)
- Unique penthouse located directly next to Vondelpark
- Parking space with EV charging point in the underground garage
- Parking € 100.000,- kk
- Part of the Byzantium complex
- Three spacious bedrooms
- Two bathrooms
- Expansive balcony (approx. 25 m²) with views of Vondelpark
- Professionally managed homeowners’ association, long-term maintenance plan available
- Monthly HOA contribution: € 824,52 for the apartment and € 10 for parking
- Leasehold in perpetuity: redeemed until 30-09-2038
- Energy label A
- Delivery in consultation
This information has been carefully compiled. However, no liability is accepted for any incompleteness, inaccuracies, or otherwise, or the consequences thereof. All stated measurements and areas are indicative. The buyer has an obligation to investigate all matters that are important to them. With respect to this property, the agent is the advisor to the seller. We recommend engaging a qualified (NVM) real estate agent to assist you with the purchasing process. If you have specific requirements regarding the property, we advise you to communicate these in a timely manner to your purchasing agent and to conduct independent research. If you do not engage a qualified representative, you are considered knowledgeable enough to oversee all relevant matters according to the law. NVM conditions apply.