Ons kantoor is lid van Baerz & Co Luxury Homes; een internationaal platform dat exclusieve woningmakelaars met elkaar verbindt. Neem contact op met ons secretariaat voor meer informatie over het landelijke aanbod, waarvan u hieronder een selectie kunt bekijken.

BERGAMBACHT
Zuidbroek 145 - 2861 LL
Netherlands

Xandra Bek profile image
Xandra Bek
Register makelaar - taxateur
€995,000 k.k.
Living Area
156m2
Plot Size
3233m2
Bedrooms
5

Description

LANDED LIVING IN A UNIQUE LOCATION WITH SPACE AND PRIVACY

A home full of character, freedom and an unparalleled feeling of outdoor living – welcome to Zuidbroek 145 in Bergambacht. This charming detached house from 1917 has been thoroughly renovated in recent years, with great care taken to preserve its atmosphere and style. Here you live on a generous plot of no less than 3,233 m² of private land, surrounded by water, with views over meadows, a large barn, five bedrooms and two bathrooms. This is peaceful living at its finest, without compromising on comfort.

FULLY RENOVATED AND FINISHED TO PERFECTION

The current owner has truly left nothing to chance over the past years. The house has been completely renovated: a new concrete floor has been installed on the ground floor, the wooden window frames have been replaced with hardwood frames with double glazing, an entirely new roof with dormer windows has been installed, and both the electrical system and all plumbing have been renewed. The layout has also been improved, ensuring optimal use of space. Highlights include a luxury kitchen (American Kitchen, 2018) with all built-in appliances and a large stove, modern bathrooms, panel doors, and plastered walls and ceilings. The extension was fully renovated and insulated in 2013, and the exterior painting was recently completed (2024). In 2025, new wooden shutters were added to the front of the house – a beautiful nod to its rural origins.

What also stands out is the excellent maintenance throughout. The paintwork is immaculate, and the garden is beautifully kept with neatly raked gravel and a closely mown lawn. Even the robotic lawn mower is regularly adjusted to ensure no corner is missed. This is a home you can move into immediately.

SELLER’S STATEMENT:

As a family, we have lived here with great pleasure for 32 years. We have immensely enjoyed the large garden and outdoor living; boating and fishing in the ditches during summer and building huts with the children, and ice skating on the frozen water in winter.
The house feels atmospheric, light and comfortable every single day.
Living here gives a wonderful sense of freedom. In addition, it is a pleasant neighbourhood with involved and friendly neighbours.

PLEASANT LAYOUT WITH THE OPTION FOR SINGLE-LEVEL LIVING

You reach the front door of the house via the rural driveway with gravel path. Upon entering, the bright living room immediately catches the eye, with large windows overlooking the meadows. The atmosphere is warm and stylish, with beautiful floors, neatly finished walls and ample space for a generous seating area. The dining room and open-plan kitchen connect seamlessly to this space.

On the ground floor there is a spacious bedroom with plenty of privacy and its own bathroom, ideal for those who prefer single-level living. In addition, there is a second modern bathroom with shower, bathtub, washbasin and toilet, making this property suitable for a variety of living arrangements.

On the upper floor there are four additional bedrooms, one of which is located in the extension and is perfectly suited as a home office or for a teenager seeking their own space and privacy.

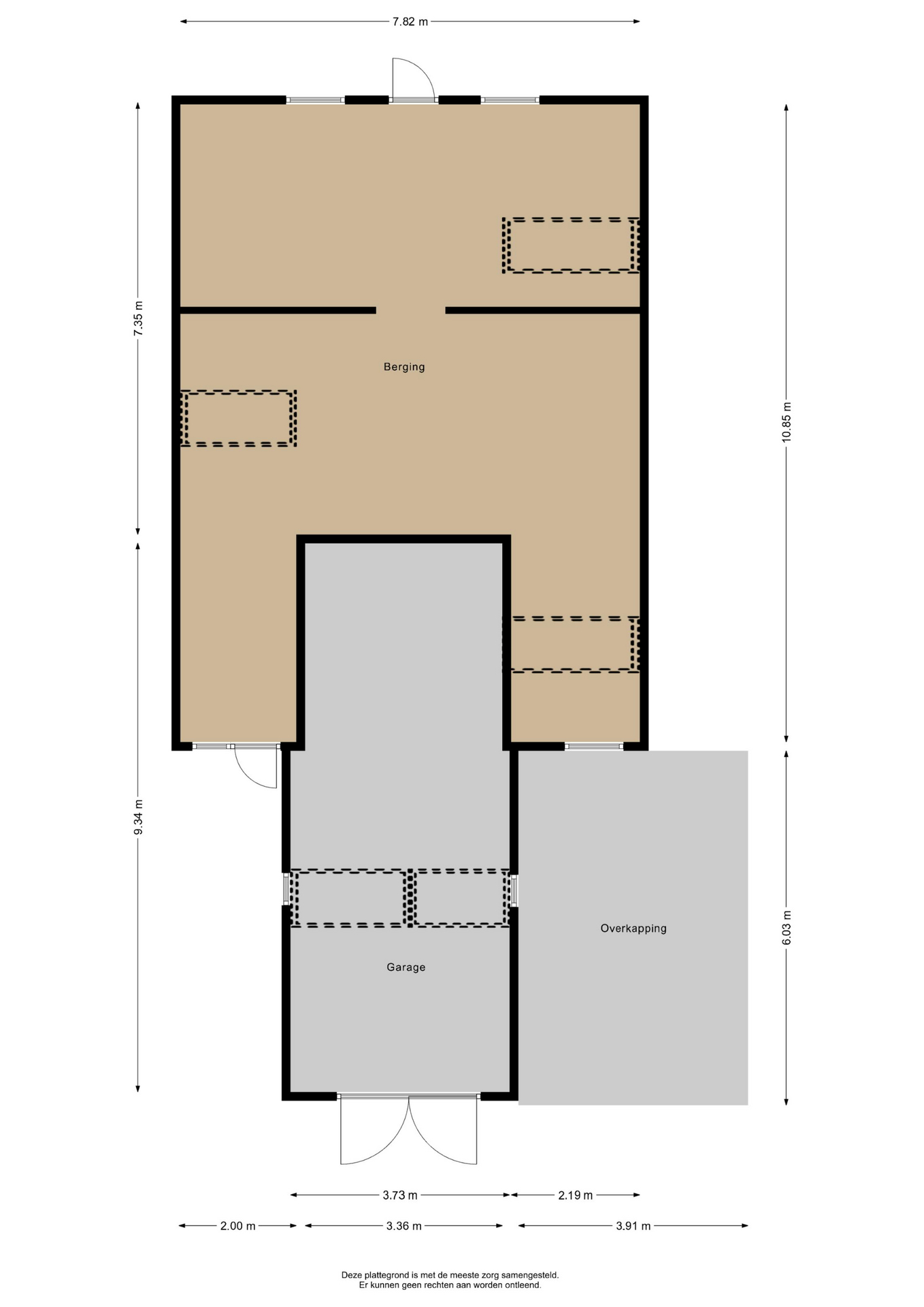
DETACHED, WITH GARAGE, CARPORT AND LARGE BARN

Outside, the property is an oasis of peace and quiet. The surrounding garden is neatly landscaped, green and well maintained, with several seating areas, large lawns, trees, borders, a vegetable garden and charming corners. Thanks to the position of the plot, there are no immediate neighbours, offering plenty of privacy and beautiful views over water and meadowland. The meadow on the eastern side may no longer be built on, ensuring unobstructed views well into the future.

On the property you will find a detached garage, a spacious barn (total of 127 m² of storage space) and a carport. The barn is currently used for storage but is also highly suitable as a workshop or hobby space. There is parking for multiple cars on the property. Finally, the house is equipped with a modern high-efficiency combi boiler (2023), roof, floor and wall insulation, fully double glazing and a fibre-optic internet connection.

LIVING IN THE GREEN HEART WITH ALL AMENITIES CLOSE BY

Zuidbroek 145 is located just outside the village centre of Bergambacht, a charming village in the Krimpenerwaard. Here you live in the heart of the Green Heart, surrounded by peace, space and nature. Yet all amenities are within easy reach: the centre of Bergambacht offers a surprisingly wide range of shops, supermarkets, schools, sports clubs, healthcare facilities and restaurants.

For nature lovers, this is a true paradise. From your home you can walk or cycle straight into the polder, along ditches, meadows and historic farmhouses. The river Lek is nearby and offers plenty of recreational opportunities. Prefer city life from time to time? Gouda and Rotterdam can be reached in approximately 30 minutes. Ideal for those who want to escape the hustle and bustle while staying well connected to the rest of the country.

KEY FEATURES:

Asking price: € 995,000 costs buyer

Location: Detached, on a quiet road, rural setting and surrounded by water

Living area: 156 m²

Plot size: 3,233 m²

External storage space: 127 m² (garage and large barn)

Carport present

Year of construction: 1917 (fully renovated)

Number of bedrooms: 5

Number of bathrooms: 2

Energy label: D (with roof, floor and wall insulation, double glazing, high-efficiency combi boiler 2023)

Completion: In consultation

Features

Transfer of ownership
Asking Price
€ 995.000 k.k.
Status
onder bod
Acceptance
in overleg
Construction
Kind of house
Eengezinswoning
Building type
vrijstaande woning
Construction period
1917
Energy rating
D
Roof type
samengesteld dak
Bedrooms
5
Bathrooms
2
Surface Areas And Volume
Living Area
156 m2
Other indoor space
0 m2
External storage space
127 m2
Volume in cubic meters
556 m3
Plot Size
3233 m2
Facilities
Mechanische ventilatie
Rookkanaal
Dakraam
Glasvezel kabel
Aan rustige weg
Vrij uitzicht
Landelijk gelegen
Baerz & Co Property Brochure

Brochure

Videos

Van Herk Makelaars Excellent

Oudehoofdplein 4
3011 TM Rotterdam

xbek@vanherk.nl
+31 102581855

www.vanherk.nl/excellent/

Information / Viewing request

Xandra Bek profile image
Xandra Bek
Register makelaar - taxateur

Buying a Luxury Property in Bergambacht

Bergambacht offers a discreet, sophisticated lifestyle, exceptional heritage homes, and seamless connectivity. Its welcoming community, natural beauty, and tailored advisory services make it especially attractive to distinguished international buyers.