Baerz & Co is een landelijk samenwerkingsverband van zorgvuldig geselecteerde boutique luxury makelaars. Samen vormen wij één netwerk, met één gedeeld aanbod. De woningen die u op onze website ziet, zijn afkomstig van alle aangesloten kantoren binnen Baerz & Co. Daardoor is niet ieder object rechtstreeks door ons kantoor in verkoop, maar door een gespecialiseerde collega binnen ons netwerk. Heeft u een woning gevonden die u aanspreekt en wilt u meer informatie? Dan brengen wij u graag persoonlijk in contact met de betreffende verkoopmakelaar, zodat u direct en zorgvuldig wordt begeleid.

BERGSCHENHOEK
Van Vredenburchlaan 71 - 2661 HE
Netherlands

Dominique Blom profile image
Dominique Blom
Register Makelaar Taxateur
€1,199,500 k.k.
Living Area
223m2
Plot Size
445m2
Bedrooms
5

Description

This modernized, detached home with driveway, carport, and garage is situated on a generous 445 m² plot. The ground floor has been extended across the entire rear of the property and features a bonus: a covered veranda of approx. 17 m² with a fireplace – the perfect spot to enjoy a drink by the fire, sheltered yet still outdoors. This house is tastefully finished and meticulously maintained!

The spacious living room, fully equipped kitchen with cooking island, and five bedrooms – along with an additional office/TV room on the ground floor – make this home ideal for a large family where everyone can have their own space.

In the immediate vicinity you’ll find the Annie M.G. Schmidt Park, “De Leeuwenkuil” Park, primary and secondary schools, playground De Kievit, and natural play area Tuin van Floddertje. Major highways and public transport connections to nearby cities (A12, A13, N209, N470, N471, and the RandstadRail) are all very close by.

In short: the perfect combination of a stunning home with everything nearby!

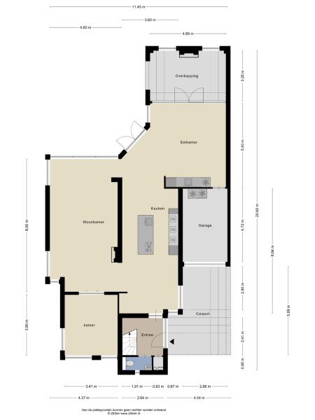
Layout

Front yard:
Driveway with space to park two cars, one of which can be under the glass carport. The heated garage is accessible via an electric roller door.

Kitchen:
Entrance to the house is located at the side. Hallway with toilet, meter cupboard (with fiber optic connection), deep storage closet under the stairs, and staircase to the first floor.
Upon entering, you step into the open kitchen with a cooking island and an extensive wall of cabinets with Siemens appliances, including: a built-in coffee machine, combination microwave/oven, and fridge-freezer. The island houses a sink, plenty of drawers, a dishwasher, and a 5-burner gas stove with an integrated extractor hood. A skylight in the ceiling brings in natural light.

Living and dining area:
Adjacent to the kitchen is the dining area, which features an additional kitchenette with an extra fridge and a wine climate cabinet. From the dining area, French doors lead to the veranda with fireplace, and another door provides access to the garage. French doors also open to the backyard.

At the front of the house, adjoining the living room, are beautiful en-suite doors to the office/TV room.

The entire ground floor, including the veranda, is fitted with wood-look tile flooring and underfloor heating.

Backyard:
The backyard features a large terrace with a cozy central seating area shaded by four parasol-shaped plane trees. By the waterfront, there’s a wooden deck with a Jacuzzi.
On the side of the house, there is a wooden shed and a lockable gate. The garden faces southwest.

First Floor
Landing with laminate flooring, providing access to the bedrooms, bathroom, staircase to the second floor, and a storage closet.
Front bedroom with dormer window.
Rear bedroom with air conditioning and dormer window with electric shutters, plus a neat walk-in closet with window.
Additional rear bedroom with electric shutters.
Another bedroom located above the garage, featuring a custom-built wooden bed and built-in wardrobe.
The bathroom includes a bathtub, toilet, shower, and double washbasin.

Second Floor
Spacious landing with roof window, washbasin, and connections for a washing machine and dryer, as well as the central heating unit.
Bedroom with both a roof window and side window, plus a built-in wardrobe. Extra storage space can be found behind the knee walls under the sloped roof.

Highlights of the Property:
-Detached house with a unique layout, 5 bedrooms, and an additional office room.
-Located in a quiet street, near the center of Bergschenhoek.
-Sunny garden facing southwest.
-Indoor garage.
-Spacious living, kitchen, and dining area with a charming veranda with fireplace.
-Handover in consultation, as per the List of Items.

Additional Clauses in the Purchase Agreement:
-Due to the age of the property (older than 30 years), an age clause will be included.
-As the house was built before 1993, an asbestos clause will also be applicable.

We warmly invite you to come and experience this beautiful villa in person.

The descriptions and impressions are intended to give you a good idea of the property. While the utmost care has been taken, all information is subject to change. No rights can be derived from the contents.

We represent the seller. We advise you to bring your own estate agent to safeguard your interests when purchasing your future home.

Purchase Agreement Only Valid Once Signed:
A verbal agreement between a private seller and buyer is not legally binding. A sale is only valid once both parties have signed the written purchase agreement. This is in accordance with Article 7:2 of the Dutch Civil Code.
A confirmation of verbal agreement by email or a draft agreement does not constitute a legally binding purchase contract.

Measurement Instruction Clause:
This property has been measured according to the industry-wide measurement standard (BBMI). The purpose of this standard is to provide a uniform method for measuring usable floor area. However, differences in measurement outcomes cannot be entirely ruled out due to variations in interpretation, rounding, or limitations during the measurement process.

Features

Alarm system
Air conditioning
Transfer of ownership
Asking Price
€ 1.199.500 k.k.
Status
beschikbaar
Acceptance
in overleg
Construction
Kind of house
Villa
Building type
vrijstaande woning
Construction period
1976
Energy rating
C
Roof type
samengesteld dak
Bedrooms
5
Bathrooms
1
Surface Areas And Volume
Living Area
223 m2
Other indoor space
14 m2
Exterior space attached to the buildinge
36 m2
External storage space
3 m2
Volume in cubic meters
878 m3
Plot Size
445 m2
Facilities
Mechanische ventilatie
Alarminstallatie
Airconditioning
Jacuzzi
Rookkanaal
Dakraam
Aan water
Aan rustige weg
In centrum
In woonwijk
Baerz & Co Property Brochure

Brochure

Videos

Floor Plans

DB Makelaars

Dorpsstraat 79
2661 CE Bergschenhoek

dominique@dbmakelaars.nl
+31 107850833

www.dbmakelaars.nl

Information / Viewing request

Dominique Blom profile image
Dominique Blom
Register Makelaar Taxateur

Buying a Luxury Property in Bergschenhoek

Bergschenhoek offers a refined community with tailored services, verdant landscapes, and internationally minded sensibilities, presenting an ideal setting for those pursuing sophisticated living and enduring value.