Ons kantoor is lid van Baerz & Co Luxury Homes; een internationaal platform dat exclusieve woningmakelaars met elkaar verbindt. Neem contact op met ons secretariaat voor meer informatie over het landelijke aanbod, waarvan u hieronder een selectie kunt bekijken.

METEREN
Blanckestyn 2 0 ong - 4194 CA
Netherlands

Arjan Veelers profile image
Arjan Veelers
Directeur
€1,690,000 k.k.
Living Area
350m2
Plot Size
890m2
Bedrooms
6

Description

Villa Geldermalsen

Your oasis of peace and luxury
On a prime location in the popular residential area De Plantage, a unique residential area on the south side of Geldermalsen, a luxury villa is being realized. The villa will be completed in the spring of 2025, has a generous size and a fine garden with lots of privacy. The villa will be delivered ready to move in including a high-quality kitchen with the latest appliances. The plumbing and tiling will be fitted with quality brands and the floors on all floors will be done in hard-wearing PVC with a warm homely tone. A unique opportunity to live brand new at very short notice.

Architecture and character
This luxurious villa is designed with attention to detail and comfort. The tightly plastered facades and elegant dark roof tiles create a beautiful, modern look.
Upon entering the first floor, you are welcomed by a bright, spacious living room that flows seamlessly into a modern kitchen diner with an island, perfect for culinary enthusiasts. From the living room and kitchen diner you have access to the covered terrace located on the south side. A practical utility room and a study offer additional functionality and convenience.

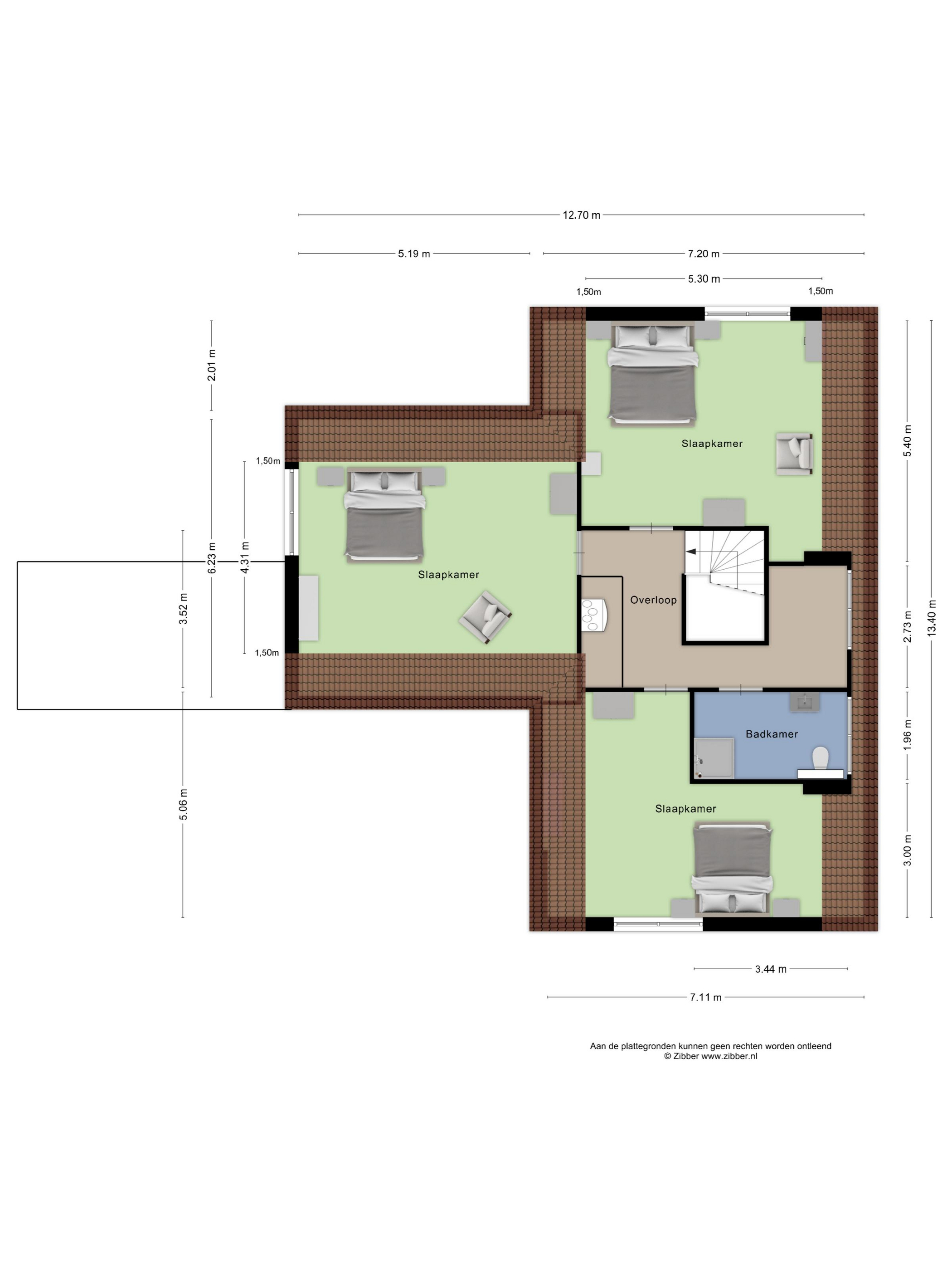
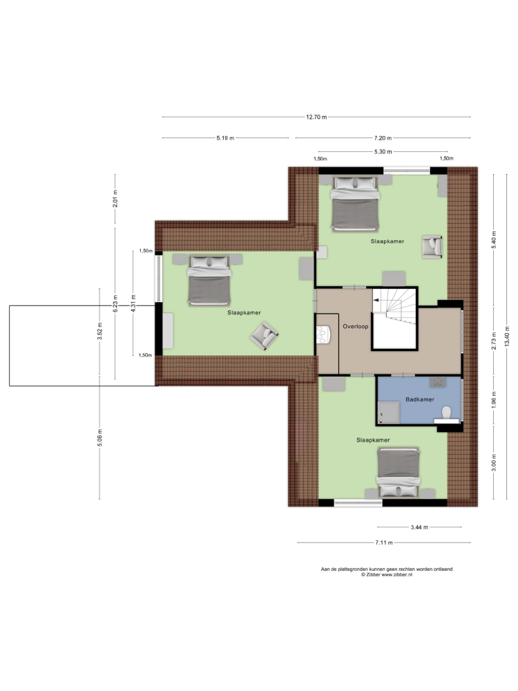
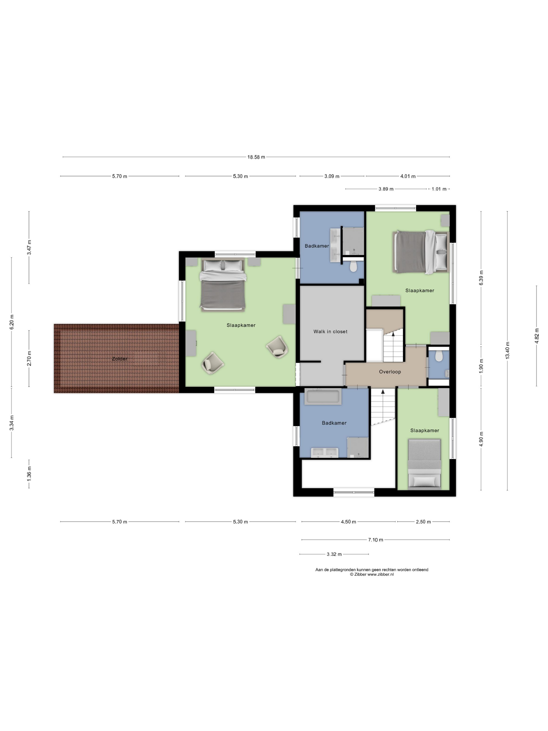
On the second floor you will find three bedrooms. The master bedroom has its own luxurious bathroom with double sink, walk-in shower and toilet, and provides access to a spacious walk-in closet. The second bathroom is equipped with a bathtub, shower corner and double sink, ideal for families. A separate toilet room completes it all.

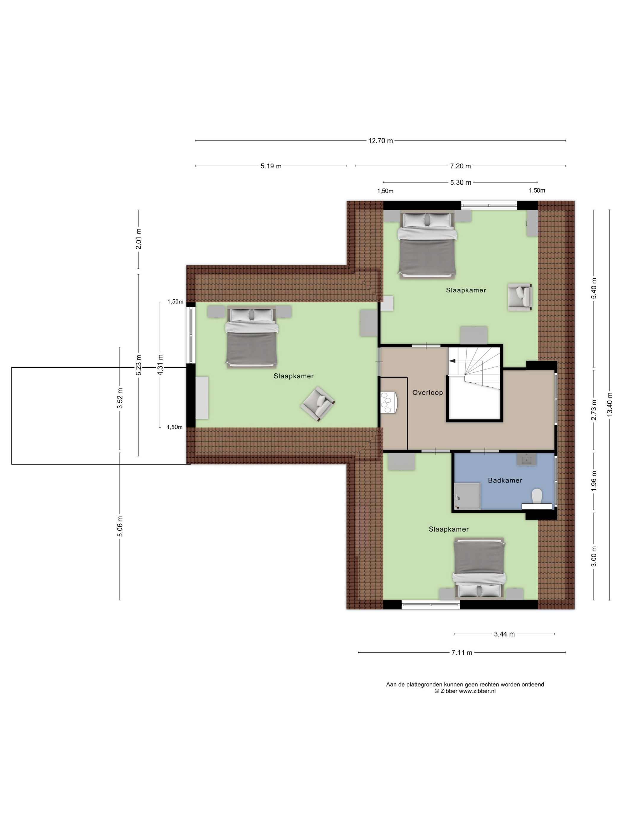
The second floor is designed with three spacious bedrooms and a bathroom with sink, shower corner and toilet.
This floor offers plenty of space for lodgers or can serve as a hobby or playroom.

Furthermore, there is a separate storage room of 16 square meters with a loft, ideal for storing bicycles, tools or as extra storage space. There is room to park 2 cars on your own property and a connection for a charging station is available.

Outdoor living and garden
Fully enjoy the tranquility of this beautiful area with a south-facing garden that features a canopy. The lovely garden runs around the villa and you can arrange it the way you want.
Here you can relax with a lounge set, perfect for cozy evenings with friends or to quietly read a book.

Sustainability
This luxury villa will be delivered gas-free and is equipped with a ground source heat pump, which in addition to heating can also be used for cooling. The house meets the BENG standard and has an A+++ label.

Make this unique location your new home
The Plantage in Geldermalsen is not entirely new anymore. The neighborhood is bustling, green and popular! Couples, families, young and old enjoy living in a high quality neighborhood with good facilities and the beautiful nature of the Betuwe nice and close. The neighborhood consists of several villas and this particular villa is located on the edge of De Plantage, surrounded by nature and tranquility.
You will enjoy an unobstructed view to the fullest here. Soon there will even be an archaeological park that will bring the past of this special place to life. The canals connect nicely to the surrounding waters, making it perfectly woven into the existing greenery.

Amenities
Living in The Plantation means having all facilities close at hand. Within walking distance you will find the multifunctional center De Pluk with library, grand café and cinema. The cozy center of Geldermalsen is also nearby. Here you will find a wide range of stores as well as a market on Friday mornings. In the village are several elementary school, a comprehensive school, numerous sports facilities and health care facilities. Everything you need every day and just a little bit more. From the new neighborhood you cycle in 10 minutes to the train station in Geldermalsen where you take the train to Utrecht or Den Bosch. Half an hour and you are there. And by car you are on the A15 and the A2 in no time.

Come and taste the atmosphere!
Would you like to experience all the possibilities of this magnificent villa for yourself? Then make an appointment for a viewing by calling 088 - 808 9000. Our broker Ernst welcomes you and will be happy to assist you. Construction has already started and completion is scheduled for spring 2025.
A unique opportunity to live brand new on short notice!

Features of the Villa
- Year of construction: 2024/2025
- Plot size: 890 m²
- Living space: approximately 350 m²
- 6 bedrooms, 3 bathrooms
- Attractive kitchen at garden side
- Vide between ground and second floor
- High quality finishing with top brands
- Energy label A+++, equipped with solar panels and heat pump

With this villa you choose for sustainable living in style, surrounded by the green of the Betuwe!

Special Features

Solar panels

Features

Transfer of ownership
Asking Price
€ 1.690.000 k.k.
Status
beschikbaar
Acceptance
in overleg
Construction
Kind of house
Villa
Building type
vrijstaande woning
Construction period
2024
Energy rating
A+++
Roof type
zadeldak
Bedrooms
6
Bathrooms
3
Surface Areas And Volume
Living Area
350 m2
Other indoor space
16 m2
Exterior space attached to the buildinge
32 m2
Volume in cubic meters
1310 m3
Plot Size
890 m2
Facilities
Zonnepanelen
Balansventilatie
In woonwijk
Vrij uitzicht
Landelijk gelegen
Baerz & Co Property Brochure

Brochure

Videos

Floor Plans

DWE Nieuwbouw Makelaars

Vanadiumweg 11
3812 PX Amersfoort

a.veelers@dwe-nieuwbouw.nl
+31 888089000

www.dwe-luxuryhomes.com

Information / Viewing request

Arjan Veelers profile image
Arjan Veelers
Directeur