Ons kantoor is lid van Baerz & Co Luxury Homes; een internationaal platform dat exclusieve woningmakelaars met elkaar verbindt. Neem contact op met ons secretariaat voor meer informatie over het landelijke aanbod, waarvan u hieronder een selectie kunt bekijken.

AMSTERDAM
Govert Flinckstraat 264 H - 1073 CE
Países Bajos

Eran Hausel profile image
Eran Hausel
Real estate agent
€1,100,000 k.k.
Superficie habitable
175m2
Tamaño del terreno
108m2
Dormitorios
5

Descripción

El apartamento Amsterdam se sitúa en la Govert Flinckstraat, en el vibrante barrio De Pijp, y ofrece una rara composición de dos residencias independientes, cada una con entrada y número de casa propios. Esta propiedad versátil, que abarca 175 m² distribuidos en cuatro plantas, presenta un gran potencial tanto para familias como para inversores interesados en el centro de Ámsterdam con carácter genuino. Su condición de propiedad plena e indivisa permite flexibilidad de adaptación: desde crear una espaciosa vivienda familiar hasta transformarla en dos apartamentos, de acuerdo con los permisos correspondientes.

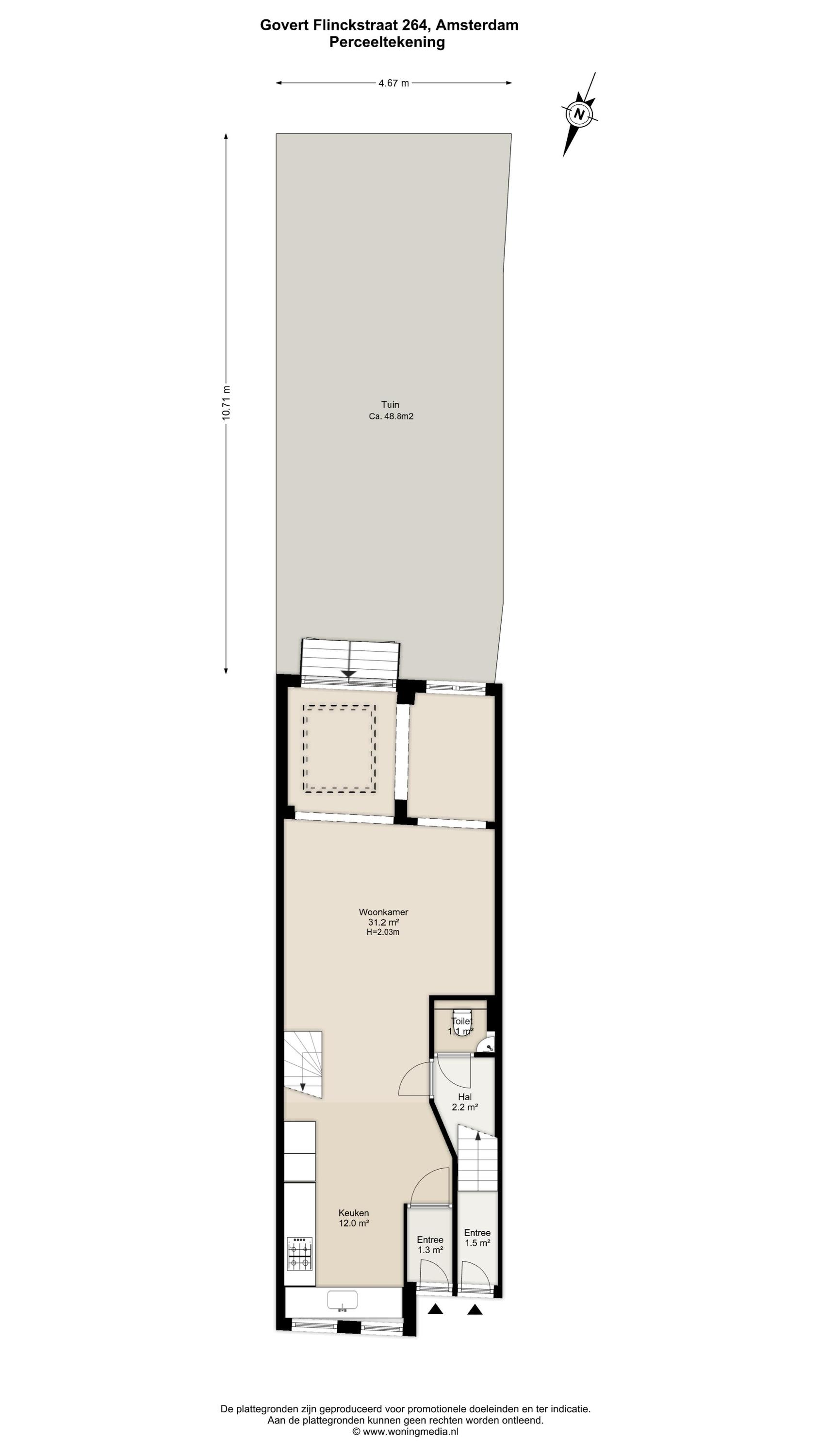
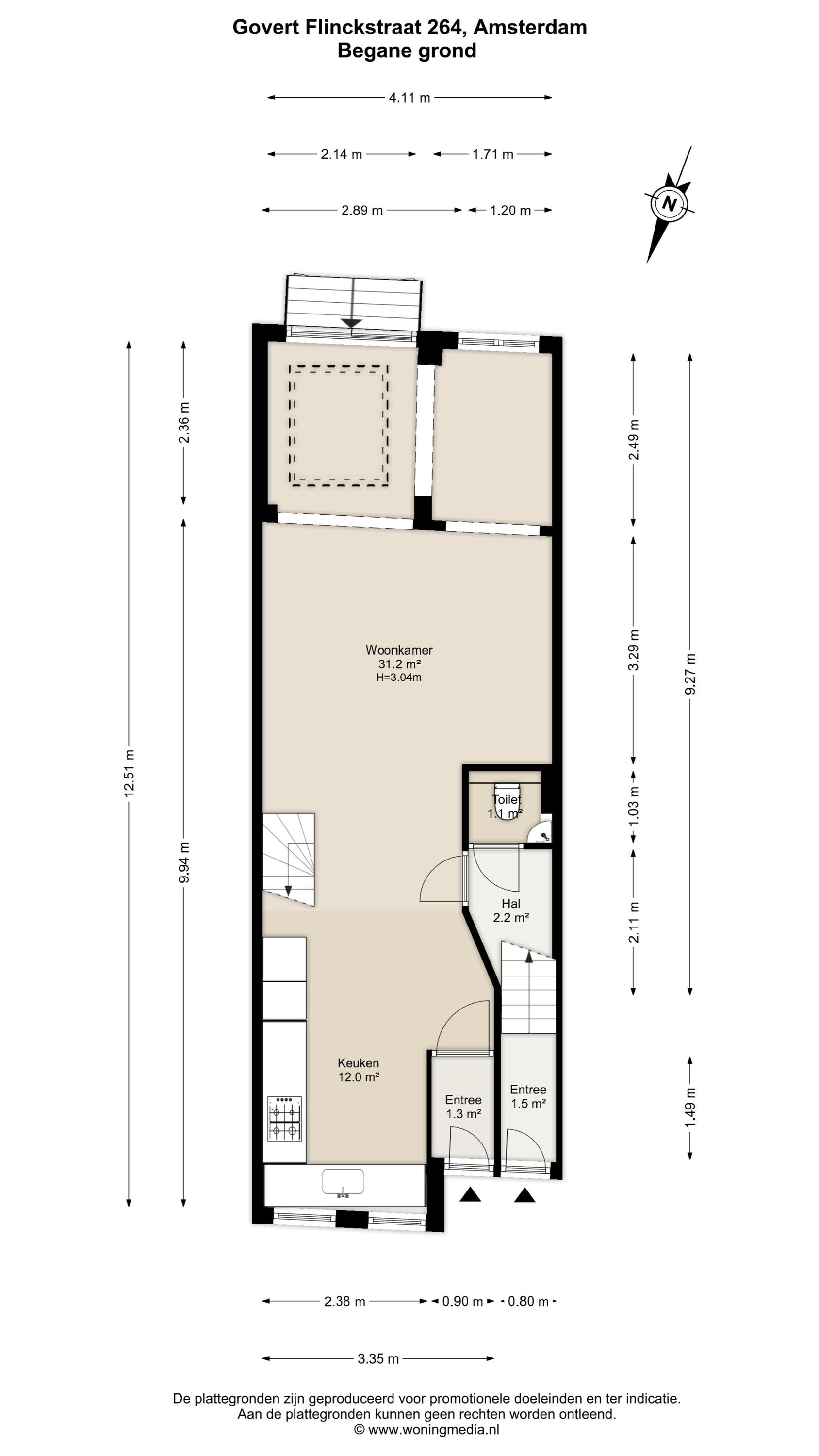
En la planta baja, una amplia zona de estar se realza gracias a una altura de techo de más de tres metros, claraboya y puertas francesas que se abren a un jardín orientado al sur de aproximadamente 49 m². La cocina abierta al frente enmarca vistas a la calle e incluye electrodomésticos como un grifo Howat 3-en-1 de agua hirviendo, placa de cinco fuegos y amplias soluciones de almacenamiento. La primera planta alberga tres dormitorios, un baño completo con bañera y ducha a ras de suelo, además de una zona de lavandería independiente.

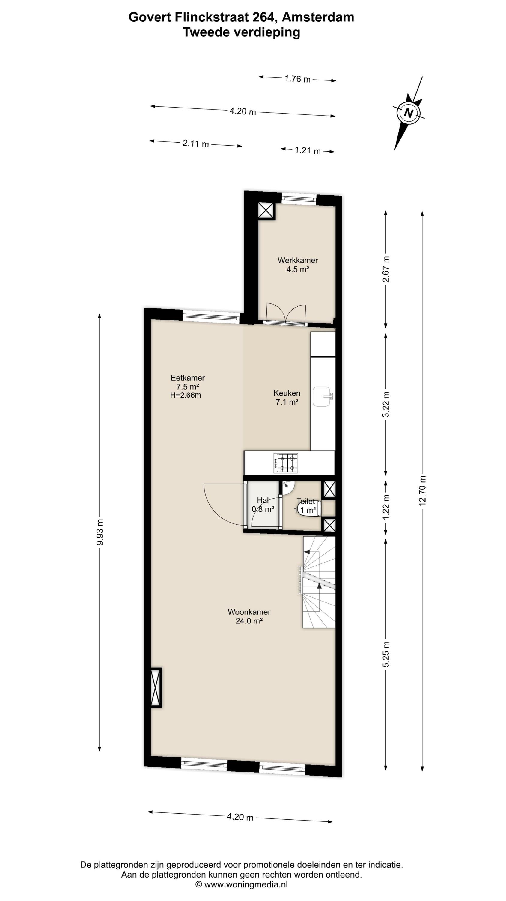
La segunda planta es autónoma y se accede por una entrada privada, con espacios de salón y comedor diseñados para maximizar la luz. Una cocina independiente y una estancia dedicada como despacho u oficina completan este nivel. La tercera planta, reconocible por su singular estructura de tejado, ventanas de buhardilla y tragaluces, acoge dos dormitorios espaciosos y un baño, con el principal ofreciendo acceso a un balcón orientado al sur de aproximadamente 5 m².

Situado a pocos pasos del Mercado Albert Cuyp y del Sarphatipark, rodeado de cafés, boutiques y servicios diarios, el apartamento ofrece acceso inmediato al ritmo cultural y gastronómico de Ámsterdam. Conexiones de transporte clave, desde el metro Noord/Zuid hasta tranvías y autobuses, están a corta distancia; el aeropuerto de Schiphol se alcanza en 15 minutos en coche. Clase energética D, calefacción central y la opción de dos permisos de estacionamiento complementan la vida contemporánea. El apartamento promete una base discreta en un entorno urbano dinámico.

Explora Ámsterdam con Baerz, Tu Buscador y Asesor Personal de Propiedades de Confianza

Navegar en el mercado de lujo de Ámsterdam exige un profundo conocimiento local, discreción y habilidad negociadora. Los mejores asesores ofrecen acceso a listados privados, aclaran las complejidades legales y detectan oportunidades en un contexto donde rara vez afloran al público. Los equipos consultores realizan auditorías exhaustivas y representación personalizada, fortaleciendo su posición en negociaciones, garantizando transacciones impecables y protegiendo su privacidad en cada etapa.

Evita los errores comunes

Los compradores internacionales a menudo pierden tiempo valioso en listados en línea duplicados, desactualizados o engañosos, especialmente porque casi el 30% de las casas de lujo nunca aparecen en el mercado público. Los agentes del vendedor representan los intereses del vendedor, no los del comprador. Incluso solicitar información sobre una propiedad puede resultar en que un agente del vendedor te registre como su “cliente” sin tu consentimiento.
Con Baerz Property Finders & Advisors, evitas por completo todos estos errores. Trabajamos únicamente en tu nombre, ofreciendo representación independiente, orientación clara y acceso a todas las propiedades disponibles, incluidas oportunidades fuera del mercado que otros nunca llegan a ver.

¿Interesado en un Asesor Personal de Propiedades?

Te mostramos todas las casas disponibles en un solo lugar. No dudes en contactarnos para saber cómo podemos satisfacer tus necesidades y proteger tus intereses exclusivamente.

Características

Transferencia de propiedad
Precio de venta
€ 1.100.000 k.k.
Estado
verkocht onder voorbehoud
Aceptación
in overleg
Construcción
Tipo de casa
Eengezinswoning
Tipo de edificio
tussenwoning
Periodo de construcción
1885
Calificación energética
D
Tipo de tejado
mansarde dak
Dormitorios
5
Baños
2
Superficies y Volumen
Superficie habitable
175 m2
Otro espacio interior
0 m2
Espacio exterior adjunto al edificio
5 m2
Volumen en metros cúbicos
611 m3
Tamaño del terreno
108 m2
Instalaciones
Tv kabel
Natuurlijke ventilatie
In centrum
In woonwijk
Baerz & Co Property Brochure

Folleto

Vídeos

Heeren Makelaars

Stadionweg 75
1077 SE Amsterdam

info@heerenmakelaars.nl
+31 204702255

www.heerenmakelaars.nl

Solicitud de información / Visita

Eran Hausel profile image
Eran Hausel
Real estate agent