Ons kantoor is lid van Baerz & Co Luxury Homes; een internationaal platform dat exclusieve woningmakelaars met elkaar verbindt. Neem contact op met ons secretariaat voor meer informatie over het landelijke aanbod, waarvan u hieronder een selectie kunt bekijken.

AMSTERDAM
Singel 104 A - 1015 AD
Países Bajos

Sander Bovenkerk profile image
Sander Bovenkerk
Real estate agent
€3,250,000 k.k.
Superficie habitable
521m2
Tamaño del terreno
111m2
Dormitorios
7

Descripción

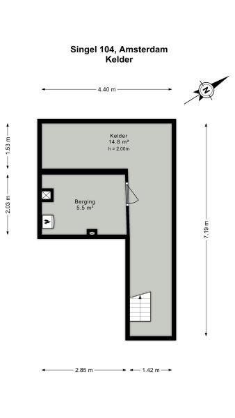
La casa en el canal Singel 104 de Ámsterdam captura el carácter de la Edad de Oro de la ciudad y abre paso a una visión contemporánea para vivir, trabajar o ambas cosas. Esta propiedad monumental ofrece aproximadamente 521 m² distribuidos en ocho plantas, donde los techos altos, la luz natural y las amplias proporciones brindan una sensación poco común de escala y flexibilidad. Se encuentra sobre suelo en propiedad, en el corazón histórico de Ámsterdam, entre los canales originales de la ciudad y a un paso de tiendas exclusivas, restaurantes reconocidos y la vibrante atmósfera de Haarlemmerstraat y Haarlemmerdijk.

La experiencia residencial se define por la interacción entre detalles originales conservados y adaptabilidad. Los tres pisos inferiores han funcionado como oficinas, mientras que las áreas residenciales superiores invitan a vivir con amplitud, todas diseñadas con grandes ventanales y excepcionales vistas al Singel. Entre las mejoras modernas destacan la ventilación natural, paneles solares, aislamiento en el tejado y acristalamiento de alta eficiencia, así como calefacción central, fusionando sostenibilidad con patrimonio.

La terraza en la azotea corona la vivienda y revela el perfil urbano y la serenidad del canal. La ubicación ofrece un acceso discreto a la Estación Central a solo cinco minutos, además de conexiones directas con la circunvalación A10. Esta casa en canal de Ámsterdam es tanto una residencia llena de historia como una base para nuevas posibilidades: una oportunidad exclusiva y totalmente personalizable en uno de los paisajes urbanos más perdurables de Europa.

Explora Ámsterdam con Baerz, Tu Buscador y Asesor Personal de Propiedades de Confianza

Navegar en el mercado de lujo de Ámsterdam exige un profundo conocimiento local, discreción y habilidad negociadora. Los mejores asesores ofrecen acceso a listados privados, aclaran las complejidades legales y detectan oportunidades en un contexto donde rara vez afloran al público. Los equipos consultores realizan auditorías exhaustivas y representación personalizada, fortaleciendo su posición en negociaciones, garantizando transacciones impecables y protegiendo su privacidad en cada etapa.

Evita los errores comunes

Los compradores internacionales a menudo pierden tiempo valioso en listados en línea duplicados, desactualizados o engañosos, especialmente porque casi el 30% de las casas de lujo nunca aparecen en el mercado público. Los agentes del vendedor representan los intereses del vendedor, no los del comprador. Incluso solicitar información sobre una propiedad puede resultar en que un agente del vendedor te registre como su “cliente” sin tu consentimiento.
Con Baerz Property Finders & Advisors, evitas por completo todos estos errores. Trabajamos únicamente en tu nombre, ofreciendo representación independiente, orientación clara y acceso a todas las propiedades disponibles, incluidas oportunidades fuera del mercado que otros nunca llegan a ver.

¿Interesado en un Asesor Personal de Propiedades?

Te mostramos todas las casas disponibles en un solo lugar. No dudes en contactarnos para saber cómo podemos satisfacer tus necesidades y proteger tus intereses exclusivamente.

Características

Paneles solares
Transferencia de propiedad
Precio de venta
€ 3.250.000 k.k.
Estado
verkocht onder voorbehoud
Aceptación
in overleg
Construcción
Tipo de casa
Grachtenpand
Tipo de edificio
tussenwoning
Periodo de construcción
1740
Tipo de tejado
zadeldak
Dormitorios
7
Baños
2
Superficies y Volumen
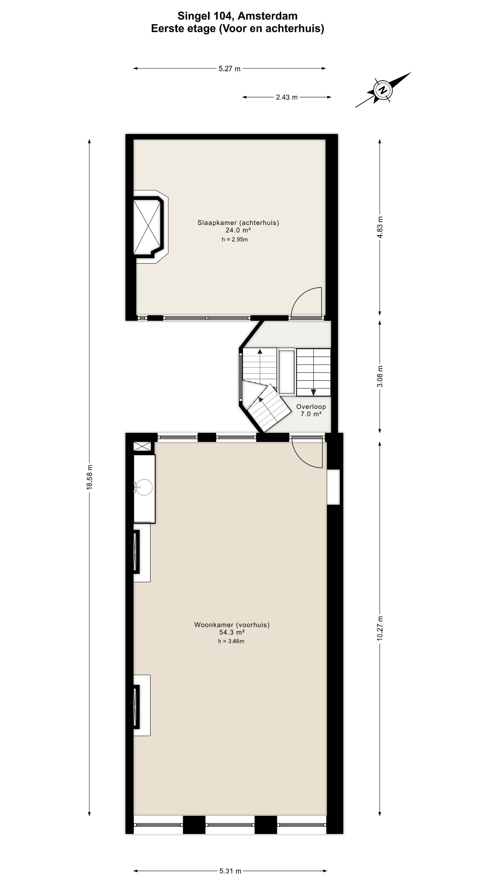
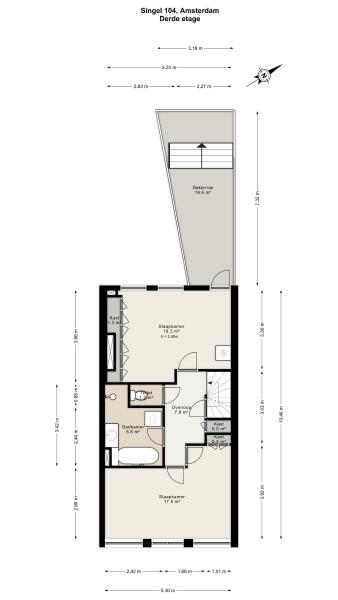
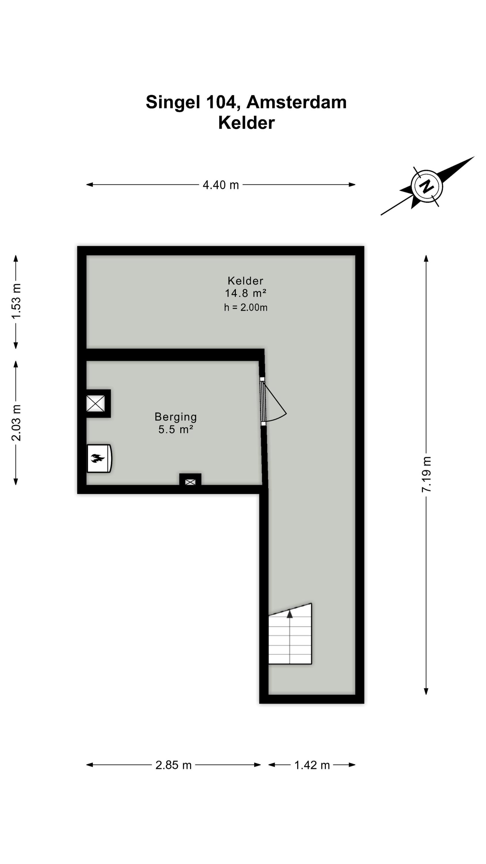
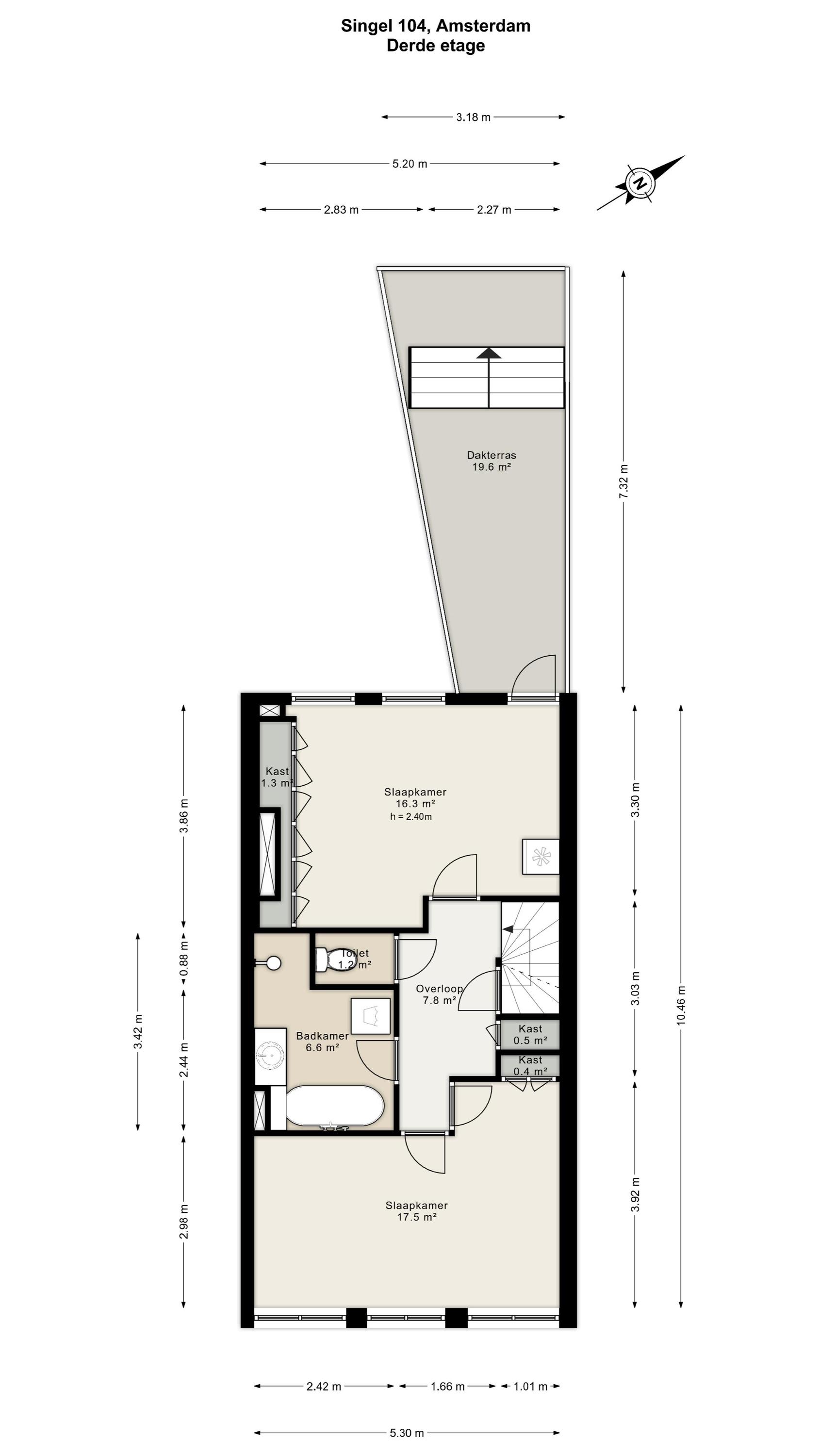
Superficie habitable
521 m2
Otro espacio interior
0 m2
Espacio exterior adjunto al edificio
20 m2
Volumen en metros cúbicos
1889 m3
Tamaño del terreno
111 m2
Instalaciones
Zonnepanelen
Natuurlijke ventilatie
Aan water
In centrum
Baerz & Co Property Brochure

Folleto

Vídeos

Heeren Makelaars

Stadionweg 75
1077 SE Amsterdam

info@heerenmakelaars.nl
+31 204702255

www.heerenmakelaars.nl

Solicitud de información / Visita

Sander Bovenkerk profile image
Sander Bovenkerk
Real estate agent