Ons kantoor is lid van Baerz & Co Luxury Homes; een internationaal platform dat exclusieve woningmakelaars met elkaar verbindt. Neem contact op met ons secretariaat voor meer informatie over het landelijke aanbod, waarvan u hieronder een selectie kunt bekijken.

AMSTERDAM
Stadhouderskade 22 B - 1054 ES
Países Bajos

Sander Bovenkerk profile image
Sander Bovenkerk
Real estate agent
€2,400,000 k.k.
Superficie habitable
219m2
Tamaño del terreno
N/A
Dormitorios
3

Descripción

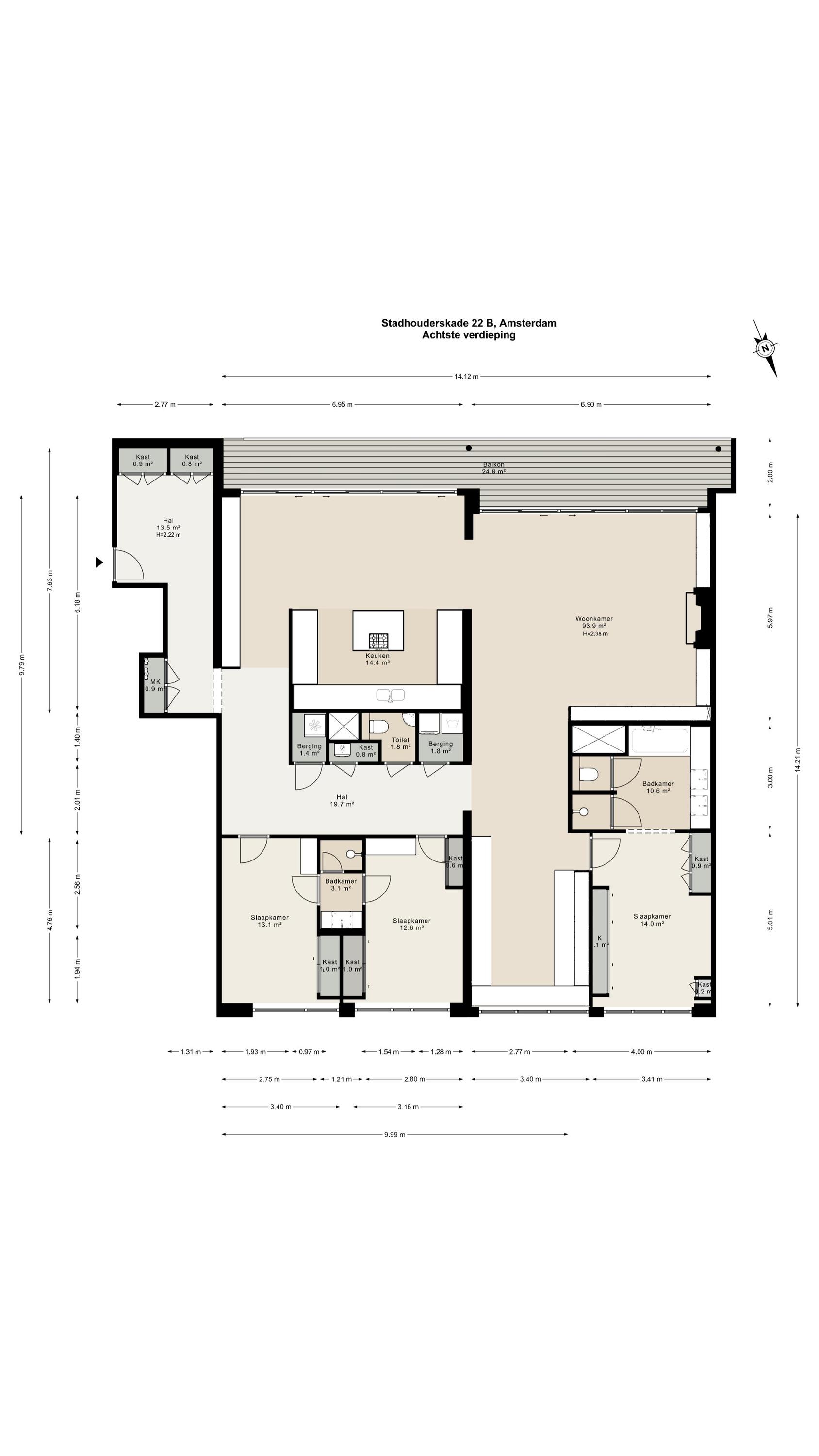
El ático Amsterdam se sitúa en la octava planta del complejo Byzantium, justo al lado de Vondelpark. Este apartamento de 219 m² equilibra la claridad arquitectónica con una privacidad excepcional, ofreciendo espacios luminosos y una proximidad inmejorable al corazón verde de la ciudad. Desde el primer momento en el lujoso vestíbulo de piedra natural, la elegancia del edificio resulta evidente. Diseñado por Rem Koolhaas, el complejo Byzantium proporciona un entorno seguro con vigilancia las 24 horas, conserjería y acceso directo por ascensor desde el garaje subterráneo, donde se puede disponer opcionalmente de plaza de aparcamiento con punto de carga para vehículos eléctricos.

Al acceder al ático, un amplio recibidor desemboca en una zona diáfana de estar, marcada por puertas acristaladas de suelo a techo que comunican de manera fluida con un balcón de 25 m² que se extiende a lo largo de toda la residencia. Vondelpark se despliega debajo, visible tanto desde el salón como desde la cocina, proporcionando una atmósfera de serenidad poco común en la ciudad. La cocina está completamente equipada, con una isla central, placa de inducción de seis fuegos y abundante espacio de almacenamiento. El salón, presidido por una chimenea de gas y mobiliario a medida, se conecta con una cómoda zona de trabajo. Tres dormitorios disponen de armarios empotrados, escritorios personalizados y aire acondicionado, mientras que la suite principal destaca por un baño en mármol verde con doble lavabo. En toda la vivienda, la calefacción por suelo radiante y los sistemas energéticamente eficientes aseguran el confort durante todo el año, complementados por doble acristalamiento y ventilación mecánica.

Los residentes de Byzantium disfrutan de una comunidad gestionada profesionalmente, planificación de mantenimiento a largo plazo y jardines compartidos cuidadosamente diseñados. Todos los servicios urbanos están a poca distancia a pie: desde las boutiques de P.C. Hooftstraat hasta museos, teatros y restaurantes de categoría mundial. Las conexiones de tranvía y autobús en Leidseplein y Marnixstraat facilitan el acceso a cualquier punto de Ámsterdam y al aeropuerto de Schiphol. Este ático de lujo a la venta en Ámsterdam ofrece un estilo de vida urbano distinguido, amplitud y una herencia arquitectónica perdurable.

Explora Ámsterdam con Baerz, Tu Buscador y Asesor Personal de Propiedades de Confianza

Navegar en el mercado de lujo de Ámsterdam exige un profundo conocimiento local, discreción y habilidad negociadora. Los mejores asesores ofrecen acceso a listados privados, aclaran las complejidades legales y detectan oportunidades en un contexto donde rara vez afloran al público. Los equipos consultores realizan auditorías exhaustivas y representación personalizada, fortaleciendo su posición en negociaciones, garantizando transacciones impecables y protegiendo su privacidad en cada etapa.

Evita los errores comunes

Los compradores internacionales a menudo pierden tiempo valioso en listados en línea duplicados, desactualizados o engañosos, especialmente porque casi el 30% de las casas de lujo nunca aparecen en el mercado público. Los agentes del vendedor representan los intereses del vendedor, no los del comprador. Incluso solicitar información sobre una propiedad puede resultar en que un agente del vendedor te registre como su “cliente” sin tu consentimiento.
Con Baerz Property Finders & Advisors, evitas por completo todos estos errores. Trabajamos únicamente en tu nombre, ofreciendo representación independiente, orientación clara y acceso a todas las propiedades disponibles, incluidas oportunidades fuera del mercado que otros nunca llegan a ver.

¿Interesado en un Asesor Personal de Propiedades?

Te mostramos todas las casas disponibles en un solo lugar. No dudes en contactarnos para saber cómo podemos satisfacer tus necesidades y proteger tus intereses exclusivamente.

Características

Aire acondicionado
Transferencia de propiedad
Precio de venta
€ 2.400.000 k.k.
Estado
verkocht onder voorbehoud
Aceptación
in overleg
Construcción
Tipo de casa
Penthouse
Tipo de edificio
appartement
Periodo de construcción
1991
Calificación energética
A
Tipo de tejado
samengesteld dak
Dormitorios
3
Baños
0
Superficies y Volumen
Superficie habitable
219 m2
Otro espacio interior
0 m2
Espacio exterior adjunto al edificio
25 m2
Volumen en metros cúbicos
635 m3
Instalaciones
Mechanische ventilatie
Buitenzonwering
Lift
Airconditioning
Rookkanaal
Aan park
In centrum
Vrij uitzicht
Baerz & Co Property Brochure

Folleto

Vídeos

Planos

Heeren Makelaars

Stadionweg 75
1077 SE Amsterdam

info@heerenmakelaars.nl
+31 204702255

www.heerenmakelaars.nl

Solicitud de información / Visita

Sander Bovenkerk profile image
Sander Bovenkerk
Real estate agent