Ons kantoor is lid van Baerz & Co Luxury Homes; een internationaal platform dat exclusieve woningmakelaars met elkaar verbindt. Neem contact op met ons secretariaat voor meer informatie over het landelijke aanbod, waarvan u hieronder een selectie kunt bekijken.

AMSTERDAM
Van Breestraat 45 - 1071 ZG
Países Bajos

Eran Hausel profile image
Eran Hausel
Real estate agent
€4,250,000 k.k.
Superficie habitable
291m2
Tamaño del terreno
115m2
Dormitorios
4

Descripción

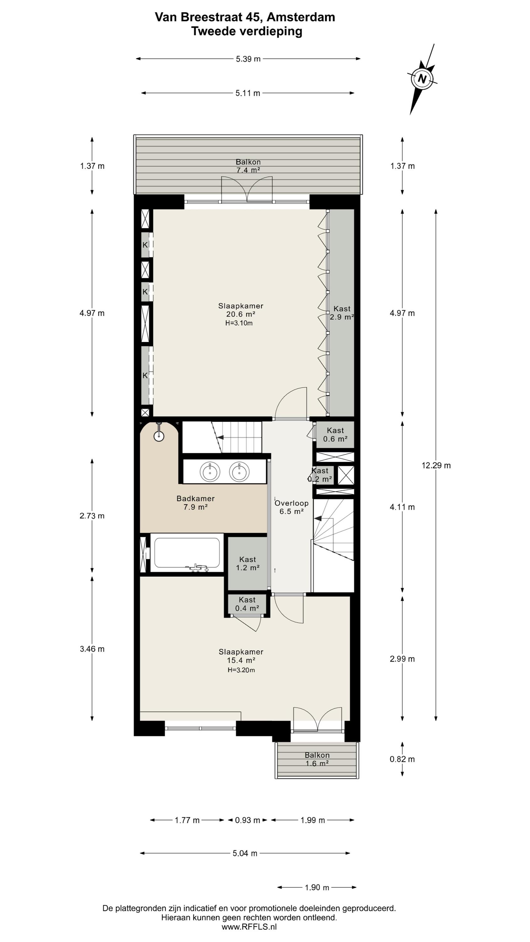
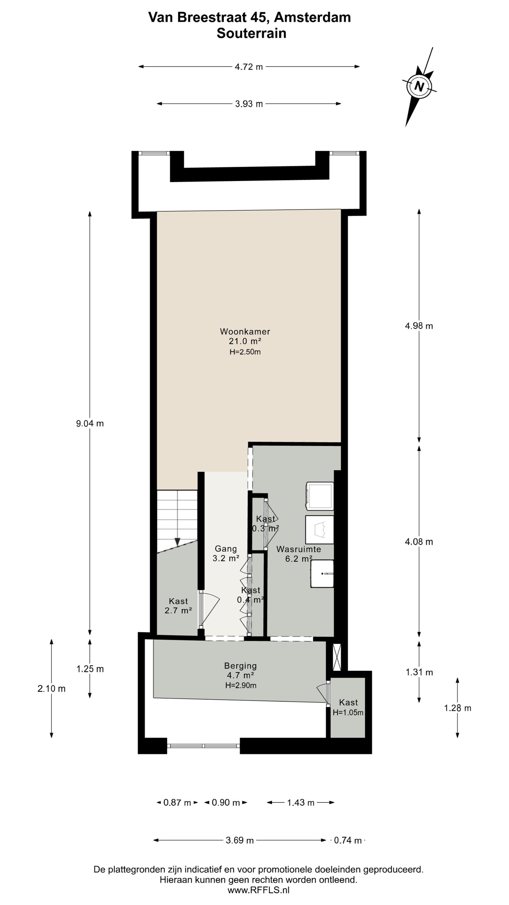
Townhouse Amsterdam Oud-Zuid representa la convergencia entre la integridad arquitectónica y el prestigio urbano en una de las ubicaciones más codiciadas de Ámsterdam. Esta residencia familiar, que abarca 291 m² distribuidos en cinco plantas completas, se encuentra en Van Breestraat, en el Distrito de los Museos, a escasa distancia de P.C. Hooftstraat, Vondelpark y Museumplein. El hogar ofrece un mundo privado forjado por la renovación arquitectónica realizada en 2012 por Dick van Gameren, donde el flujo espacial expansivo, la abundante luz natural y un diseño sereno se combinan de forma armoniosa. El townhouse cuenta con cuatro dormitorios, dos baños, un atrio bañado por la luz natural coronado por una gran claraboya y un jardín orientado al sur de 40,2 m², que prolonga los espacios de convivencia y permite disfrutar del aire libre en Amsterdam Oud-Zuid.

En toda la vivienda, la interacción entre los detalles originales y las modernas actualizaciones—como interruptores inteligentes programables, domótica, aislamiento acústico de alta calidad y aire acondicionado—reafirma el compromiso con el confort y la preparación para el futuro. La cocina a medida ha sido diseñada para comidas familiares íntimas y eventos distinguidos, con acceso directo, a través de puertas francesas, a la terraza cubierta y al jardín. Varios balcones, un sótano multifuncional y una galería con vistas al atrio central aportan dimensión al estilo de vida.

Con clase energética A, tecnología doméstica avanzada, paneles solares y preparativos para un ascensor de pasajeros, la propiedad combina sostenibilidad y flexibilidad contemporánea. Ubicada en una tranquila calle arbolada que evoca una atmósfera residencial, la dirección ofrece la calma de un pueblo en medio de la vitalidad de Ámsterdam. Una conectividad excelente, la proximidad a colegios internacionales y el acceso inmediato a espacios culturales enriquecen la vida diaria. Este townhouse en Amsterdam Oud-Zuid encapsula la privacidad y el dinamismo que definen la vida urbana de primer nivel.

Explora Ámsterdam con Baerz, Tu Buscador y Asesor Personal de Propiedades de Confianza

Navegar en el mercado de lujo de Ámsterdam exige un profundo conocimiento local, discreción y habilidad negociadora. Los mejores asesores ofrecen acceso a listados privados, aclaran las complejidades legales y detectan oportunidades en un contexto donde rara vez afloran al público. Los equipos consultores realizan auditorías exhaustivas y representación personalizada, fortaleciendo su posición en negociaciones, garantizando transacciones impecables y protegiendo su privacidad en cada etapa.

Evita los errores comunes

Los compradores internacionales a menudo pierden tiempo valioso en listados en línea duplicados, desactualizados o engañosos, especialmente porque casi el 30% de las casas de lujo nunca aparecen en el mercado público. Los agentes del vendedor representan los intereses del vendedor, no los del comprador. Incluso solicitar información sobre una propiedad puede resultar en que un agente del vendedor te registre como su “cliente” sin tu consentimiento.
Con Baerz Property Finders & Advisors, evitas por completo todos estos errores. Trabajamos únicamente en tu nombre, ofreciendo representación independiente, orientación clara y acceso a todas las propiedades disponibles, incluidas oportunidades fuera del mercado que otros nunca llegan a ver.

¿Interesado en un Asesor Personal de Propiedades?

Te mostramos todas las casas disponibles en un solo lugar. No dudes en contactarnos para saber cómo podemos satisfacer tus necesidades y proteger tus intereses exclusivamente.

Características

Paneles solares
Transferencia de propiedad
Precio de venta
€ 4.250.000 k.k.
Estado
beschikbaar
Aceptación
in overleg
Construcción
Tipo de casa
Eengezinswoning
Tipo de edificio
tussenwoning
Periodo de construcción
1900
Calificación energética
A
Tipo de tejado
plat dak
Dormitorios
4
Baños
2
Superficies y Volumen
Superficie habitable
291 m2
Otro espacio interior
0 m2
Espacio exterior adjunto al edificio
19 m2
Volumen en metros cúbicos
1183 m3
Tamaño del terreno
115 m2
Instalaciones
Mechanische ventilatie
Domotica
Zonnepanelen
Aan rustige weg
In woonwijk
Baerz & Co Property Brochure

Folleto

Vídeos

Visitas virtuales

VIRTUAL TOUR
Virtual Tour Van Breestraat 45

Heeren Makelaars

Stadionweg 75
1077 SE Amsterdam

info@heerenmakelaars.nl
+31 204702255

www.heerenmakelaars.nl

Solicitud de información / Visita

Eran Hausel profile image
Eran Hausel
Real estate agent