Villa Uithoorn ofrece un excepcional equilibrio entre amplitud y elegancia en la codiciada zona residencial de Legmeer-West. Desde el primer momento, sus 290 m² de superficie reciben con luz natural, privacidad y versatilidad. La llegada marca una atmósfera serena, con un amplio acceso privado para varios vehículos y una calle tranquila que realza la presencia apacible de la propiedad.
Al entrar, el vestíbulo revela una distribución inteligente y soluciones de almacenamiento discretas. El salón principal destaca por su luminosidad y la fluidez entre el interior y el exterior, gracias a puertas francesas que se abren a un extenso y soleado jardín de 445 m². Varias terrazas, un estanque y acogedores rincones ofrecen lugares tanto para relajarse como para reuniones sociales. La cocina de concepto abierto está cuidadosamente diseñada, equipada con una gran isla central y electrodomésticos de alta gama distribuidos para ofrecer funcionalidad y un ambiente acogedor. Una sala multifuncional separada, con entrada privada, otorga flexibilidad como despacho, estudio o gimnasio, ideal para quienes valoran la autonomía y el espacio creativo.
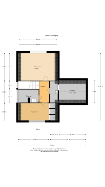
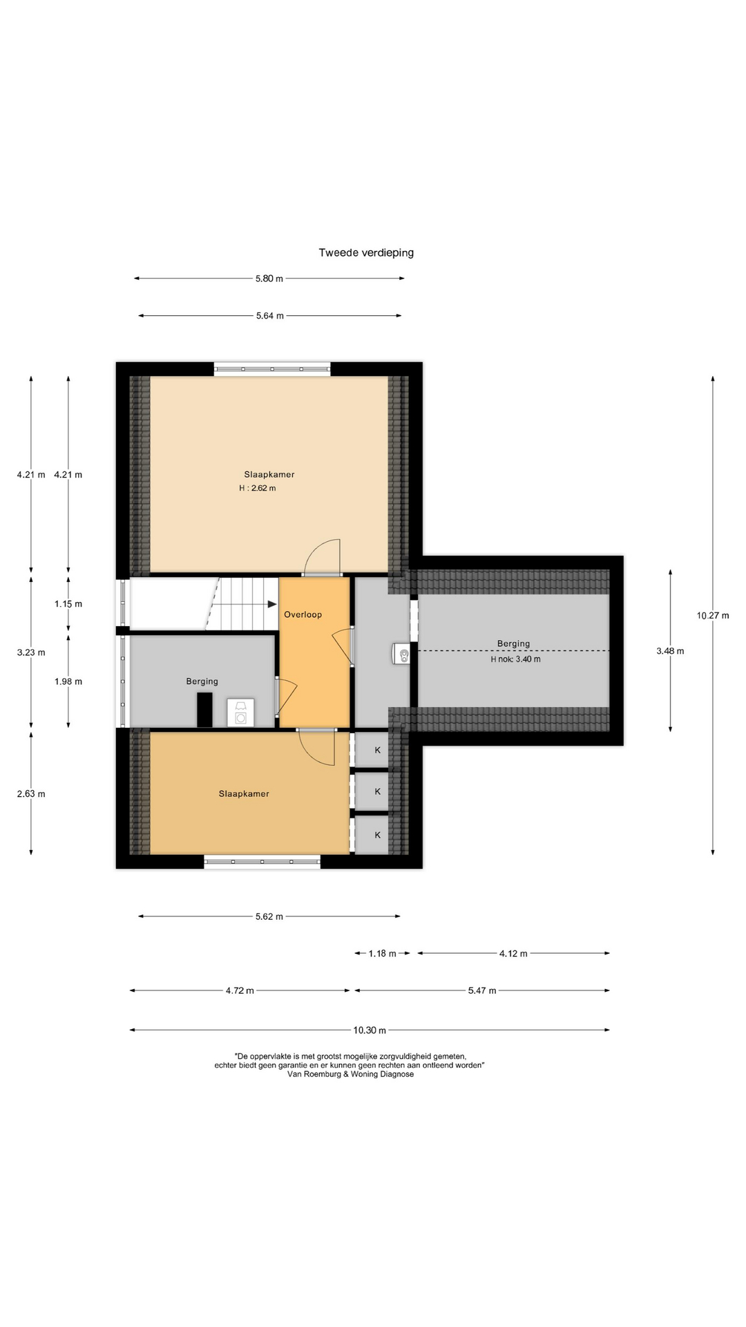
En la planta superior, tres dormitorios rodean un distribuidor tranquilo, mientras que un baño sereno y un aseo adicional de invitados subrayan el compromiso con la comodidad y la privacidad. La segunda planta amplía el potencial de la vivienda con dos dormitorios adicionales y abundante espacio de almacenamiento, adaptándose a las necesidades de familias en crecimiento o coleccionistas.
En toda la villa, materiales como los suelos de roble francés con calefacción por suelo radiante evocan un lujo discreto. El garaje, dotado de persiana eléctrica, calefacción y espacio de trabajo potencial, se integra perfectamente en la vivienda. La clasificación energética A incluye 18 paneles solares y una bomba de calor híbrida, que favorecen una vida moderna eficiente.
La proximidad a conexiones rápidas de tranvía hacia Ámsterdam, junto a la variedad de escuelas, parques y clubes deportivos, integra la accesibilidad urbana con el ritmo relajado de Uithoorn. La villa no solo ofrece espacio y artesanía, sino también una dirección donde convergen la tranquilidad, la conectividad y la comodidad diaria.
Explora Uithoorn con Baerz, Tu Buscador y Asesor Personal de Propiedades de Confianza
La complejidad del mercado de Uithoorn, con negociaciones especializadas, propiedades fuera de mercado y normativas cambiantes, beneficia a quienes confían en asesores experimentados. Estos expertos orientan desde la localización hasta el cierre del trato, ofreciendo acceso a oportunidades discretas y conocimiento del cliente.
Evita los errores comunes
Los compradores internacionales a menudo pierden tiempo valioso en listados en línea duplicados, desactualizados o engañosos, especialmente porque casi el 30% de las casas de lujo nunca aparecen en el mercado público. Los agentes del vendedor representan los intereses del vendedor, no los del comprador. Incluso solicitar información sobre una propiedad puede resultar en que un agente del vendedor te registre como su “cliente” sin tu consentimiento.
Con Baerz Property Finders & Advisors, evitas por completo todos estos errores. Trabajamos únicamente en tu nombre, ofreciendo representación independiente, orientación clara y acceso a todas las propiedades disponibles, incluidas oportunidades fuera del mercado que otros nunca llegan a ver.
¿Interesado en un Asesor Personal de Propiedades?
Te mostramos todas las casas disponibles en un solo lugar. No dudes en contactarnos para saber cómo podemos satisfacer tus necesidades y proteger tus intereses exclusivamente.