Ons kantoor is lid van Baerz & Co Luxury Homes; een internationaal platform dat exclusieve woningmakelaars met elkaar verbindt. Neem contact op met ons secretariaat voor meer informatie over het landelijke aanbod, waarvan u hieronder een selectie kunt bekijken.

ZALTBOMMEL
Tolstraat 21 - 5301 AX
Países Bajos

Jeanette van Haaften profile image
Jeanette van Haaften
Real Estate Agent
€1,000,000 k.k.
Superficie habitable
299m2
Tamaño del terreno
204m2
Dormitorios
3

Descripción

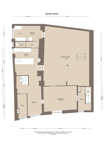
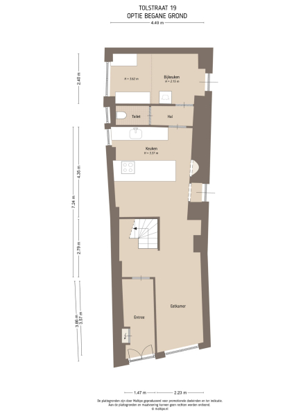
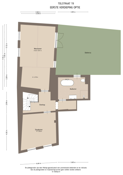
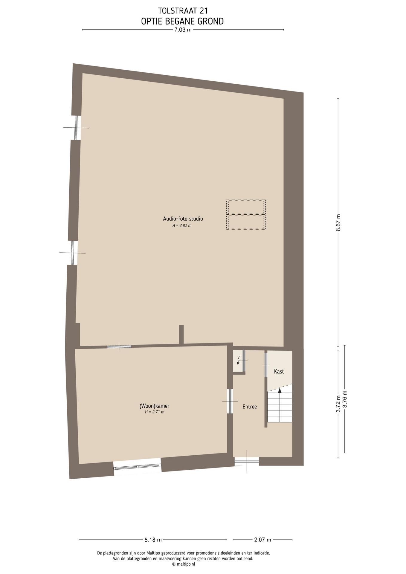
La casa adosada Zaltbommel ofrece un equilibrio poco común de amplitud, historia y versatilidad, con 299 m² de interiores cuidadosamente restaurados y una terraza en la azotea de 45 m² con vistas al río Waal. Esta propiedad de uso mixto, situada dentro de las antiguas murallas de la ciudad, dispone de tres dormitorios y dos baños distribuidos en dos residencias interconectadas sobre una parcela de 204 m², con posibilidad de dividirse según permisos.

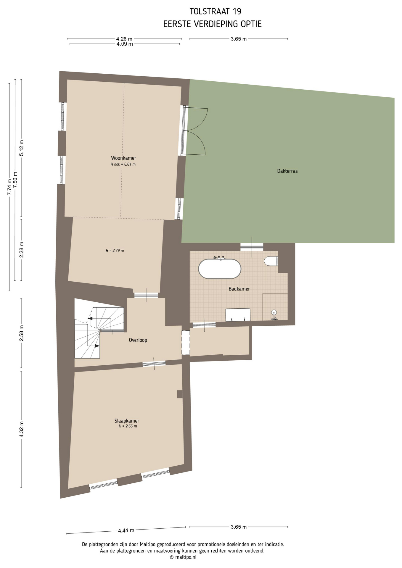
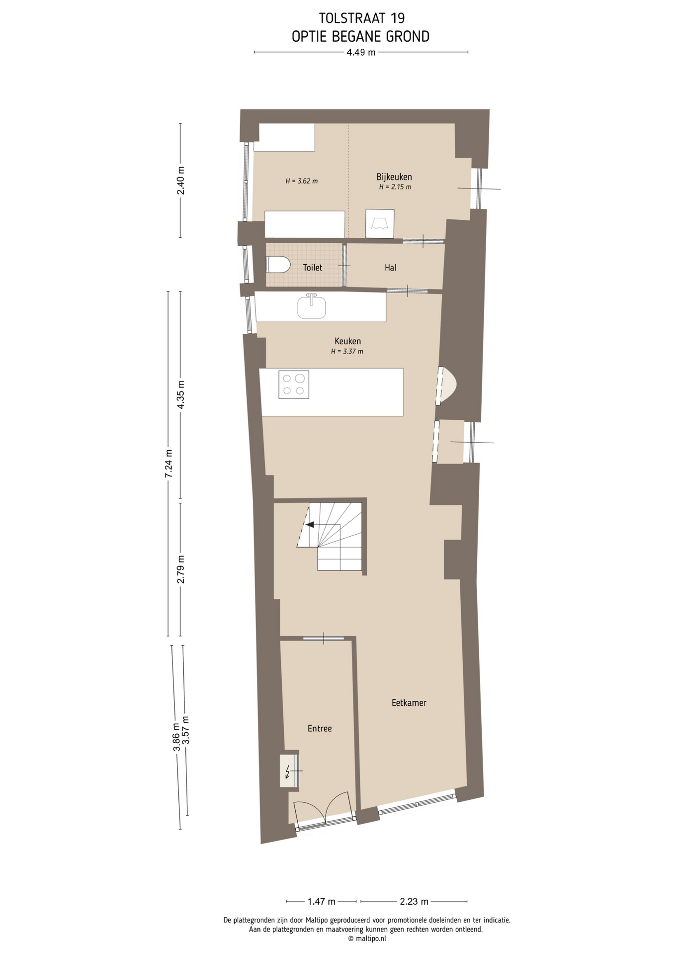
La arquitectura conserva la esencia del siglo XVII, desde vigas expuestas hasta una antigua escalera de caracol, mientras que se adapta a la vida contemporánea con una cocina de 2020, baños de lujo y aislamiento mejorado en toda la vivienda. Cada planta se distingue por su luz natural, techos altos y una cadencia serena: la amplia cocina es el centro de las reuniones familiares y un soleado atelier o estudio, de aproximadamente 65 m², ofrece un generoso espacio para la creatividad. El salón destaca por sus techos de 6,5 metros de altura y se conecta con la tranquilidad exterior gracias a puertas dobles que dan acceso a la terraza ajardinada, desde donde se divisa el río y los olivos enmarcan las mañanas apacibles.

Tolstraat 21 aporta un estudio independiente, aislamiento acústico y entrada privada, ideal para galería artística o estudio. La clase energética C subraya las mejoras, como el aislamiento de tejado y paredes, acristalamiento de alta eficiencia, calefacción por suelo radiante en estancias seleccionadas y diecinueve paneles solares. Entre las prestaciones se encuentran internet por fibra óptica, sistema de alarma y ventilación natural.

Ubicada en una calle lateral de sentido único junto al animado centro de Zaltbommel, la dirección ofrece privacidad manteniendo cafés, boutiques, escuelas, clubes deportivos y la estación al alcance. El paseo fluvial Waalkade y las tiendas locales están a pocos pasos, convirtiendo esta casa en una opción única para quienes buscan espacio adaptable, historia y una conexión directa con el paisaje holandés.

Explora Zaltbommel con Baerz, Tu Buscador y Asesor Personal de Propiedades de Confianza

Para asegurar las mejores oportunidades es imprescindible contar con asesores con red local y profundo conocimiento del mercado. Ellos identifican opciones discretas, guían las negociaciones y estructuran adquisiciones con precisión, anticipando matices regulatorios y defendiendo los intereses del cliente en cada etapa.

Evita los errores comunes

Los compradores internacionales a menudo pierden tiempo valioso en listados en línea duplicados, desactualizados o engañosos, especialmente porque casi el 30% de las casas de lujo nunca aparecen en el mercado público. Los agentes del vendedor representan los intereses del vendedor, no los del comprador. Incluso solicitar información sobre una propiedad puede resultar en que un agente del vendedor te registre como su “cliente” sin tu consentimiento.
Con Baerz Property Finders & Advisors, evitas por completo todos estos errores. Trabajamos únicamente en tu nombre, ofreciendo representación independiente, orientación clara y acceso a todas las propiedades disponibles, incluidas oportunidades fuera del mercado que otros nunca llegan a ver.

¿Interesado en un Asesor Personal de Propiedades?

Te mostramos todas las casas disponibles en un solo lugar. No dudes en contactarnos para saber cómo podemos satisfacer tus necesidades y proteger tus intereses exclusivamente.

Características

Paneles solares
Sistema de alarma
Transferencia de propiedad
Precio de venta
€ 1.000.000 k.k.
Estado
beschikbaar
Aceptación
in overleg
Construcción
Tipo de casa
Herenhuis
Tipo de edificio
tussenwoning
Periodo de construcción
1750
Calificación energética
C
Tipo de tejado
samengesteld dak
Dormitorios
3
Baños
2
Superficies y Volumen
Superficie habitable
299 m2
Otro espacio interior
15 m2
Espacio exterior adjunto al edificio
45 m2
Volumen en metros cúbicos
1265 m3
Tamaño del terreno
204 m2
Instalaciones
Alarminstallatie
Dakraam
Glasvezel kabel
Zonnepanelen
Natuurlijke ventilatie
Aan rustige weg
In centrum
Baerz & Co Property Brochure

Folleto

Vídeos

Panorámicas 360

360°
360 Panorama - Tolstraat 21
360°
360 Panorama - Tolstraat 21
360°
360 Panorama - Tolstraat 21
360°
360 Panorama - Tolstraat 21

Bijzonder Wonen Makelaardij

Heilige Geeststraat, 11
5301CP Zaltbommel

info@bijzonderwonen.com
+31 41 868 00 50

www.bijzonderwonen.com

Solicitud de información / Visita

Jeanette van Haaften profile image
Jeanette van Haaften
Real Estate Agent