Ons kantoor is lid van Baerz & Co Luxury Homes; een internationaal platform dat exclusieve woningmakelaars met elkaar verbindt. Neem contact op met ons secretariaat voor meer informatie over het landelijke aanbod, waarvan u hieronder een selectie kunt bekijken.

AMSTELVEEN
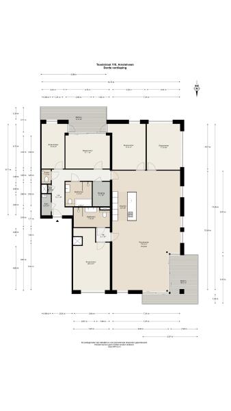
Texelstraat 110 - 1181 ES
Les Pays-Bas

Sander Bovenkerk profile image
Sander Bovenkerk
Real estate agent
€1,995,000 k.k.
Surface habitable
224m2
Superficie du terrain
N/A
Chambres
5

Description

L’Appartement Amstelveen incarne une adresse raffinée au sein des Forest Hill Luxury Apartments, offrant 221 m² d’espaces de vie dans une ambiance de modernité apaisée. Sa situation d’angle privilégiée au deuxième étage baigne chaque pièce de lumière naturelle, valorisée par deux terrasses ensoleillées totalisant 33 m² et une vue dégagée sur la verdure à proximité de l’Amsterdamse Bos.

Dès l’entrée, un hall central mène à l’espace de vie généreux de 120 m², où de larges baies vitrées permettent une transition fluide entre intérieur et terrasse. La cuisine Siematic s’équipe d’appareils Siemens et d’un plan de travail en pierre naturelle, conjuguant exigence fonctionnelle et esthétique. Le chauffage au sol et le vitrage HR++ procurent confort et rendement énergétique dans l’ensemble de l’appartement.

Cinq chambres, dont des options paisibles à l’arrière ainsi que deux donnant directement sur la terrasse, sont complétées par deux salles de bains avec douches à l’italienne et finitions raffinées. Deux espaces de rangement internes et une buanderie ajoutent une dimension pratique. Le label énergétique A++ et l’isolation totale, y compris les panneaux solaires, témoignent d’un art de vivre tourné vers l’avenir.

Situé dans le quartier verdoyant de Randwijck à Amstelveen, l’appartement marie quiétude et accès au Stadshart, à Gelderlandplein, aux écoles internationales, au musée Cobra et aux équipements bien-être. Les multiples options de stationnement dans le garage souterrain sécurisé assurent un confort urbain idéal. Cet appartement de luxe à vendre à Amstelveen est l’illustration d’un art de vivre sobre et d’une qualité assumée, là où nature et vie citadine s’accordent en parfaite harmonie.

Découvrez Amstelveen avec Baerz, votre conseiller et chasseur immobilier personnel de confiance

Le marché compétitif et discret d’Amstelveen requiert une connaissance allant bien au-delà des annonces publiques. Des conseillers expérimentés ouvrent l’accès à la vente privée, apportent une lecture fine du tissu local et structurent des transactions sur mesure. Leur expertise garantit une diligence aboutie, des négociations optimisées et une exécution transfrontalière sans faille, préservant les intérêts des clients à fort enjeu.

Évitez les pièges courants

Les acheteurs internationaux perdent souvent un temps précieux à naviguer entre des annonces en ligne dupliquées, obsolètes ou trompeuses, d’autant que près de 30% des propriétés de luxe ne sont jamais mises sur le marché.
Les agents du vendeur représentent les intérêts du vendeur, pas les vôtres, et une simple demande d’information peut entraîner votre inscription comme “client” auprès d’une agence sans votre consentement.
Avec Baerz Property Finders & Advisors, vous évitez totalement ces écueils.
Nous agissons exclusivement en votre nom, en vous offrant une représentation indépendante, des conseils transparents et un accès à toutes les propriétés disponibles, y compris les opportunités privées et off-market que les autres ne voient jamais.

Curieux de savoir comment obtenir votre propre Conseiller Immobilier Personnel ? Contactez-nous pour découvrir comment nous pouvons défendre vos intérêts et vous ouvrir l’accès à l’ensemble du marché.

Caractéristiques

Panneaux solaires
Transfert de propriété
Prix demandé
€ 1.995.000 k.k.
Statut
beschikbaar
Acceptation
direct
Construction
Type de maison
Tussenverdieping
Type de bâtiment
appartement
Période de construction
2022
Classe énergétique
A++
Type de toit
plat dak
Chambres
5
Salles de bains
2
Surfaces et volumes
Surface habitable
224 m2
Autre espace intérieur
0 m2
Espace extérieur attenant au bâtiment
33 m2
Espace de stockage externe
7 m2
Volume en mètres cubes
718 m3
Équipements
Mechanische ventilatie
Tv kabel
Schuifpui
Glasvezel kabel
Zonnepanelen
Aan bosrand
In woonwijk
Vrij uitzicht
Open ligging
Baerz & Co Property Brochure

Brochure

Vidéos

Heeren Makelaars

Stadionweg 75
1077 SE Amsterdam

info@heerenmakelaars.nl
+31 204702255

www.heerenmakelaars.nl

Demande d'information / de visite

Sander Bovenkerk profile image
Sander Bovenkerk
Real estate agent