Ons kantoor is lid van Baerz & Co Luxury Homes; een internationaal platform dat exclusieve woningmakelaars met elkaar verbindt. Neem contact op met ons secretariaat voor meer informatie over het landelijke aanbod, waarvan u hieronder een selectie kunt bekijken.

AMSTERDAM
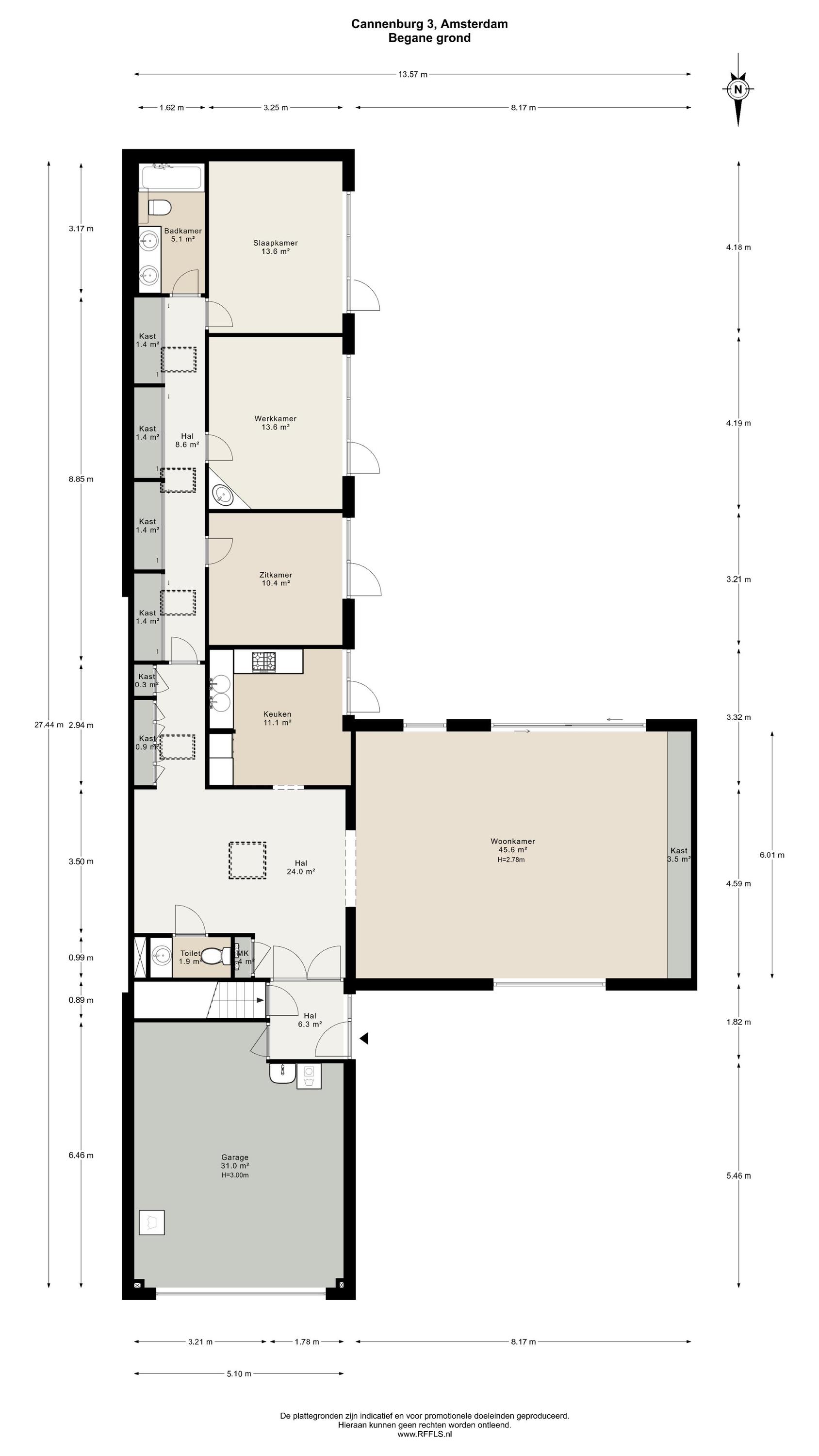
Cannenburg 3 - 1081 GT
Pays-Bas

Igor Veendrick profile image
Igor Veendrick
Real estate agent
€1,600,000 k.k.
Surface habitable
159m2
Superficie du terrain
392m2
Chambres
3

Description

Cette maison familiale à Amsterdam Buitenveldert offre un équilibre harmonieux entre volume, intimité et luminosité sur environ 159 m² d'espace de vie. Nichée dans un quartier résidentiel calme, entourée de verdure, elle bénéficie d’un généreux jardin avant et d’un jardin arrière orienté plein sud totalisant environ 179 m². Son agencement spacieux comprend un salon baigné de lumière, trois chambres confortables et une salle de bains équipée d’une baignoire. La climatisation, installée dans le salon et la suite principale, améliore l’atmosphère de vie. Un sous-sol polyvalent de 37 m², actuellement aménagé en seconde pièce à vivre avec un bar, invite à la détente ou peut servir d’espace de travail.

La conception soignée de la maison inclut une cuisine entièrement équipée d’appareils haut de gamme, des placards intégrés dans le couloir pour le rangement et un accès direct au jardin depuis chaque chambre. Un garage privé, doté d’une porte électrique et pouvant accueillir deux véhicules, ajoute une grande facilité au quotidien. Le double vitrage et la ventilation mécanique garantissent un confort optimal toute l’année.

Située dans le quartier très recherché de Buitenveldert, cette propriété vous place à quelques pas des boutiques et restaurants du Gelderlandplein, à seulement 100 mètres de l’International School, et offre un accès immédiat au rythme citadin via Station Zuid et l’A10. À quelques minutes d’Amstelpark et de l’Amsterdamse Bos, elle assure une proximité immédiate avec la ville comme avec les espaces verts. Familles, professionnels et acquéreurs internationaux apprécieront la connexion avec le quartier d’affaires Zuidas et les liaisons fluides vers Schiphol et au-delà. À vendre, cette maison familiale de standing à Amsterdam Buitenveldert réunit espace, sérénité et cadence urbaine.

Explorez Amsterdam avec Baerz, votre conseiller et chercheur de biens immobiliers de confiance

Pour naviguer le marché de prestige d’Amsterdam, il faut s’appuyer sur une connaissance pointue de la ville, la discrétion et des compétences avérées en négociation. Les meilleurs conseillers accèdent à des biens confidentiels, expliquent les subtilités réglementaires et identifient la valeur où l’opportunité ne se montre que rarement. Les équipes conseil opèrent une sélection poussée et assurent la représentation, renforçant votre position, assurant le bon déroulé de la transaction et veillant au respect de votre vie privée à chaque étape.

Évitez les pièges courants

Les acheteurs internationaux perdent souvent un temps précieux sur des annonces en double, obsolètes ou trompeuses en ligne, d'autant plus que près de 30% des maisons de luxe n'apparaissent jamais sur le marché public. Les agents du vendeur représentent les intérêts du vendeur, pas ceux de l'acheteur. Même demander des informations sur une propriété peut entraîner l'enregistrement par un agent du vendeur comme leur « client » sans votre consentement.
Avec Baerz Property Finders & Advisors, vous évitez entièrement tous ces pièges. Nous travaillons uniquement en votre nom, offrant une représentation indépendante, des conseils clairs et un accès à toutes les propriétés disponibles, y compris les opportunités hors marché que d'autres ne voient jamais.

Intéressé par un conseiller personnel en immobilier ?

Nous vous montrons toutes les maisons disponibles en un seul endroit. N'hésitez pas à nous contacter pour savoir comment nous pouvons répondre à vos besoins et protéger vos intérêts exclusivement.

Caractéristiques

Climatisation
Transfert de propriété
Prix demandé
€ 1.600.000 k.k.
Statut
verkocht onder voorbehoud
Acceptation
in overleg
Construction
Type de maison
Villa
Type de bâtiment
vrijstaande woning
Période de construction
1965
Chambres
3
Salles de bain
1
Surfaces et volume
Surface habitable
159 m2
Autre espace intérieur
75 m2
Volume en mètres cubes
888 m3
Superficie du terrain
392 m2
Installations
Mechanische ventilatie
Airconditioning
Dakraam
Aan park
Aan rustige weg
In woonwijk
Baerz & Co Property Brochure

Brochure

Vidéos

Heeren Makelaars

Stadionweg 75
1077 SE Amsterdam

info@heerenmakelaars.nl
+31 204702255

www.heerenmakelaars.nl

Demande d'information / de visite

Igor Veendrick profile image
Igor Veendrick
Real estate agent