Ons kantoor is lid van Baerz & Co Luxury Homes; een internationaal platform dat exclusieve woningmakelaars met elkaar verbindt. Neem contact op met ons secretariaat voor meer informatie over het landelijke aanbod, waarvan u hieronder een selectie kunt bekijken.

BERGEN (NH)
Buerweg 15 - 1861 CG
Pays-Bas

Angeline Croonen profile image
Angeline Croonen
Real Estate Agent
€2,995,000 k.k.
Surface habitable
344m2
Superficie du terrain
2684m2
Chambres
4

Description

La villa Bergen se dresse dans un cadre d’une quiétude rare, avec de vastes prairies à perte de vue et une intimité totale, sublimée par un portail d’artiste à l’entrée. Ce domaine conjugue histoire et modernité avec subtilité. En façade du terrain de 2 684 m², une ferme au toit de chaume du milieu du XVIIIe siècle, entièrement rénovée en 2014, signe un accueil élégant et authentique. Cette dépendance parfaitement aménagée offre la flexibilité d’un bureau à domicile, d’un atelier ou d’un espace de vie d’appoint, fidèle à ses origines.

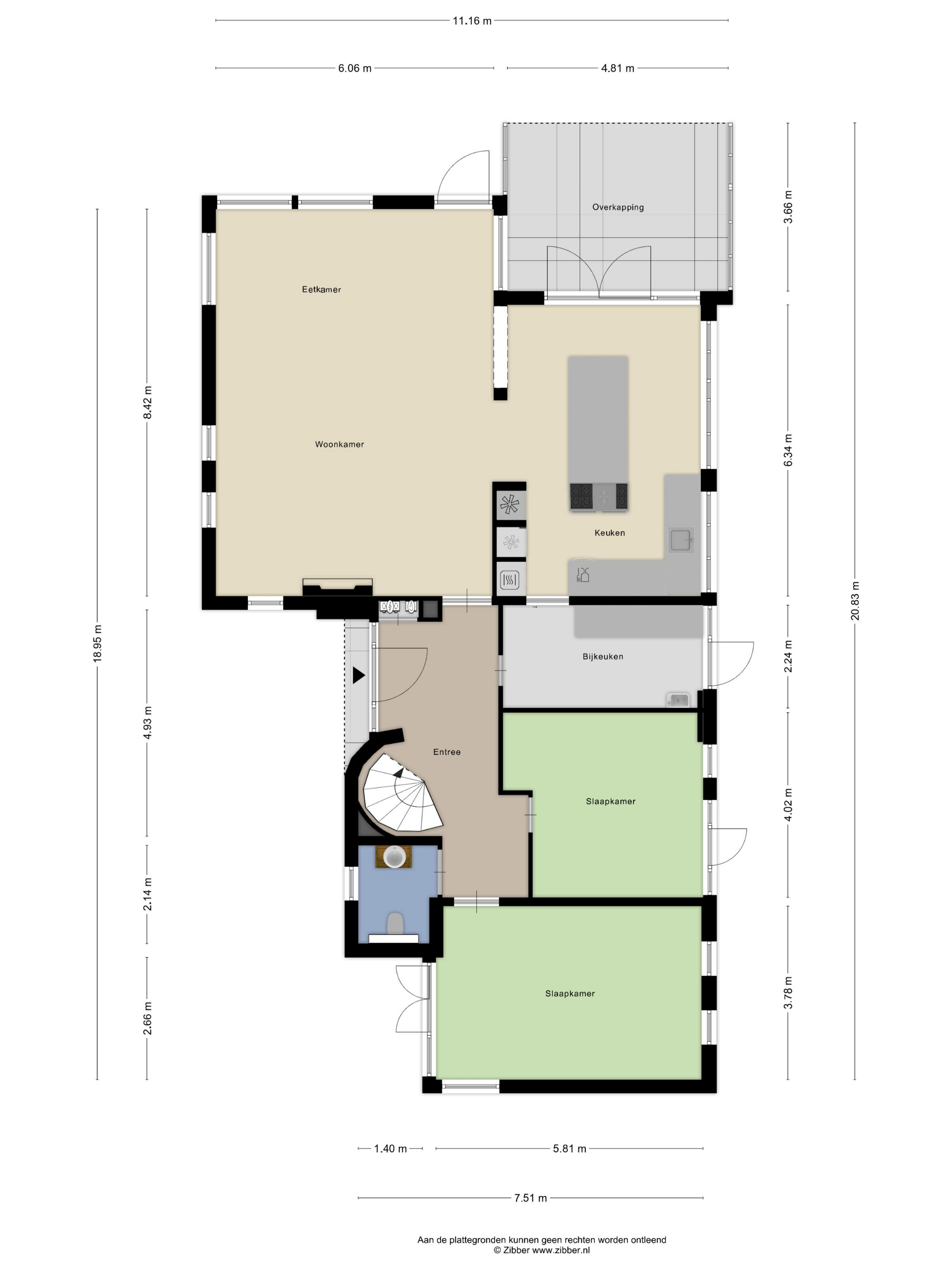
La résidence principale est une villa architecte de 344 m², construite en 1984, qui distille partout une ambiance contemporaine et apaisante. Le vaste séjour baigne de lumière naturelle tout en s’ouvrant sur les prairies ; une cheminée y apporte une douceur chaleureuse pour les soirées. Dans la cuisine, l’îlot rassemble la famille autour de vues verdoyantes. Les portes-fenêtres et la terrasse couverte, chauffée, effacent la frontière entre intérieur et extérieur. Équipements haut de gamme : quooker, piano de cuisson professionnel avec plancha teppanyaki et friteuse, four vapeur, cave à vin, etc. Lingerie et réserves attenantes complètent la fonctionnalité des espaces.

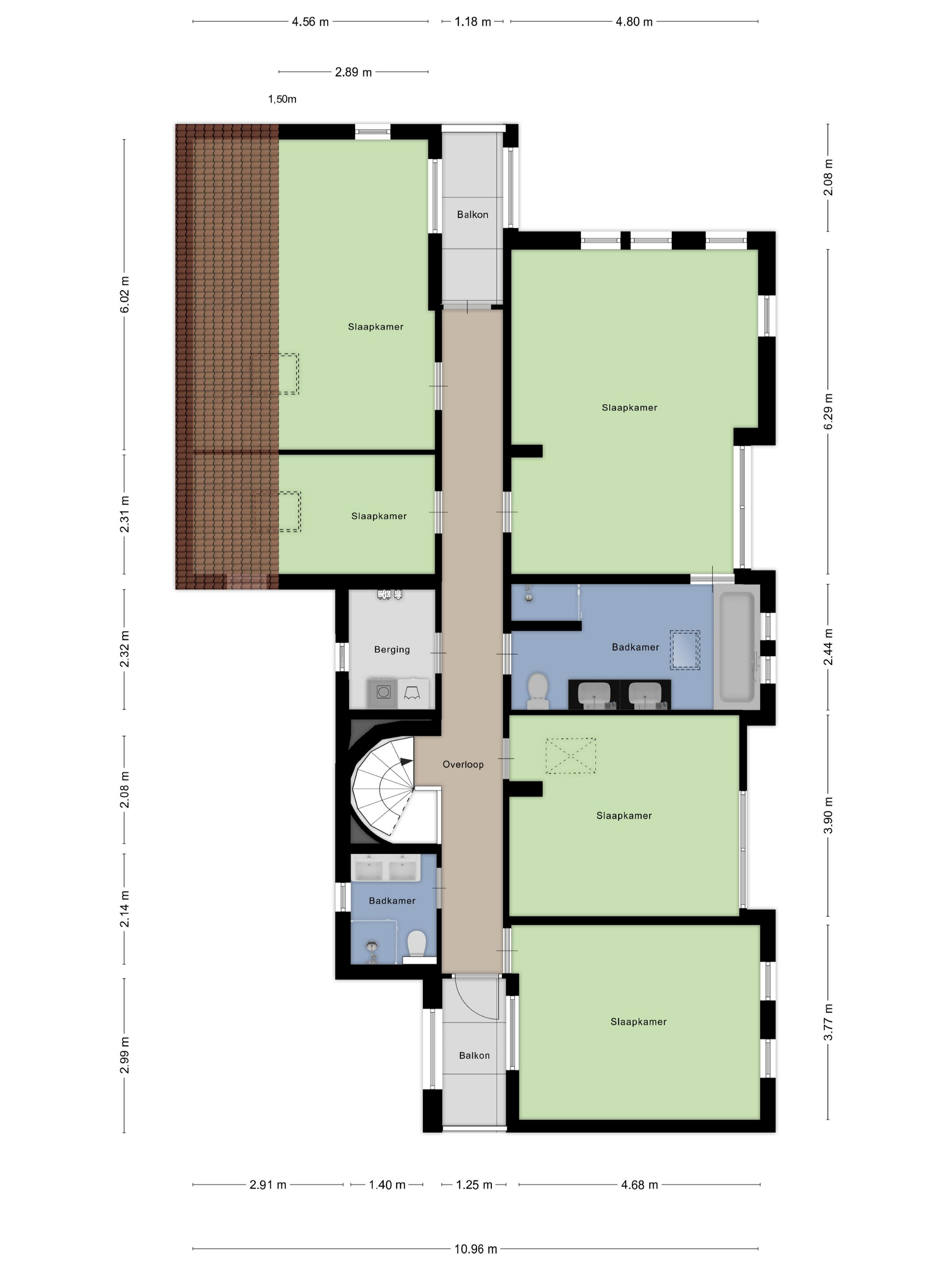
La villa comprend quatre chambres, cinq pièces à l’étage dont une buanderie séparée, et deux salles de bains, dont une privative pour la suite parentale avec double vasque et douche à l’italienne. Les combles offrent un beau potentiel d’évolution. La dimension durable est omniprésente : pompe à chaleur, chauffage au sol partiel, panneaux solaires, pour une classe énergétique A. Autres prestations : ventilation mécanique et naturelle, système d’alarme, aménagements bien-être étudiés.

Un carport en bois abrite plusieurs véhicules et s’étend sur un atelier déjà préparé pour accueillir des équipements bien-être. À l’arrière, le jardin paysager invite tantôt au recueillement, tantôt à la convivialité, avec plusieurs terrasses idéalement orientées pour profiter de la lumière et des vues pastorales. Ici, à seulement quelques minutes du centre vivant de Bergen et du littoral, architecture intemporelle et douceur de la nature se marient dans une proposition d’exception.

Caractéristiques

Panneaux solaires
Système d'alarme
Transfert de propriété
Prix demandé
€ 2.995.000 k.k.
Statut
beschikbaar
Acceptation
in overleg
Construction
Type de maison
Villa
Type de bâtiment
vrijstaande woning
Période de construction
1984
Classe énergétique
A
Chambres
4
Salles de bain
2
Surfaces et volume
Surface habitable
344 m2
Autre espace intérieur
41 m2
Espace extérieur attenant au bâtiment
27 m2
Espace de stockage externe
93 m2
Volume en mètres cubes
1428 m3
Superficie du terrain
2684 m2
Installations
Mechanische ventilatie
Alarminstallatie
Rookkanaal
Dakraam
Zonnepanelen
Natuurlijke ventilatie
Aan rustige weg
Vrij uitzicht
Beschutte ligging
In bosrijke omgeving
Baerz & Co Property Brochure

Brochure

Vidéos

Croon Makelaars

Breelaan 41
1861 GD Bergen

info@croonmakelaars.nl
+31 (0)72 743 32 44

www.croonmakelaars.nl

Demande d'information / de visite

Angeline Croonen profile image
Angeline Croonen
Real Estate Agent