Ons kantoor is lid van Baerz & Co Luxury Homes; een internationaal platform dat exclusieve woningmakelaars met elkaar verbindt. Neem contact op met ons secretariaat voor meer informatie over het landelijke aanbod, waarvan u hieronder een selectie kunt bekijken.

DELFT
Oosteinde 191 - 2611 VD
Les Pays-Bas

Jan Paul van Daal profile image
Jan Paul van Daal
Real estate agent
€1,250,000 k.k.
Surface habitable
237m2
Superficie du terrain
113m2
Chambres
7

Description

Cette maison de canal à Delft occupe un angle remarquable le long d’une voie d’eau emblématique et propose sept chambres réparties sur 237 m² de surface habitable raffinée. Son emplacement offre un accès dynamique au centre-ville, tandis que son architecture préserve le caractère historique tout en accueillant le rythme de vie contemporain. Rénovée avec soin, la demeure bénéficie d’une cuisine contemporaine, de sanitaires de luxe et de panneaux solaires installés sur un toit récemment restauré—bâti en 1898 et aujourd’hui entretenu selon des normes exceptionnelles.

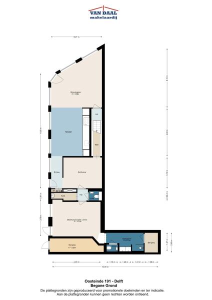
Dès l’entrée, de hautes façades vitrées et un plafond culminant à 3,55 mètres distinguent la cuisine de vie principale. Les moulures en stuc et les vitraux d’origine témoignent du prestige architectural. La cuisine, équipée d’appareils encastrés haut de gamme, s’articule autour d’espaces conviviaux dédiés à la gastronomie et à la réception, encadrés par deux grands salons. Un studio intégré, doté d’une entrée indépendante et d’une salle d’eau avec chauffage au sol, s’adapte aisément à un espace invité ou professionnel. Le rez-de-chaussée comprend de vastes rangements et un accès direct à Broerhuisstraat.

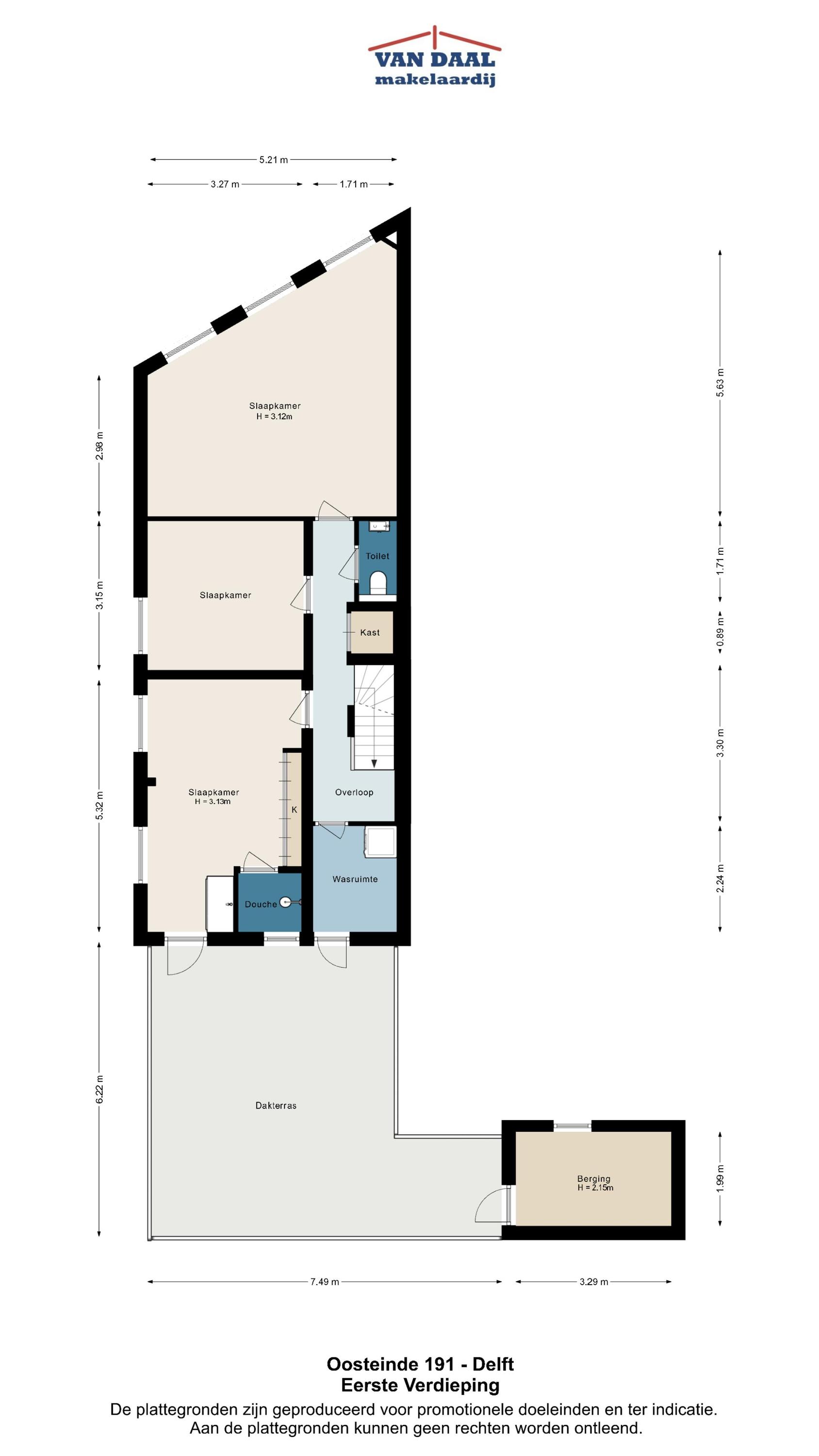
À l’étage, trois grandes chambres reflètent l’élégance d’époque, avec vues sur le canal et vitraux. Une buanderie mène à un jardin de toit intime, rare havre de verdure propice au soleil et à l’intimité. Le second étage offre trois chambres supplémentaires—dont une avec poutres apparentes—ainsi qu’une salle de bains luxueuse avec baignoire, douche à l’italienne et détails de designer.

Implantée sur 113 m² de terrain en pleine propriété, avec installation électrique renouvelée et double vitrage partiel, la maison s’inscrit dans le paysage protégé de Delft. À la croisée du raffinement familial et du dynamisme urbain, cette élégante maison de canal à vendre à Delft se situe à deux pas des cafés, restaurants et de la place historique Beestenmarkt.

Découvrez Delft avec Baerz, votre conseiller et chasseur immobilier personnel de confiance

Se repérer sur ce marché exclusif requiert discrétion et expertise. Les conseillers expérimentés donnent accès à des biens confidentiels, mènent des négociations avisées et maîtrisent parfaitement le contexte culturel et réglementaire local. Leur accompagnement est essentiel pour accéder à un inventaire rare et sécuriser chaque étape.

Évitez les pièges courants

Les acheteurs internationaux perdent souvent un temps précieux à naviguer entre des annonces en ligne dupliquées, obsolètes ou trompeuses, d’autant que près de 30% des propriétés de luxe ne sont jamais mises sur le marché.
Les agents du vendeur représentent les intérêts du vendeur, pas les vôtres, et une simple demande d’information peut entraîner votre inscription comme “client” auprès d’une agence sans votre consentement.
Avec Baerz Property Finders & Advisors, vous évitez totalement ces écueils.
Nous agissons exclusivement en votre nom, en vous offrant une représentation indépendante, des conseils transparents et un accès à toutes les propriétés disponibles, y compris les opportunités privées et off-market que les autres ne voient jamais.

Curieux de savoir comment obtenir votre propre Conseiller Immobilier Personnel ? Contactez-nous pour découvrir comment nous pouvons défendre vos intérêts et vous ouvrir l’accès à l’ensemble du marché.

Caractéristiques

Transfert de propriété
Prix demandé
€ 1.250.000 k.k.
Statut
beschikbaar
Acceptation
in overleg
Construction
Type de maison
Herenhuis
Type de bâtiment
hoekwoning
Période de construction
1898
Classe énergétique
B
Type de toit
zadeldak
Chambres
7
Salles de bains
3
Surfaces et volumes
Surface habitable
237 m2
Autre espace intérieur
0 m2
Espace extérieur attenant au bâtiment
38 m2
Espace de stockage externe
14 m2
Volume en mètres cubes
972 m3
Superficie du terrain
113 m2
Équipements
Aan rustige weg
In centrum
Open ligging
Baerz & Co Property Brochure

Brochure

Vidéos

Van Daal Makelaardij

Voldersgracht 33
2611 ED Delft

janpaul@vandaalmakelaardij.nl
+31 (0)15 - 212 73 00

www.vandaalmakelaardij.nl

Demande d'information / de visite

Jan Paul van Daal profile image
Jan Paul van Daal
Real estate agent