Ons kantoor is lid van Baerz & Co Luxury Homes; een internationaal platform dat exclusieve woningmakelaars met elkaar verbindt. Neem contact op met ons secretariaat voor meer informatie over het landelijke aanbod, waarvan u hieronder een selectie kunt bekijken.

MALDEN
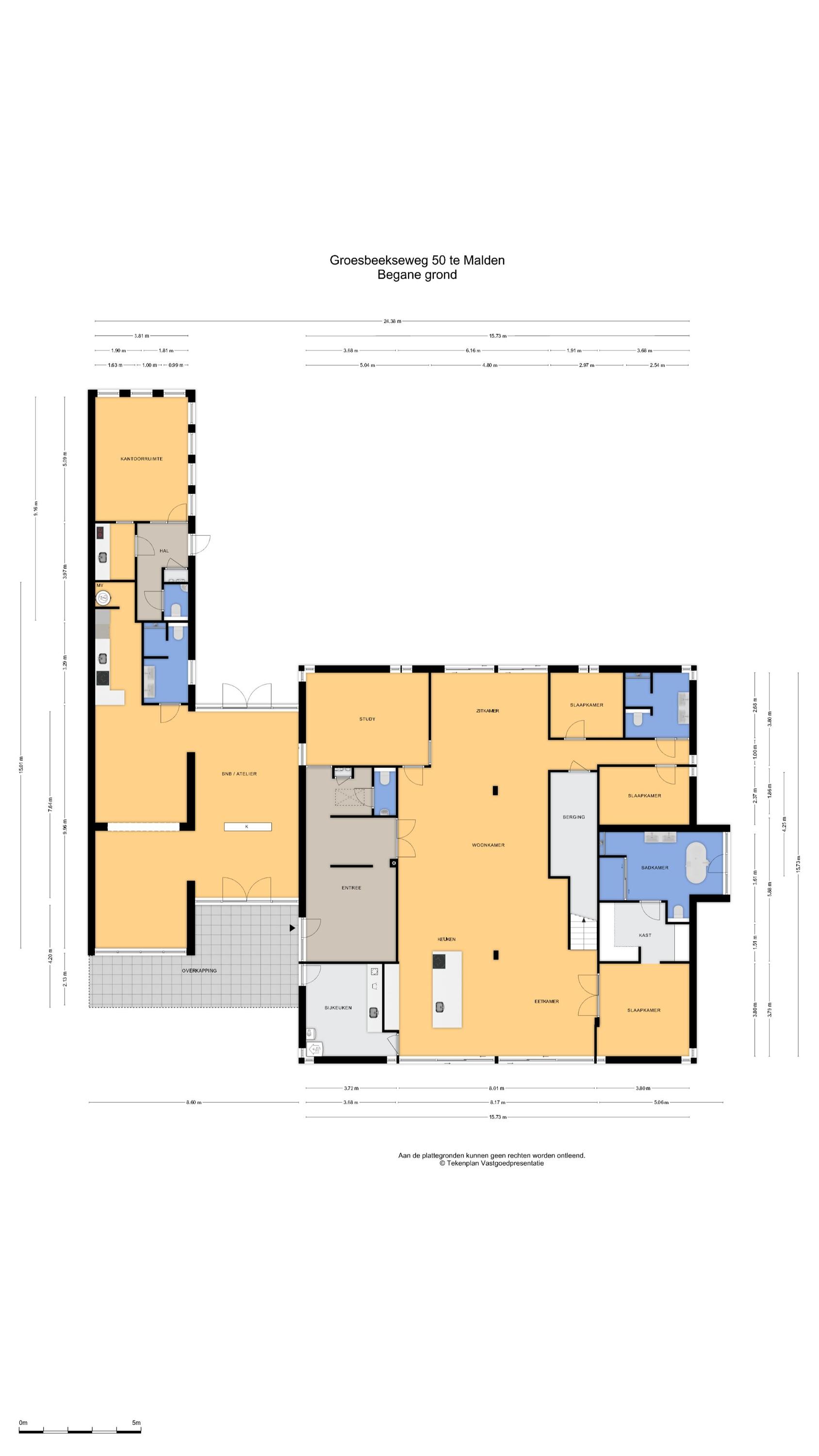
Groesbeekseweg 50 - 6581 KS
Pays-Bas

Freek van Camp profile image
Freek van Camp
Real Estate Agent
€1,295,000 k.k.
Surface habitable
381m2
Superficie du terrain
1500m2
Chambres
3

Description

Le semi-bungalow Malden se distingue comme une rencontre rare entre transformation architecturale et sérénité, sublimée par sa rénovation en 2021 en une résidence classée énergie A+. Paisiblement situé en lisière de forêt, ce semi-bungalow Malden offre intimité et vues verdoyantes, tout en restant à quelques minutes des commodités, boutiques, restaurants et services de santé. Les institutions culturelles de Nimègue et les principaux axes de transport sont aisément accessibles, conjuguant retrait et connexion.

Sur 381 m² de surface habitable, la maison se déploie de plain-pied et invite à un art de vivre paisible sur un terrain paysagé de 1 500 m². De larges baies vitrées baignent le salon à plafond haut de lumière naturelle, tandis que des portes coulissantes s’ouvrent harmonieusement sur les jardins en terrasse. Trois chambres, dont une suite parentale avec dressing et salle de bain façon spa—dotée d’une baignoire îlot, d’un sauna combiné et d’une vue sur le jardin—garantissent confort et discrétion. Un studio indépendant comprenant entrée séparée, cuisine, salle de bain, ainsi qu’un espace polyvalent bureau ou hobby, renforcent autonomie et flexibilité.

Une cuisine raffinée dotée d’un îlot central et de rangements intégrés structure la pièce de vie, complétée par une buanderie et un cellier. Les équipements techniques incluent une pompe à chaleur pour le chauffage et le rafraîchissement, 25 panneaux solaires, une ventilation double flux avec récupération de chaleur et un chauffage au sol sur l’ensemble du rez-de-chaussée. Les améliorations structurelles – toiture, isolation, menuiseries – portent le niveau du confort à celui des normes européennes.

À l’extérieur, un étang de baignade réalisé en 2023 donne le ton du jardin, tandis que terrasses ensoleillées, ombragées et vaste stationnement invitent à la convivialité en toute quiétude. Le semi-bungalow Malden offre une opportunité rare de vivre généreusement, efficacement et en harmonie avec la nature, incarnant le luxe discret dans l’un des environnements les plus prisés de la région.

Explorez Malden avec Baerz, votre conseiller et chercheur de biens immobiliers de confiance

Sécuriser une propriété d’exception à Malden exige maîtrise, réseau et savoir-faire en négociation. Des conseillers experts relient discrètement à des biens d’exception, coordonnent des transactions complexes et protègent les intérêts de chaque client tout au long du processus – pour une expérience fluide et sereine sur un marché très recherché.

Évitez les pièges courants

Les acheteurs internationaux perdent souvent un temps précieux sur des annonces en double, obsolètes ou trompeuses en ligne, d'autant plus que près de 30% des maisons de luxe n'apparaissent jamais sur le marché public. Les agents du vendeur représentent les intérêts du vendeur, pas ceux de l'acheteur. Même demander des informations sur une propriété peut entraîner l'enregistrement par un agent du vendeur comme leur « client » sans votre consentement.
Avec Baerz Property Finders & Advisors, vous évitez entièrement tous ces pièges. Nous travaillons uniquement en votre nom, offrant une représentation indépendante, des conseils clairs et un accès à toutes les propriétés disponibles, y compris les opportunités hors marché que d'autres ne voient jamais.

Intéressé par un conseiller personnel en immobilier ?

Nous vous montrons toutes les maisons disponibles en un seul endroit. N'hésitez pas à nous contacter pour savoir comment nous pouvons répondre à vos besoins et protéger vos intérêts exclusivement.

Caractéristiques

Panneaux solaires
Transfert de propriété
Prix demandé
€ 1.295.000 k.k.
Statut
beschikbaar
Acceptation
in overleg
Construction
Type de maison
Bungalow
Type de bâtiment
vrijstaande woning
Période de construction
1991
Classe énergétique
A+
Type de toit
samengesteld dak
Chambres
3
Salles de bain
3
Surfaces et volume
Surface habitable
381 m2
Autre espace intérieur
22 m2
Espace de stockage externe
6 m2
Volume en mètres cubes
1719 m3
Superficie du terrain
1500 m2
Installations
Mechanische ventilatie
Tv kabel
Schuifpui
Sauna
Zonnepanelen
Balansventilatie
Aan bosrand
Vrij uitzicht
In bosrijke omgeving
Baerz & Co Property Brochure

Brochure

Vidéos

Plans

Verbeek Makelaars

Mariaplein 6
6522 AV Nijmegen

f.van.camp@verbeek-makelaars.nl
+31 24 22 00 111

www.verbeek-makelaars.nl

Demande d'information / de visite

Freek van Camp profile image
Freek van Camp
Real Estate Agent