Ons kantoor is lid van Baerz & Co Luxury Homes; een internationaal platform dat exclusieve woningmakelaars met elkaar verbindt. Neem contact op met ons secretariaat voor meer informatie over het landelijke aanbod, waarvan u hieronder een selectie kunt bekijken.

VOORHOUT
Jacoba Van Beierenweg 136 a - 2215 KX
Pays-Bas

Rick Broekhof profile image
Rick Broekhof
Real estate agent
€1,175,000 k.k.
Surface habitable
422m2
Superficie du terrain
726m2
Chambres
5

Description

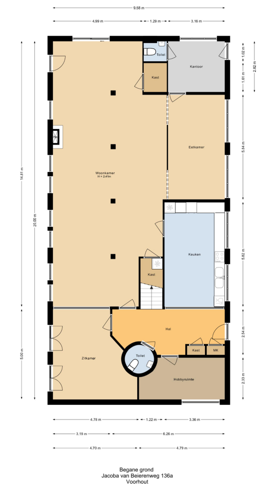
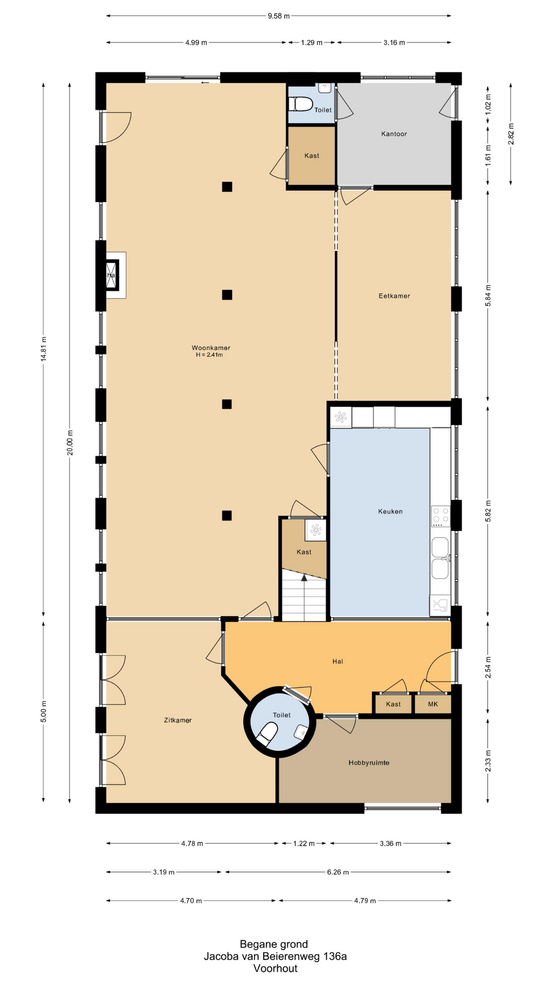
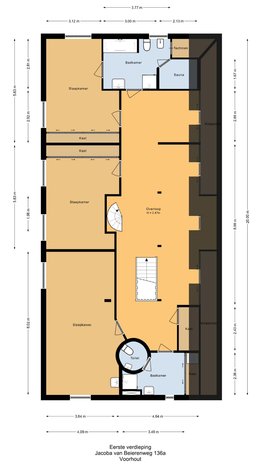
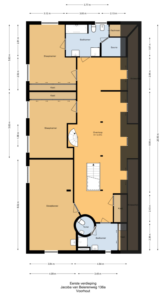
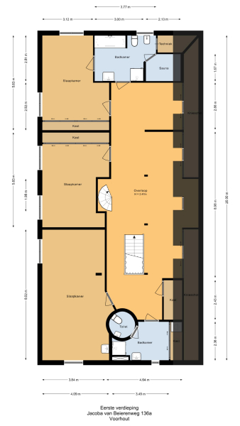
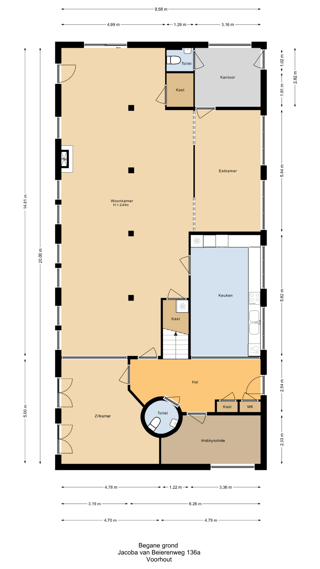
La Villa Voorhout incarne une intimité raffinée à travers 422 m² d’espace de vie, encadrés de vues dégagées et du cadre naturel de la région de Bollenstreek. Le vaste hall d’entrée accueille la lumière douce des grandes fenêtres, illuminant chaque ligne et chaque surface. Les salons spacieux, une cheminée et une salle à manger séparée instaurent un rythme subtil d’élégance et d’hospitalité, tandis que le parquet et les authentiques tomettes de monastère enracinent les intérieurs dans une atmosphère paisible. Cinq chambres réparties sur trois niveaux offrent souplesse et luminosité — certaines profitent de vues sur le jardin et d’une climatisation. Deux salles de bains parfaitement agencées, dont l’une avec sauna, côtoient des prestations étudiées : quatre toilettes, de nombreux rangements et une connexion haut débit par fibre optique. La cuisine s’ouvre à la fois sur la cour et les prairies, reliant les rituels quotidiens à l’extérieur. Les entrées indépendantes permettent une double occupation ou une intégration fluide du travail à domicile. Sur 726 m², la propriété bénéficie de jardins paysagers, d’un barbecue en brique et de nombreux coins privés. Une longue allée et un parking privatif assurent discrétion et commodité à l’arrivée. La construction de la villa autorise toutes les adaptations, idéale pour la vie familiale ou l’exercice d’une activité professionnelle à domicile. Chauffage modernisé, climatisation dès avril 2024 et préparation pour panneaux solaires soulignent un engagement envers le confort et l’avenir. Depuis cette villa, les commodités et la gare de Voorhout sont aisément accessibles à vélo, offrant une connexion urbaine sans rien ôter à la tranquillité. Cette villa à Voorhout propose un équilibre rare entre intimité, espace et accessibilité, conçue pour ceux qui recherchent une vie paisible et significative.

Explorez Voorhout avec Baerz, votre conseiller et chercheur de biens immobiliers de confiance

La réussite d’une opération d’achat ou de vente de prestige à Voorhout repose sur la connaissance fine du marché, la force du relationnel et des négociations expertes. Les conseillers privés facilitent l’accès à des biens exclusifs et accompagnent leurs clients dans les démarches administratives complexes, tout en représentant leurs intérêts en toute discrétion. Leur expertise, entre patrimoine et modernité, assure des transactions sur-mesure, avantageuses et alignées avec les ambitions de chacun.

Évitez les pièges courants

Les acheteurs internationaux perdent souvent un temps précieux sur des annonces en double, obsolètes ou trompeuses en ligne, d'autant plus que près de 30% des maisons de luxe n'apparaissent jamais sur le marché public. Les agents du vendeur représentent les intérêts du vendeur, pas ceux de l'acheteur. Même demander des informations sur une propriété peut entraîner l'enregistrement par un agent du vendeur comme leur « client » sans votre consentement.
Avec Baerz Property Finders & Advisors, vous évitez entièrement tous ces pièges. Nous travaillons uniquement en votre nom, offrant une représentation indépendante, des conseils clairs et un accès à toutes les propriétés disponibles, y compris les opportunités hors marché que d'autres ne voient jamais.

Intéressé par un conseiller personnel en immobilier ?

Nous vous montrons toutes les maisons disponibles en un seul endroit. N'hésitez pas à nous contacter pour savoir comment nous pouvons répondre à vos besoins et protéger vos intérêts exclusivement.

Caractéristiques

Climatisation
Transfert de propriété
Prix demandé
€ 1.175.000 k.k.
Statut
beschikbaar
Acceptation
in overleg
Construction
Type de maison
Villa
Type de bâtiment
vrijstaande woning
Période de construction
1975
Classe énergétique
C
Type de toit
zadeldak
Chambres
5
Salles de bain
2
Surfaces et volume
Surface habitable
422 m2
Autre espace intérieur
0 m2
Espace de stockage externe
7 m2
Volume en mètres cubes
1387 m3
Superficie du terrain
726 m2
Installations
Mechanische ventilatie
Tv kabel
Airconditioning
Rookkanaal
Sauna
Glasvezel kabel
Natuurlijke ventilatie
Vrij uitzicht
Beschutte ligging
Landelijk gelegen
Baerz & Co Property Brochure

Brochure

Vidéos

Plans

Wilbrink & v.d. Vlugt Makelaars

Heereweg 231
2161 BG Lisse

info@wilbrinkvandervlugt.nl
+31 252 41 90 49

www.onsaanbod.nl

Demande d'information / de visite

Rick Broekhof profile image
Rick Broekhof
Real estate agent