Baerz & Co is een landelijk samenwerkingsverband van zorgvuldig geselecteerde boutique luxury makelaars. Samen vormen wij één netwerk, met één gedeeld aanbod. De woningen die u op onze website ziet, zijn afkomstig van alle aangesloten kantoren binnen Baerz & Co. Daardoor is niet ieder object rechtstreeks door ons kantoor in verkoop, maar door een gespecialiseerde collega binnen ons netwerk. Heeft u een woning gevonden die u aanspreekt en wilt u meer informatie? Dan brengen wij u graag persoonlijk in contact met de betreffende verkoopmakelaar, zodat u direct en zorgvuldig wordt begeleid.

'S-HERTOGENBOSCH
Prins Bernhardstraat 5 - 5211 HE
Nederland

Eric Tiebosch profile image
Eric Tiebosch
Owner / Real Estate Agent
€1.100.000 k.k.
Woonoppervlakte
183m2
Perceeloppervlakte
122m2
Slaapkamers
5

Omschrijving

Uitzonderlijk breed, en daardoor licht, jaren 30 herenhuis met tuin in het Museumkwartier.

Dit herenhuis ligt tussen de Bossche Markt en de polder. Maar ook tegenover de Toonzaal Willem Twee en het Designmuseum. Een perfecte plek dus voor iemand die zowel van cultuur als natuur wil genieten.

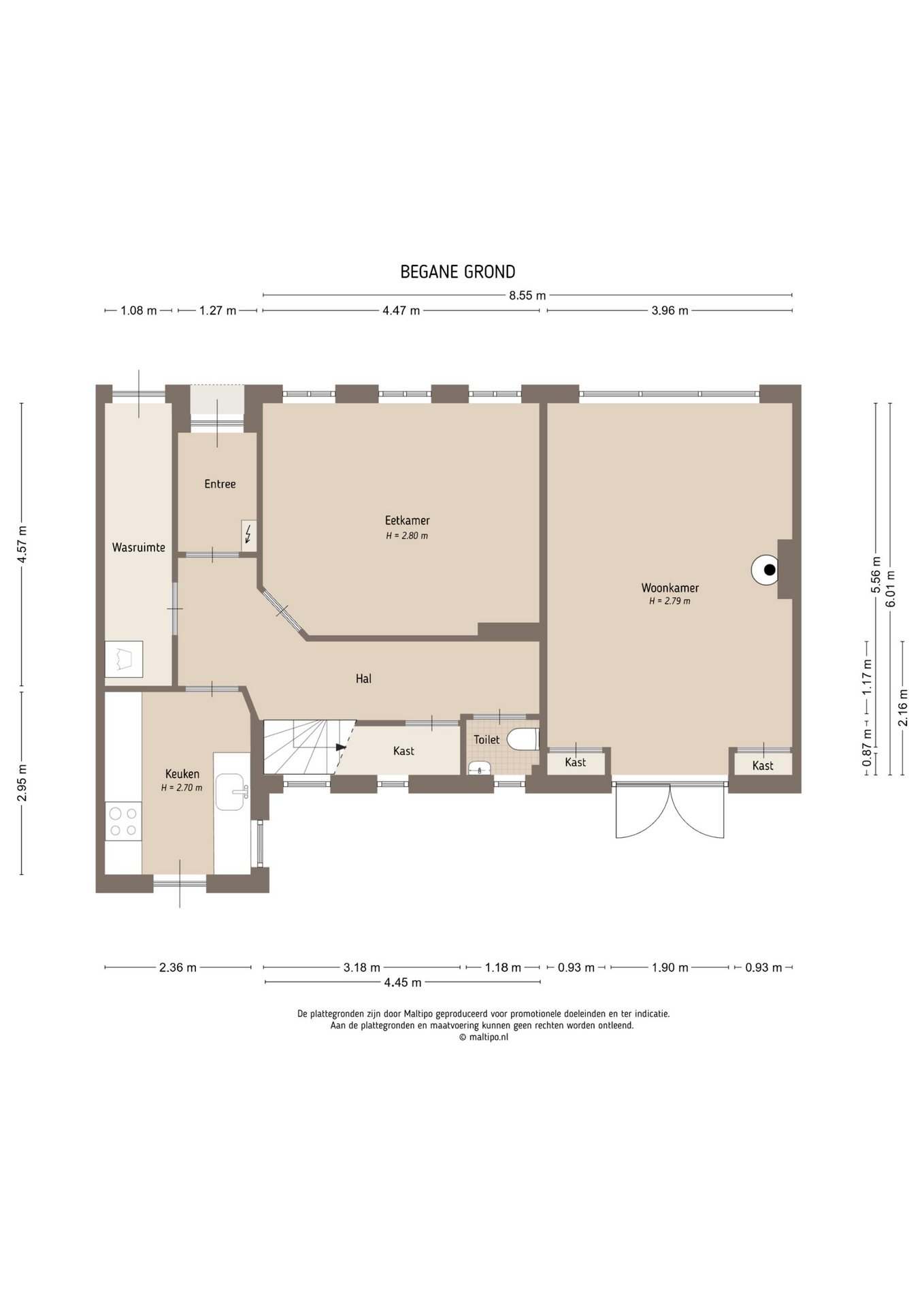
In het huis vind je op de begane grond en naast elkaar: een aparte keuken, eetkamer, woonkamer en fietsenberging. In de ca. 11 meter breedte van de voorgevel past dit allemaal.
Ook op de eerste verdieping liggen alle drie de slaapkamers naast elkaar aan de voorgevel en de badkamer met dakterras en het separate toilet achterin.
De tweede verdieping biedt nog eens twee grote slaapkamers en de tweede badkamer.
Er is een achtertuin met middag- en avondzon.

De woning heeft een energielabel B dankzij de cv-ketel uit 2024, HR++ voorzetramen en 6 zonnepanelen uit 2025.

Een heel sfeervolle én duurzame binnenstadswoning dus, geschikt voor een groot gezin.

Kenmerken

Zonnepanelen
Overdracht
Vraagprijs
€ 1.100.000 k.k.
Status
beschikbaar
Aanvaarding
in overleg
Bouw
Soort woonhuis
Herenhuis
Soort bouw
tussenwoning
Bouwjaar
1937
Energieklasse
B
Soort dak
dwarskap
Slaapkamers
5
Badkamers
2
Oppervlakten en inhoud
Woonoppervlakte
183 m2
Overige inpandige ruimte
1 m2
Gebouwgebonden buitenruimte
6 m2
Inhoud
683 m3
Perceeloppervlakte
122 m2
faciliteiten
Mechanische ventilatie
Dakraam
Zonnepanelen
In centrum
Baerz & Co Property Brochure

Brochure

Plattegronden

De Huyzerij Makelaardij

Kruisstraat 2
5211 DV 's-Hertogenbosch

info@dehuyzerij.nl
+31 736122225

www.dehuyzerij.nl

Informatie / bezichtigingsaanvraag

Eric Tiebosch profile image
Eric Tiebosch
Owner / Real Estate Agent