Baerz & Co is een landelijk samenwerkingsverband van zorgvuldig geselecteerde boutique luxury makelaars. Samen vormen wij één netwerk, met één gedeeld aanbod. De woningen die u op onze website ziet, zijn afkomstig van alle aangesloten kantoren binnen Baerz & Co. Daardoor is niet ieder object rechtstreeks door ons kantoor in verkoop, maar door een gespecialiseerde collega binnen ons netwerk. Heeft u een woning gevonden die u aanspreekt en wilt u meer informatie? Dan brengen wij u graag persoonlijk in contact met de betreffende verkoopmakelaar, zodat u direct en zorgvuldig wordt begeleid.

'S-HERTOGENBOSCH
Van Straelenlaan 16 - 5224 GP
Nederland

Eric Tiebosch profile image
Eric Tiebosch
Owner / Real Estate Agent
€715.000 k.k.
Woonoppervlakte
121m2
Perceeloppervlakte
635m2
Slaapkamers
3

Omschrijving

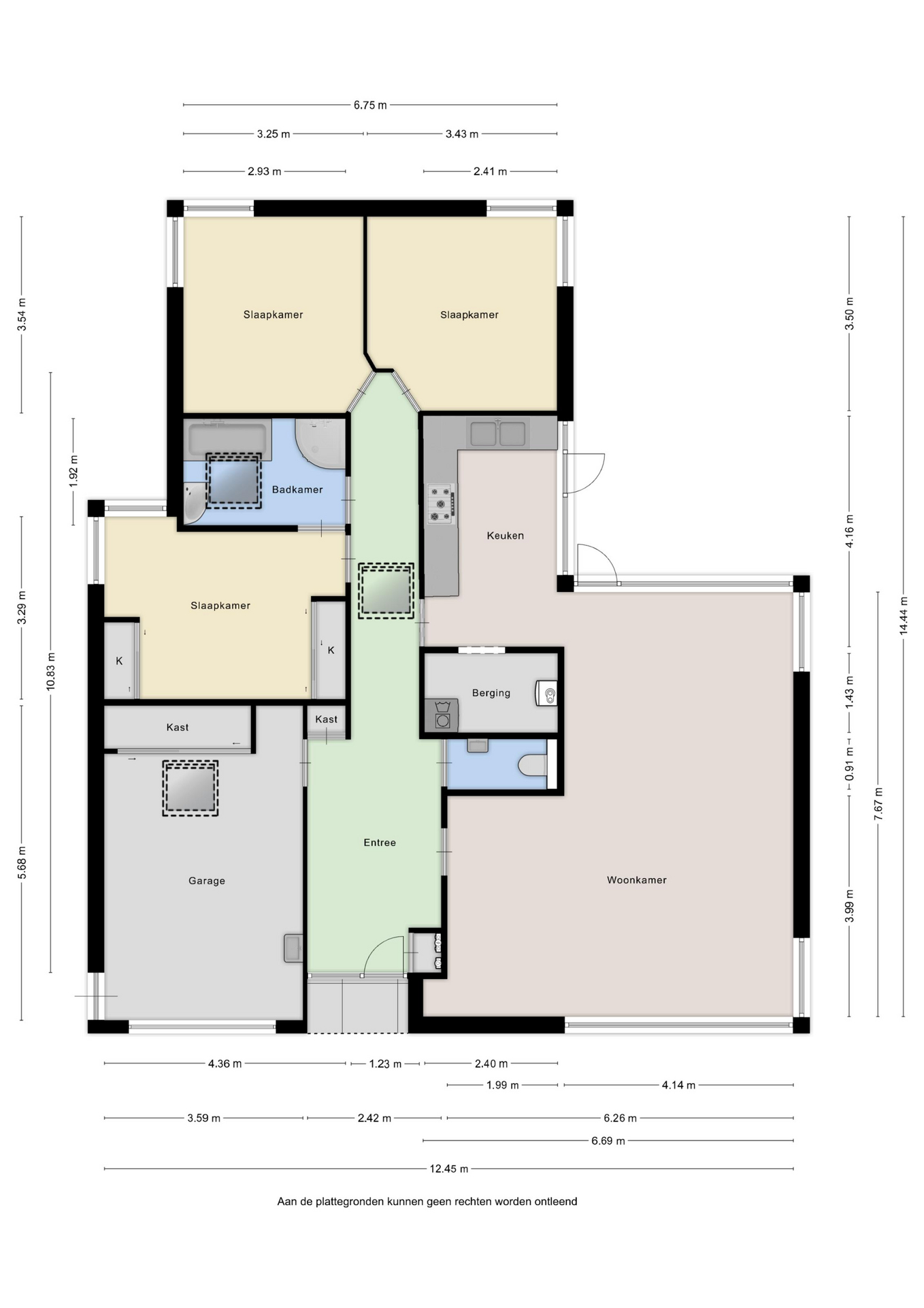
2026 zit vol kansen. Dat geldt zeker voor de koper van deze bungalow met drie slaapkamers en een inpandige garage.

De woning ligt op een groot hoekperceel van 635 m². Ideaal wanneer je nog mooie plannen hebt met dit pand. De woonkamer en keuken liggen gunstig ten opzichte van de zon en bij de slaapkamers kun je kiezen voor de schaduwkant of juist de ochtendzon. Ook uitbouwen, verduurzamen, een carport achter op het perceel of zelfs een zwembad behoren hier tot de mogelijkheden. Wordt dit jaar voor jullie het jaar waarin je je dromen werkelijkheid maakt?

Vraag hier op Funda de brochure aan of plan een bezichtiging, of bel voor meer informatie naar (073) 612 22 25.

Kenmerken

Overdracht
Vraagprijs
€ 715.000 k.k.
Status
beschikbaar
Aanvaarding
in overleg
Bouw
Soort woonhuis
Bungalow
Soort bouw
vrijstaande woning
Bouwjaar
1969
Energieklasse
E
Soort dak
plat dak
Slaapkamers
3
Badkamers
1
Oppervlakten en inhoud
Woonoppervlakte
121 m2
Overige inpandige ruimte
20 m2
Gebouwgebonden buitenruimte
2 m2
Inhoud
517 m3
Perceeloppervlakte
635 m2
faciliteiten
Aan rustige weg
In woonwijk
Baerz & Co Property Brochure

Brochure

Plattegronden

De Huyzerij Makelaardij

Kruisstraat 2
5211 DV 's-Hertogenbosch

info@dehuyzerij.nl
+31 736122225

www.dehuyzerij.nl

Informatie / bezichtigingsaanvraag

Eric Tiebosch profile image
Eric Tiebosch
Owner / Real Estate Agent