Baerz & Co is een landelijk samenwerkingsverband van zorgvuldig geselecteerde boutique luxury makelaars. Samen vormen wij één netwerk, met één gedeeld aanbod. De woningen die u op onze website ziet, zijn afkomstig van alle aangesloten kantoren binnen Baerz & Co. Daardoor is niet ieder object rechtstreeks door ons kantoor in verkoop, maar door een gespecialiseerde collega binnen ons netwerk. Heeft u een woning gevonden die u aanspreekt en wilt u meer informatie? Dan brengen wij u graag persoonlijk in contact met de betreffende verkoopmakelaar, zodat u direct en zorgvuldig wordt begeleid.

ALMEN
Lage Lochemseweg 31 a - 7218 PA
Nederland

Jenne de Haan profile image
Jenne de Haan
Real Estate Agent
€2.445.000 v.o.n.
Woonoppervlakte
438m2
Perceeloppervlakte
70635m2
Slaapkamers
3

Omschrijving

Fabelachtig mooi, NSW-landgoed Besselink aan de Berkel

Goede wijn behoeft geen krans, zo luidt de uitdrukking. En, eerlijk is eerlijk; het is ook haast geen doen om Erve Besselink dusdanig te beschrijven dat de schoonheid en klasse van deze gigant zich laten vatten. Alleen de locatie al, aan de Berkel, bij de stuw, met een eigen vistrap rondom het huis, is één en al romantiek.
Deze prachtige boerderij, met een woonoppervlakte van 438 m² en een inhoud van ruim 2.500 m³, vormt met de omliggende landerijen van circa 7,5 ha een ronduit imposant ensemble. Er is veel afwisseling in het beeld; een eikenbos, een beukenbos, grasland, bloemenweide, een vistrap, een droom van een siertuin… En, het gerucht gaat zelfs dat er een amoureus beverkoppeltje een liefdesnest aan het water hebben gebouwd. Romantiek ten top! In het hart ligt de fraaie hoeve, met het uitzicht op de Berkel.

In 1382 – ja heus, zo lang geleden al - werd er in de registers gerept over ‘Erve Besselink’ hier bij Almen. Zó lang wordt er hier al gewoond en de historie van deze plek gaat dus nog veel verder terug. In 1800 werd deze reus van een T-boerderij gebouwd; het grote hoofdhuis met de deel waar de koeien stonden, de jongveeschuur of schöppe, waar later de prachtige theetuin werd gehuisvest, en de stoltenberg, de hooiberg met schuur.
Na een lang leven – eeuwenlang – werd in 2011 deze fraaie hoeve omgebouwd tot een hoogwaardig afgewerkt en optimaal verduurzaamd woonhuis. Omdat de agrarische bestemming eraf ging, werd ook landschappelijk de omgeving anders ingevuld. Zo besloot men destijds om de historische gracht in ere te herstellen en weer rondom het huis te leiden.

De boerderij zelf onderging een ware transformatie en hoewel ze vanbuiten nog steeds vertelt over de nostalgie van de vroege 19e eeuw - met de luiken, de raampartijen met roedeverdelingen en de gevelindeling, is ze vanbinnen van top tot teen gemoderniseerd, en stapt u een uiterst luxueus en schitterend vormgegeven woonhuis binnen.

Wilt u werken vanuit huis en heeft u behoefte aan kantoorruimte? De geheel vernieuwde deel – met een waanzinnig gave leemkachel mét pizzaoven, een spiksplinternieuwe kap en rieten dak – biedt veel ruimte, genoeg om hier met meerdere mensen te werken. Ook is er beneden een prachtige studio ingericht, waardoor slapen en baden op de begane grond ook tot de opties behoort.

Almen
Almen ziet eruit alsof ze door een dichter bedacht is, met kronkelende paden en wegen, een stokoude kerk, een dorpsschooltje, statige bomenlanen en bolle essen, een kerkepad, een winkeltje, een tennisbaan en een snoezig zwembad voor vertier op warme dagen. En dat alles in de liefdevolle omhelzing van de meanderende Berkel. Het gras is hier groener – we weten het zeker - en dat toch op nog geen tien minuten van de bruisende Hanzestad Zutphen. In 15 minuten bent u op de A1, die u vervolgens in 45 minuten in de randstad brengt.

NSW-landgoed
Het huis en de grond zijn gerangschikt onder de Natuurschoonwet van 1928, dat betekent dat het voldoet aan een aantal eisen, zoals dat:
- het minstens 5 hectare groot is;
- het voor minstens 50% uit houtopstanden (bos) of natuurterreinen bestaat.
Een makkie voor Erve Besselink, want daar is het één en al natuur. Maar, er is meer, want waarom zou men nu een NSW-landgoed willen bezitten? In een notendop is het antwoord daarop dat er grote voordelen aan zitten voor de eigenaar: die geniet namelijk fiscale voordelen van het bezit voor wat betreft inkomstenbelasting, vennootschapsbelasting, overdrachtsbelasting, schenk- en erfbelasting en onroerendzaakbelasting.
Erve Besselink is thans niet opengesteld, er valt genoeg te wandelen, te kanoën, te fietsen en paard te rijden rondom het landgoed, indien u ervoor zou kiezen het landgoed voor publiek open te stellen - voor het nut van het algemeen -, dan gelden deze voordelen voor 100%, in plaats van gedeeltelijk.

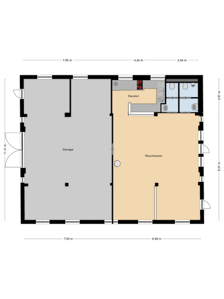
Begane grond
Door de grote houten poort, het erf op. De enorme Bentheimer voederbak die nu slechts nog dienst doet als landschappelijke verfraaiing, staat als een kunstobject voor de boomgaard. De grote deeldeuren bieden een vriendelijk aanzicht. Aan de linkerzijde de hoofdentree. Al het houtwerk zit dik in de lak (natuurlijke houtlakken op basis van lijnzaadolie waardoor het hout ademen kan) en ziet er ronduit fantastisch uit. Ook binnen wordt gauw duidelijk dat er kosten noch moeite gespaard zijn, en dat er uitsluitend de beste materialen gebruikt zijn.

In de hal op de vloer de travertin Vieux de Bourgogne-dallen die ook in de keuken en de gang hun opwachting weer maken. Op de wand een uiterst smaakvol linnenstructuurbehang in een fijne taupekleur, die een fraaie achtergrond biedt voor ieder type interieur. Er is hier gekozen voor modern landelijk en alle elementen werken in volle harmonie samen tot een schitterende compositie. Links de trap naar de verdieping, rechts de WC – uit de kunst met schitterende geglazuurde Portugese tegels en matzwart keramiek sanitair in de vorm van hangcloset en wastafelopstelling- en de toegang tot de studio. Links de ruime kelder.

De living heeft een schitterende vloer; het is een oude kasteelvloer uit het Franse chateau van de vorige eigenaars. De huidige bewoners hebben hem mooi laten opschuren en gecoat met een verfijnde grijze vloerolie, waardoor ze naadloos in het eigentijdse interieur passen. De muziekkamer is een ruimte en-suite, gescheiden van de living middels schuifdeuren, en heeft nu de rol van een ouderwets kunstkabinet, maar dan wél eentje waarvan het binnenklimaat geheel naar wens aan te passen is. Heeft u nu geen Steinway of kunstcollectie om hier tentoon te stellen, dan is dit een heerlijke werkkamer, bibliotheek, bioscoop of eetkamer. Aansluitend links, met zicht op de tuin en het zijterras, de opkamer, die de gashaard deelt met de living. Een heerlijk hoekje om weg te kruipen met een goed boek.

De keuken is een echt uit de kunst: geheel op maat gemaakt en samengesteld door een keukenstudio. De grote keuken is voorzien van zware eikenhouten fronten en granieten werkbladen. Alle inbouwapparatuur is van Gaggenau, wat garant staat voor optimaal design en functie. Er is een apparatenwand met dubbele ijskasten en een stoom- en een heteluchtoven. Aan de andere kant, met uitzicht op het zonnige zijterras een groot werkblad met dubbele spoelbak en een vijf-in-één kokendwaterkraan. Op de kop, in de eigentijdse koof, het fornuis met wokbrander, plancha en vier grote gaspitten.

De studio beschikt over een riante living met een vloer van geolied gerookt eikenhout. In de gang links een handgemaakte inbouwkast in een lieflijke lindegroen, en rechts de bedstee, met schuifdeuren en ruimte voor een grote televisie. Aansluitend de grote badkamer met dubbele wastafel, WC en inloopdouche, en de eerste aanzet tot de deur naar de deel.

De Deel
De deel, waar vroeger de koeien lekker stonden te herkauwen, is omgetoverd tot een supergave ruimte; de spanten en het dikke rietpakket (er zit nog isolatiemateriaal tussen) zijn in het zicht gelaten en de ruimte is lekker licht door de dakramen. De betonvloer – gereed voor het aanbrengen van vloerverwarming –, de schitterende leemkachel en de trap (smederij Oldenhave uit Vorden) geven het een rauw, industrieel randje. Beneden zijn er twee separate WC’s aangelegd. Boven wordt de biljartkamer gerealiseerd.

Deze deel kan alles worden: de superlatief van een mancave, een zitkamer met speelruimte, een grote B&B of bedrijfsruimte voor uw rentmeesterskantoor, architectenbureau, tandartsen- of fysiotherapiepraktijk. We noemen maar een paar dwarsstraten, want u kunt hier nog geheel uw eigen sausje overheen schenken. Het enige wat niet te veranderen is, is het grandioze karakter van deze ruimte: die zit ingebakken in het huis.

Bovenverdieping
Op de bovenverdieping een zonnige overloop met twee schitterende kamers, inloopkast, de WC en de technische ruimte.
De grote slaapkamer is te bereiken middels de badkamer: met de allure van een exclusief resort, is deze voorzien van een dubbele douche met regendouche, een vrijstaand bad met uitzicht op de tuin, en een grote dubbele wastafel.
De walk-in closet heeft gevlamde houten schuifdeuren en de slaapkamer is licht door de grote raampartijen. Door de strakke vormgeving heeft deze ruimte een bijzonder serene sfeer.

Aan de andere kant onder de kap treffen we de tweede slaapkamer, nu in gebruik als werkkamer.

Buitenruimte
Wanneer een bureau als Eelerwoude zich met de groeninrichting bemoeit, dan weet je gewoon zeker dat het goedkomt. En zo geschiedde. De tuinen rondom het huis worden weer omzoomd door de gracht, waar het glasheldere water van de Berkel vrolijk doorheen klatert. Vanuit het huis is het wonen gericht op de Berkel en het dorpje verderop. Aan de rechterzijde heeft u uitzicht op het beukenbos, waar u via het bruggetje naartoe kunt om een wandeling te maken; tussen de bomen ligt een pad.

Aan de overzijde bevinden zich nog een eikenbos, graslanden en een bloemenweide met boomgaard.

De siertuin is schitterend; frisgroene gazons afgebiesd met kleurige borders en tjokvolle bloembedden, rododendrons en een grote notenboom.

Voor de keuken ligt het heerlijke zonneterras, met rozenperk en taxushaag. Perfect voor zonnige lunches en diners, of gewoon lekker de hele dag luieren in de loungeset.

Er is een boomgaard met hoogstamvruchtenbomen, voor uw taarten en jams.

De schöppe was in haar vorige leven een goedbezocht horeca-etablissement. Nu is het een heerlijke plek om tot rust te komen, bij de houtkachel te zitten met vrienden of toch uw levensverhaal aan het papier toe te vertrouwen. Of wellicht om toch weer commerciële activiteiten te ontplooien, want de keuken is er klaar voor. Op het dak liggen de zonnepanelen.

Voor de schuur staat een grote glazen kweekkas in de startblokken voor uw tomaten, citrusvruchten, oppottafel en stekjes. De moestuin, met de kastanjehouten hekjes, biedt meer dan genoeg ruimte om zelfvoorzienend te zijn.

Bij de poort staat de grote stoltenberg, de hooischuur met ruimte voor voertuigen als een trekker en de grasmaaier.

Op de camping
Aan de overzijde van de straat begint de lange oprit naar de stiltecamping. Deze kleinschalige camping trekt jaarlijks liefhebbers van de natuur en/ of van watersport. Op warme dagen komen mensen uit de buurt zwemmen in de Berkel en genieten van de zon op de oevers.
Daarom vroegen we de huidige bewoners hoe hun ervaringen daarmee zijn. Zij antwoordden ons dat, door het karakter van de camping – een stiltecamping -, zij nauwelijks verstoring ervaren door bezoekers. Op warme dagen weerklinken de geluiden van waterpret, maar dat is bepaald niet als ’storend’ te bestempelen. Mede doordat het wonen en leven zo op de Berkel georiënteerd is, is de grote rust – doorspekt met vogelgeluiden en zo nu en dan wat koeiengeloei – de hoofdmoot van de beleving.

Kortom
Geluk kun je niet kopen, maar met NSW-landgoed Erve Besselink komt u een heel eind. Dit fraaie landgoed met de volumineuze, verduurzaamde boerderij, biedt optimaal leefcomfort in een luxueuze design-jas. Bent u benieuwd geworden of dit landgoed iets voor u is? We nemen u graag mee voor een tour, en bespreken met u wat de mogelijkheden zijn en wat het bezitten van een NSW-landgoed voor u kan betekenen.

Algemeen:
Bouwjaar: Oorspronkelijk bouwjaar 1890.
Onderhoud: Uitstekend
Verwarming: CV-installatie, airconditioning, gaskachels & leemkachel.
Ligging: Uitzonderlijk fraai gelegen met uniek uitzicht op de Berkel
Parkeren: Op eigen terrein.

Inhoud: 2.564 m³
Woonoppervlakte: 438 m²
Overig inpandige ruimte: 253 m²
Externe bergruimte: 94 m²
Perceeloppervlakte: 70.635 m²
Energielabel: Energieklasse C
Aanvaarding: In overleg

Prijs op aanvraag

Kenmerken

Zonnepanelen
Air conditioning
Overdracht
Vraagprijs
€ 2.445.000 v.o.n.
Status
beschikbaar
Aanvaarding
in overleg
Bouw
Soort woonhuis
Landgoed
Soort bouw
vrijstaande woning
Bouwjaar
1890
Energieklasse
C
Soort dak
samengesteld dak
Slaapkamers
3
Badkamers
2
Oppervlakten en inhoud
Woonoppervlakte
438 m2
Overige inpandige ruimte
253 m2
Externe bergruimte
94 m2
Inhoud
2564 m3
Perceeloppervlakte
70635 m2
faciliteiten
Buitenzonwering
Airconditioning
Rookkanaal
Dakraam
Zonnepanelen
Aan rustige weg
Vrij uitzicht
Buiten bebouwde kom
Aan vaarwater
Landelijk gelegen
Baerz & Co Property Brochure

Brochure

Video’s

Video Lage Lochemseweg 31 a

360 Panorama’s

360°
360 Panorama - Lage Lochemseweg 31 a
360°
360 Panorama - Lage Lochemseweg 31 a
360°
360 Panorama - Lage Lochemseweg 31 a
360°
360 Panorama - Lage Lochemseweg 31 a
360°
360 Panorama - Lage Lochemseweg 31 a
360°
360 Panorama - Lage Lochemseweg 31 a
360°
360 Panorama - Lage Lochemseweg 31 a
360°
360 Panorama - Lage Lochemseweg 31 a

Plattegronden

de Haan Schippers Makelaars

Larenseweg 53
7241 CM Lochem

dehaan@dehaanschippers.nl
+31 573 25 82 58

www.dehaanschippers.nl

Informatie / bezichtigingsaanvraag

Jenne de Haan profile image
Jenne de Haan
Real Estate Agent

Een luxe woning kopen in Almen

Almen biedt een exclusieve, harmonieuze levensstijl met toegang tot stijlvolle woningen, natuurrijke omgeving en een discrete gemeenschap. Bewoners genieten hoogwaardige voorzieningen, internationale bereikbaarheid en persoonlijk advies – ideaal voor wie privacy en blijvende waarde zoekt.