Ons kantoor is lid van Baerz & Co Luxury Homes; een internationaal platform dat exclusieve woningmakelaars met elkaar verbindt. Neem contact op met ons secretariaat voor meer informatie over het landelijke aanbod, waarvan u hieronder een selectie kunt bekijken.

Bovenwoning te koop in AMSTERDAM

AMSTERDAM Nieuwe Spiegelstraat 26 B - 1017 DG Nederland


Steijn Schothorst profile image
Steijn Schothorst
Real Estate Agent
+316 53436695
info@heerenmakelaars.nl

Heeren Makelaars
Stadionweg 75
1077 SE Amsterdam
NETHERLANDS
+31 0204702255
www.heerenmakelaars.nl
info@heerenmakelaars.nl

Woonoppervlakte
168m2
Perceeloppervlakte
N/A
Slaapkamers
3

Omschrijving

In een iconisch pand met een rijke geschiedenis bieden wij dit instapklare appartement te koop aan! De woning bevindt zich op de derde verdieping, heeft een oppervlakte van ca. 168 m² en biedt een adembenemend panoramisch uitzicht. U beschikt over drie slaapkamers, twee badkamers en een heerlijk zonnig dakterras. Het appartement is bijzonder energiezuinig, het betreft een A+ label. Bovendien is de woning gelegen op eigen grond, dus betreft géén erfpacht!

Ligging & Bereikbaarheid

Gelegen op de hoek van de Keizersgracht en de Nieuwe Spiegelstraat vangt dit appartement de essentie van verfijnd wonen in Amsterdam. Vanuit uw woning geniet u van uitzicht over een van de mooiste stukjes gracht, met het Rijksmuseum op slechts drie minuten lopen. De omgeving biedt een unieke mix van kunst, cultuur en hippe horeca. U wandelt zo langs galeries, boetieks en gezellige cafés, terwijl het Vondelpark dichtbij ligt voor ontspanning in het groen. Dankzij de uitstekende bereikbaarheid en diverse parkeermogelijkheden combineert deze locatie de charme van de grachtengordel met optimaal comfort.

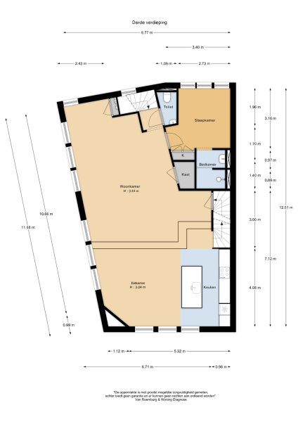
Indeling

Het appartement is volledig gerenoveerd volgens de hoogste standaarden en voorzien van zeldzame, hoogwaardige materialen zoals natuursteen. De praktische indeling omvat een ruime woonkamer met plafonds van 3,44 meter hoog, een moderne open keuken met geïntegreerde apparatuur en een privé-slaapkamer met en-suite badkamer op de benedenverdieping. Grote ramen laten overvloedig daglicht binnenstromen, waardoor het zorgvuldig ontworpen interieur prachtig tot zijn recht komt en de historische omgeving extra wordt benadrukt. Op de bovenverdieping bevinden zich twee royale slaapkamers, waarvan één met toegang tot het balkon, een tweede luxe badkamer en een aparte wasruimte. Een separaat toilet op beide verdiepingen zorgt voor extra gemak. Het zuidwestelijk gelegen terras en balkon bieden een sereen uitzicht op de iconische bezienswaardigheden van de stad en creëren een harmonieuze verbinding tussen binnen- en buitenleven.

Gelegen op eigen grond, combineert dit zeldzame juweel modern comfort, functionaliteit en een verbluffend design. Een werkelijk unieke woning in het hart van Amsterdam.

Bijzonderheden:

- Appartementsrecht van ca. 168 m² (gemeten conform NEN2580 meetinstructie)
- Geheel gerenoveerd met hoogwaardige materialen, inclusief nieuwe ramen en dak
- Airconditioning en vloerverwarming in het gehele appartement
- Drie goed bemeten slaapkamers
- Dakterras van ca. 9 m², prachtig uitzicht op het Rijksmuseum
- Voorzien van video-intercomsysteem
- Projectnotaris Hartman LMH
- Koopovereenkomst: Conform het model Ring Amsterdam en inclusief niet-zelfbewonings- en ouderdomsclausule
- Slaapkamers voorzien van een airco-installatie
- Twee moderne badkamers
- Gelegen op een toplocatie
- Energielabel A+
- Gelegen op eigen grond, dus géén erfpacht
- VvE in oprichting
- Oplevering in overleg, mogelijkheid tot spoedige overdracht
- Projectwebsite: www.spiegelenkeizer.nl
- Het project hebben wij collegiaal in verkoop samen met Max de Makelaer Amsterdam

Deze informatie is door ons met de nodige zorgvuldigheid samengesteld. Onzerzijds wordt echter geen enkele aansprakelijkheid aanvaard voor enige onvolledigheid, onjuistheid of anderszins, dan wel de gevolgen daarvan. Alle opgegeven maten en oppervlakten zijn indicatief. Koper heeft zijn eigen onderzoeksplicht naar alle zaken die voor hem of haar van belang zijn. Met betrekking tot deze woning is de makelaar adviseur van verkoper. Wij adviseren u een deskundige (NVM-)makelaar in te schakelen die u begeleidt bij het aankoopproces. Indien u specifieke wensen heeft omtrent de woning, adviseren wij u deze tijdig kenbaar te maken aan uw aankopend makelaar en hiernaar zelfstandig onderzoek te (laten) doen. Indien u geen deskundige vertegenwoordiger in-schakelt, acht u zich volgens de wet deskundige genoeg om alle zaken die van belang zijn te kun-nen overzien. Van toepassing zijn de NVM voorwaarden.

Kenmerken

Overdracht
Vraagprijs
€ 2.000.000 k.k.
Status
onder bod
Aanvaarding
in overleg
Bouw
Soort woonhuis
Bovenwoning
Soort bouw
appartement
Bouwjaar
1962
Soort dak
plat dak
Slaapkamers
3
Badkamers
2
Oppervlakten en inhoud
Woonoppervlakte
168 m2
Overige inpandige ruimte
0 m2
Gebouwgebonden buitenruimte
9 m2
Inhoud
631 m3
faciliteiten
Mechanische ventilatie
Tv kabel
Airconditioning
Schuifpui
Dakraam
Glasvezel kabel
Natuurlijke ventilatie
Aan water
In centrum
Vrij uitzicht
Aan vaarwater
Baerz & Co Property Brochure

Brochure

Informatie / bezichtigingsaanvraag

Video's

Foto's

Plattegronden