Baerz & Co is een landelijk samenwerkingsverband van zorgvuldig geselecteerde boutique luxury makelaars. Samen vormen wij één netwerk, met één gedeeld aanbod. De woningen die u op onze website ziet, zijn afkomstig van alle aangesloten kantoren binnen Baerz & Co. Daardoor is niet ieder object rechtstreeks door ons kantoor in verkoop, maar door een gespecialiseerde collega binnen ons netwerk. Heeft u een woning gevonden die u aanspreekt en wilt u meer informatie? Dan brengen wij u graag persoonlijk in contact met de betreffende verkoopmakelaar, zodat u direct en zorgvuldig wordt begeleid.

AMSTERDAM
Stadionweg 158 - 1077 TA
Nederland

Igor Veendrick profile image
Igor Veendrick
Real estate agent
€1.175.000 k.k.
Woonoppervlakte
113m2
Perceeloppervlakte
N/A
Slaapkamers
2

Omschrijving

Stadionweg 158, 1077 TB te Amsterdam

Op een prachtige en gewilde locatie in Amsterdam-Zuid presenteren wij dit bijzonder lichte en uitstekend onderhouden benedenhuis van ca. 113 m². De woning beschikt over een royale living, een heerlijk terras aan de achterzijde, twee comfortabele slaapkamers en een separate berging. Gelegen in een representatief appartementencomplex met camerabeveiliging, biedt dit appartement een perfecte combinatie van comfort, veiligheid en een toplocatie.

Ligging:
Het appartement ligt op slechts enkele stappen van de Beethovenstraat, een van de meest geliefde winkelstraten van Amsterdam-Zuid. Hier treft u een breed scala aan hoogwaardige kledingboetieks, delicatessenwinkels, supermarkten en sfeervolle restaurants. Dankzij de centrale ligging zijn tal van voorzieningen binnen handbereik: Station Amsterdam Zuid (WTC), het Beatrixpark, het Vondelpark, het Museumplein en de bruisende Pijp bevinden zich allemaal op loopafstand. Met de auto bereikt u in enkele minuten de A10, waardoor ook Schiphol en andere delen van de Randstad uitstekend bereikbaar zijn.

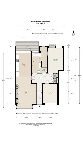
Indeling:
Begane grond:
Eigen voordeur, middels tochtportaal toegang tot de royale hal van het huis. Bijzonder lichte doorzon woonkamer met aan de voorzijde en speelse erker. Aan de achterzijde de open keuken voorzien van alle gemakken (koelkast, vriezer, voetwasser, oven, magnetron) en toegang tot het terras dat direct aan prachtig onderhouden zichttuin is gelegen. Vanuit de hal zijn beide ruime slaapkamers bereikbaar. De masterbedroom is aan de achterzijde gelegen, heeft toegang tot een walk-in closet en een riante badkamer (ook bereikbaar vanaf de hal) met dubbele regendouche, ligbad, dubbele wastafel en toilet. Het gastentoilet is separaat bereikbaar vanaf de hal. Vanaf de hal is er tevens toegang tot de wasmachinekast en naastelegen bergkast. In de onderbouw van het complex beschikt het appartement nog over een ruime berging.

Stadionweg:
De Stadionweg dankt zijn naam aan het stadion dat hier in de buurt stond ten tijde van de naamgeving in 1922, op de plek van de huidige Amazonestraat. Het nabijgelegen stadion op het plein is gebouwd voor de Olympische Spelen van 1928, een historische verwijzing die nog steeds zichtbaar is in de architectuur van de buurt. (Bron: Stadsatlas Amsterdam)

Bijzonderheden:
- Appartementsrecht ca. 113m² (NEN2580 rapport aanwezig)
- Twee slaapkamers
- Voorzien van dubbel glas
- Video intercom
- Appartement is voorzien van fraaie radiatorombouwen
- Blokverwarming
- VVE in oprichting, zal professioneel beheerd gaan worden door Ter Linden en Heijer VVE Beheer
- Eigendom belast met erfpacht (AB2000); canon € 2.204,35 per jaar tot 15-05-2063
- Niet zelfbewoningsclausule van toepassing
- Project notaris Hartman LMH
- Parkeren via vergunningstelsel
- Gemeentelijk monument
- Oplevering in overleg

Deze informatie is door ons met de nodige zorgvuldigheid samengesteld. Onzerzijds wordt echter geen enkele aansprakelijkhei aanvaard voor enige onvolledigheid, onjuistheid of anderszins, dan wel de gevolgen daarvan. Alle opgegeven maten en oppervlakten zijn indicatief. Koper heeft zijn eigen onderzoeksplicht naar alle zaken die voor hem of haar van belang zijn. Met betrekking tot deze woning is de makelaar adviseur van verkoper. Wij adviseren u een deskundige (NVM-)makelaar in te schakelen die u begeleidt bij het aankoopproces. Indien u specifieke wensen heeft omtrent de woning, adviseren wij u deze tijdig kenbaar te maken aan uw aankopend makelaar en hiernaar zelfstandig onderzoek te (laten) doen. Indien u geen deskundige vertegenwoordiger inschakelt, acht u zich volgens de wet deskundige genoeg om alle zaken die van belang zijn te kunnen overzien. Van toepassing zijn de NVM-voorwaarden.

Kenmerken

Overdracht
Vraagprijs
€ 1.175.000 k.k.
Status
beschikbaar
Aanvaarding
in overleg
Bouw
Soort woonhuis
Benedenwoning
Soort bouw
appartement
Bouwjaar
1957
Soort dak
plat dak
Slaapkamers
2
Badkamers
1
Oppervlakten en inhoud
Woonoppervlakte
113 m2
Overige inpandige ruimte
12 m2
Externe bergruimte
7 m2
Inhoud
326 m3
faciliteiten
Mechanische ventilatie
Tv kabel
In woonwijk
Baerz & Co Property Brochure

Brochure

Video’s

Plattegronden

Heeren Makelaars

Stadionweg 75
1077 SE Amsterdam

info@heerenmakelaars.nl
+31 204702255

www.heerenmakelaars.nl

Informatie / bezichtigingsaanvraag

Igor Veendrick profile image
Igor Veendrick
Real estate agent

Een luxe woning kopen in Amsterdam

Amsterdam biedt een kosmopolitische levensstijl, gekenmerkt door erfgoed, verbondenheid en discrete luxe. Bewoners profiteren van een sterke internationale gemeenschap, hoogwaardige dienstverlening en een bruisende cultuur. De blijvende aantrekkingskracht van de stad schuilt in de combinatie van geschiedenis, verfijning en een vooruitstrevende geest.