Baerz & Co is een landelijk samenwerkingsverband van zorgvuldig geselecteerde boutique luxury makelaars. Samen vormen wij één netwerk, met één gedeeld aanbod. De woningen die u op onze website ziet, zijn afkomstig van alle aangesloten kantoren binnen Baerz & Co. Daardoor is niet ieder object rechtstreeks door ons kantoor in verkoop, maar door een gespecialiseerde collega binnen ons netwerk. Heeft u een woning gevonden die u aanspreekt en wilt u meer informatie? Dan brengen wij u graag persoonlijk in contact met de betreffende verkoopmakelaar, zodat u direct en zorgvuldig wordt begeleid.

BERGEN (NH)
Buerweg 15 - 1861 CG
Nederland

Angeline Croonen profile image
Angeline Croonen
Real Estate Agent
€2.995.000 k.k.
Woonoppervlakte
344m2
Perceeloppervlakte
2684m2
Slaapkamers
4

Omschrijving

Aan de de Buerweg 15 en 15s in Bergen bieden wij deze moderne villa met het voorgelegen bijgebouw: een keuterboerderijtje te gebruiken als kantoor of gastenverblijf. Dit alles op één royaal perceel, gelegen in een oase van rust en ruimte.

Een unieke locatie met een diepe tuin én met uitzicht op het achtergelegen weiland. De artistieke poort, die toegang geeft aan dit perceel, duidt aan dat het hier om iets bijzonders gaat. Een plek waar je geen verkeer hoort, slechts vogels die hun prachtige concerten zingen, een plek waar je tot rust komt na een drukke dag. En toch ben je hiervandaan op korte afstand van het centrum van Bergen of het strand van Bergen aan Zee.

U wordt vooraan op het perceel verwelkomd door het monumentale en rietgedekt keuterboerderijtje uit het midden van de 18e eeuw. In 2014 is dit boerderijtje geheel gerenoveerd. Een ideale plek voor bijvoorbeeld werken aan huis, een atelier of mantelzorg.

De villa is in 1984 onder architectuur gebouwd en heeft een moderne hedendaagse uitstraling. Via de entree stapt u de hal binnen waarvandaan diverse ruimtes bereikbaar zijn. In de hal treft men tevens een ruim toilet, de trap naar de verdieping en de meterkast.

We beginnen in de royale living, deze is heerlijk licht en kijkt uit over het gazon richting het achtergelegen weiland. Een open haard zorgt voor een gezellige sfeer en warmte in de namiddag en de avonden.
De moderne open woonkeuken is voorzien van een eiland waar men heerlijk gezamenlijk aan kan zitten. Ook hiervandaan weer een prachtig uitzicht op het groen. Openslaande deuren en een overdekt verwarmd terras halen het buiten naar binnen. De keuken is voorzien van diverse inbouwapparatuur o.a. een quooker, koelkast, vriezer, stoomoven, wijnklimaatkast, warmhoudlade en vaatwasser. Kookgelegenheid is er op het grote fornuis met 4 gaspitten, een teppanyakiplaat, frituur en dubbele oven.
Aansluitend aan de keuken bevindt zich een bijkeuken met wasbak, kastruimte en deur naar buiten.
Op de begane grond bevinden zich nog 2 kamers waarvan 1 met deur naar buiten, nu in gebruik als kastenkamer/bergruimte voor schoenen en jassen. De andere royale kamer is op het noorden gelegen en dient nu als kantoor. Ook dit is een mooie lichte ruimte, met openslaande deuren, voor diverse doeleinden te gebruiken.

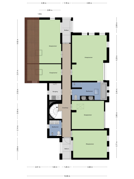
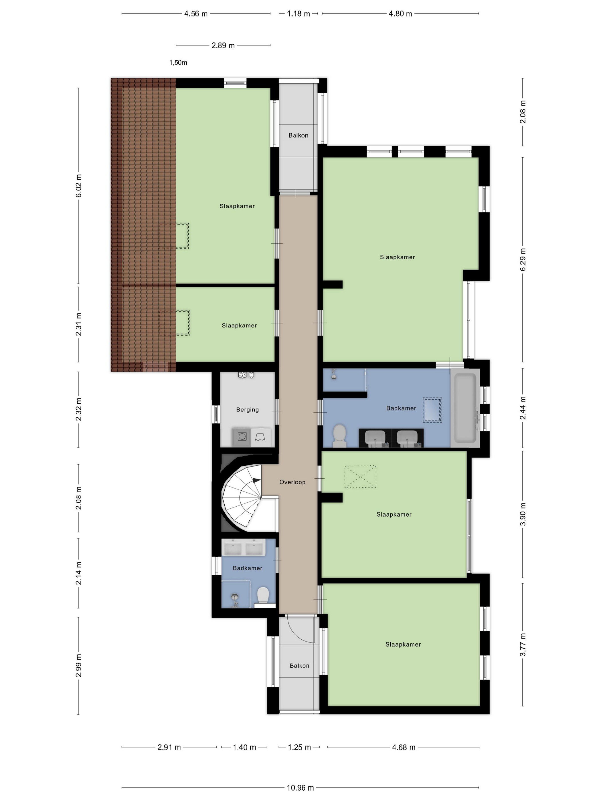
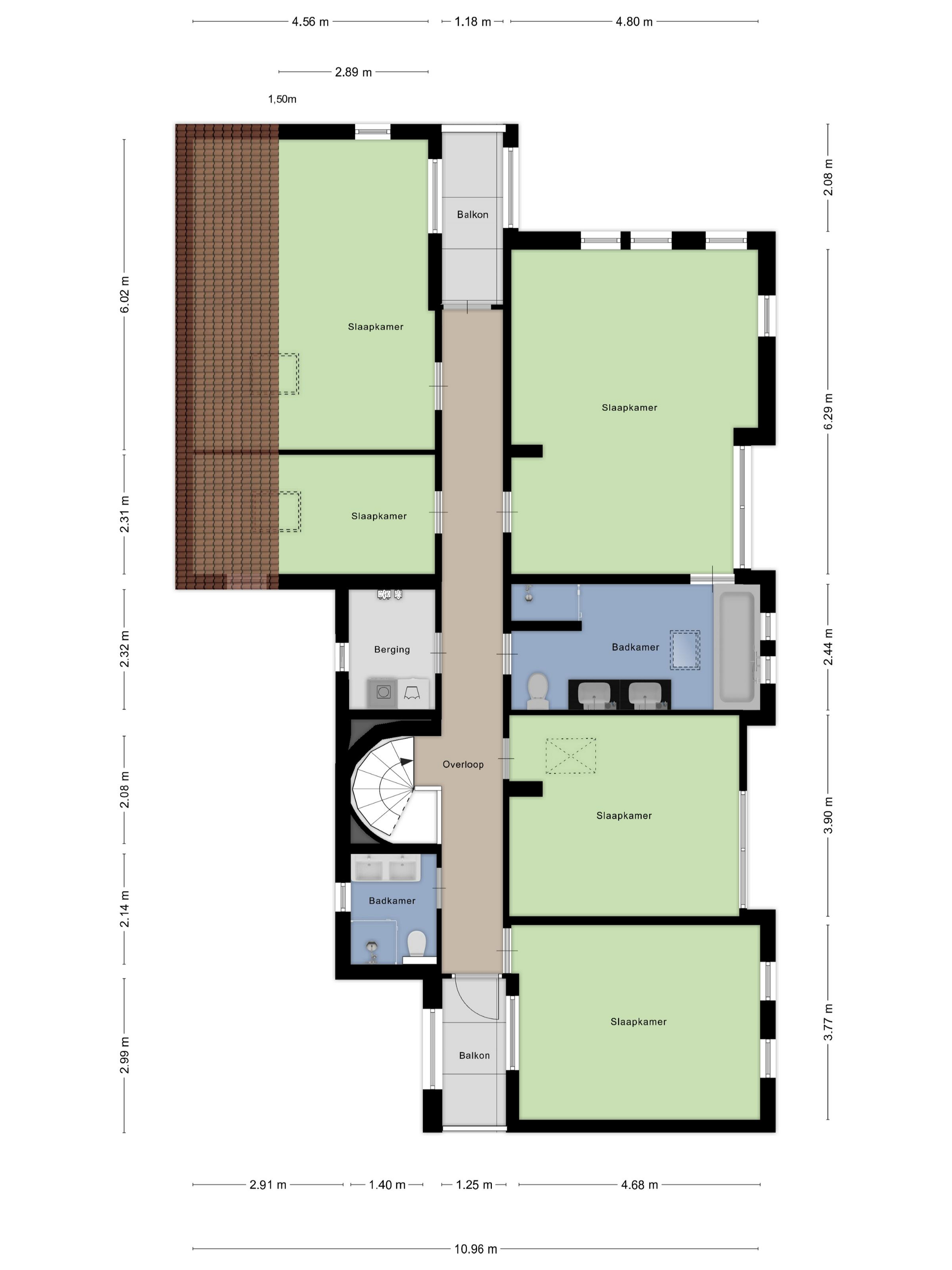
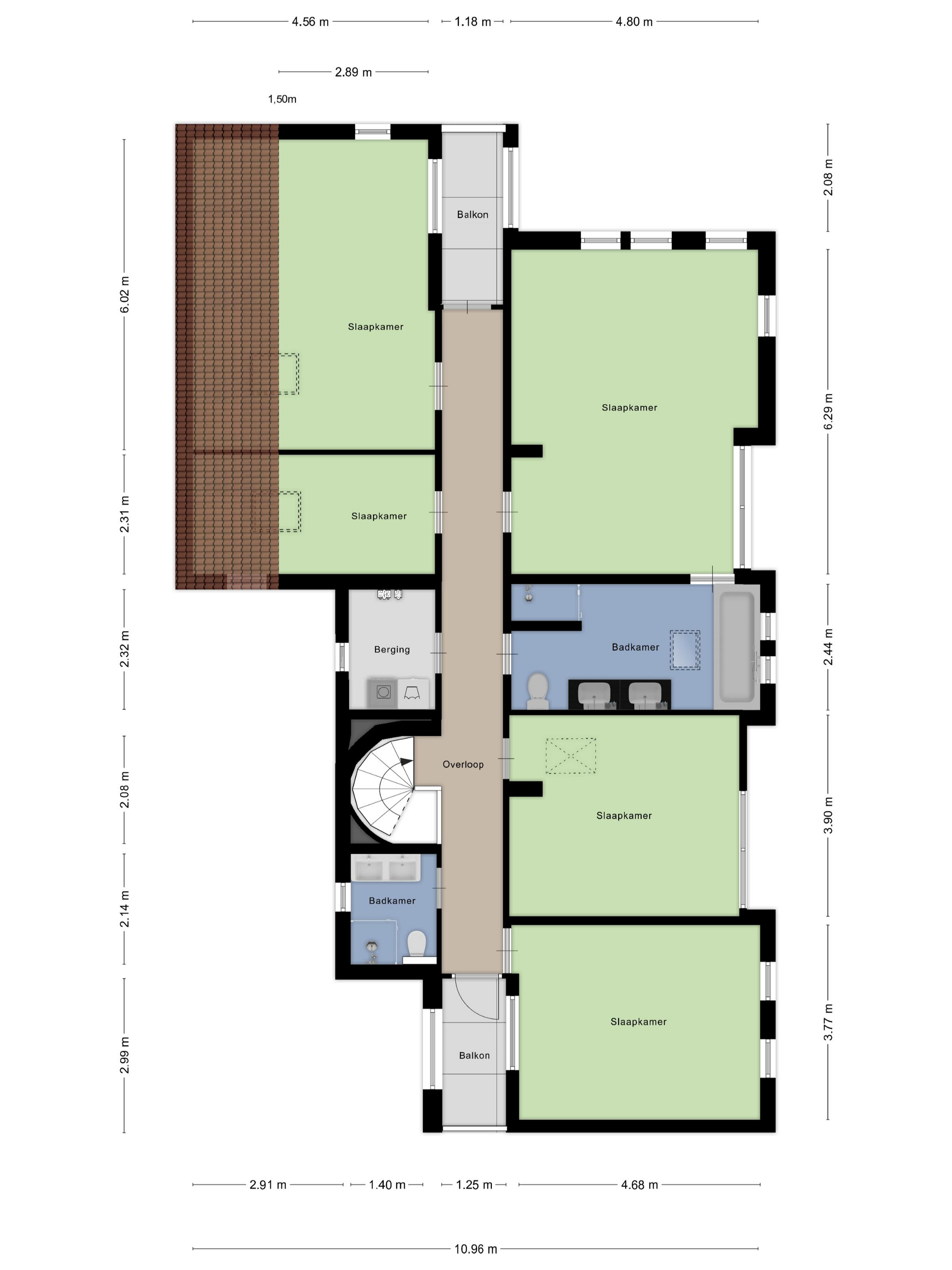
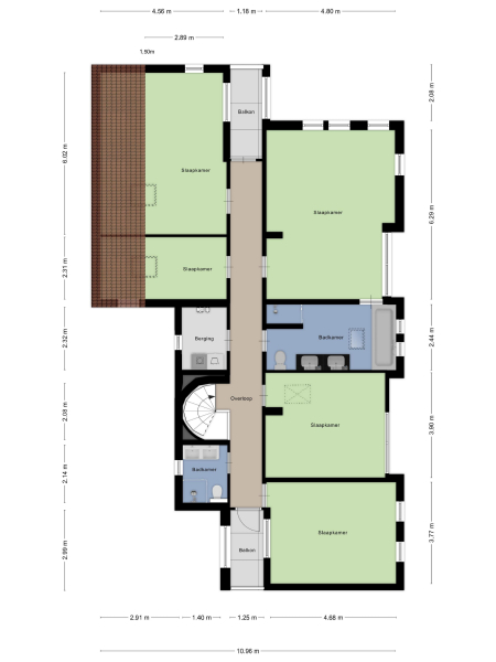
Op de verdieping aan de overloop zijn een vijftal kamers gelegen. Vier kamers zijn zeker royaal te noemen, de vijfde is een kleinere kamer, deze is in gebruik als was/strijkkamer maar zou ook een ideale baby-kamer zijn.
Ook aan de overloop zijn 2 badkamers gelegen. De grote badkamer is voorzien van een dubbele wastafel, een ligbad, een inloopdouche en toilet, deze badkamer ligt aansluitend aan de masterbedroom.
De andere badkamer is voorzien van een dubbele wastafel, een douche en toilet.
Eén kamer biedt toegang tot de royale zolder waar bij plaatsing van een vaste trap nog diverse kamers te creëren zijn. Momenteel is de zolder alleen via een vlizotrap te bereiken.

Ook de technische ruimte bevindt zich op deze verdieping, naast de warmtepomp, boiler en waterontharder treffen we hier de aansluitingen voor de wasmachine en droger.

Naast de villa staat een mooie houten carport voor meerdere auto's, deze carport loopt door in een werkplaats voorzien van water en elektra en is voorbereid op een wellnessruimte.

Het monumentale bijgebouw met heerlijke tuin aan de voorzijde van het perceel is van alle gemakken voorzien en is bijvoorbeeld een prachtige en geschikte plek om te werken aan huis of te gebruiken als atelier of mantelzorgwoning.

Aan de voorzijde is voldoende ruimte voor het parkeren van diverse auto's op eigen terrein. Aan de achterzijde van de villa treft men een mooie royale tuin met diverse terrassen waar men heerlijk kan genieten van zon, natuur en het prachtige uitzicht op het achtergelegen weiland.

Bent u nieuwsgierig geworden naar deze bijzondere locatie, neem contact op voor een afspraak, wij leiden u graag rond!

Kenmerken

Zonnepanelen
Alarm system
Overdracht
Vraagprijs
€ 2.995.000 k.k.
Status
beschikbaar
Aanvaarding
in overleg
Bouw
Soort woonhuis
Villa
Soort bouw
vrijstaande woning
Bouwjaar
1984
Energieklasse
A
Slaapkamers
4
Badkamers
2
Oppervlakten en inhoud
Woonoppervlakte
344 m2
Overige inpandige ruimte
41 m2
Gebouwgebonden buitenruimte
27 m2
Externe bergruimte
93 m2
Inhoud
1428 m3
Perceeloppervlakte
2684 m2
faciliteiten
Mechanische ventilatie
Alarminstallatie
Rookkanaal
Dakraam
Zonnepanelen
Natuurlijke ventilatie
Aan rustige weg
Vrij uitzicht
Beschutte ligging
In bosrijke omgeving
Baerz & Co Property Brochure

Brochure

Video’s

Video Buerweg 15

Plattegronden

Croon Makelaars

Breelaan 41
1861 GD Bergen

info@croonmakelaars.nl
+31 (0)72 743 32 44

www.croonmakelaars.nl

Informatie / bezichtigingsaanvraag

Angeline Croonen profile image
Angeline Croonen
Real Estate Agent