Ons kantoor is lid van Baerz & Co Luxury Homes; een internationaal platform dat exclusieve woningmakelaars met elkaar verbindt. Neem contact op met ons secretariaat voor meer informatie over het landelijke aanbod, waarvan u hieronder een selectie kunt bekijken.

BLARICUM
Rotondeweg 26 - 1261 BG
Nederland

Johan Mulder profile image
Johan Mulder
Real Estate Agent
€1.395.000 k.k.
Woonoppervlakte
144m2
Perceeloppervlakte
540m2
Slaapkamers
4

Omschrijving

Aan een lommerrijke laan, waar het vogelgezang je 's ochtends wekt, ligt deze charmante jaren ’50 villa met mooi aangelegde tuin. Door de jaren heen met gevoel gemoderniseerd, waardoor het huis nu het beste van twee werelden biedt: sfeervol en met comfort van nu. Op loopafstand vind je het oude dorpshart Blaricum, het bos en de heide.

Binnen word je verwelkomd in de hal met gastentoilet, (hoewel je meestal door de achterdeur, zoals in Blaricum hoort, binnenkomt), een mooie lichte L-vormige woonkamer over de gehele achterzijde met parketvloer en gashaard, ideaal voor lange avonden of zonnige middagen met de tuindeuren open. De open keuken is modern en functioneel, voorzien van inbouwapparatuur met achterdeur naar de binnentuin. De kelder met stahoogte biedt extra bergruimte en plek voor wasmachine en droger.

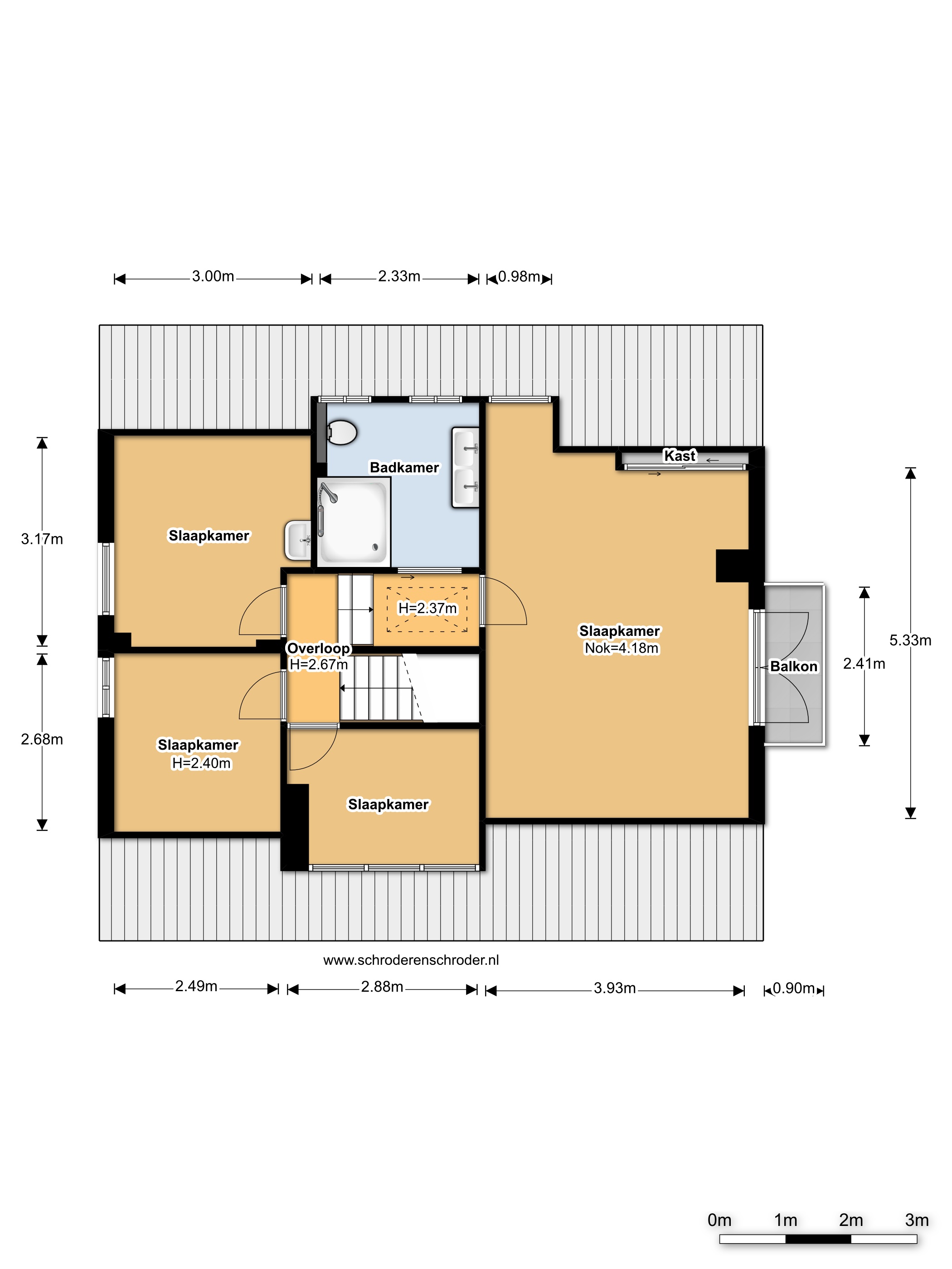
Op de eerste verdieping bevindt zich een royale ouderslaapkamer met zicht tot in de nok, vaste kasten en openslaande deuren naar het balkon, twee slaapkamers, waarvan 1 nu in gebruik als kastenkamer, een werkkamer en een moderne badkamer met vloerverwarming, inloopdouche/stoomcabine, tweede toilet en wastafelmeubel (veel bergruimte).

Het vrijstaande atelier van ca. 16 m² – voorheen een garage – is verbouwd tot een lichte, verwarmde ruimte met water en elektra. Een perfecte plek voor wie in alle rust wil werken, creëren. De mogelijkheid bestaat om de begane grond te vergroten door richting het atelier aan te bouwen.

De besloten tuin rondom is zuid gericht en biedt op ieder moment van de dag een zonnige plek. De veranda nodigt uit tot lange zomerse avonden. Parkeermogelijkheden op eigen terrein voor twee auto’s.

Bijzonderheden
• Woonoppervlak ca. 144 m², perceel 540 m²
• Atelier ca. 16m2 meegenomen in de woonmeters
• Dakpannen vernieuwd in 2003
• Cv van 2025
• Grotendeels dubbele beglazing
• Voorzien van 14 zonnepanelen
• Tuin voorzien van beregeningsinstallatie
• Uitstekende bereikbaarheid A1 en A27

Kenmerken

Alarm system
Overdracht
Vraagprijs
€ 1.395.000 k.k.
Status
beschikbaar
Aanvaarding
in overleg
Bouw
Soort woonhuis
Eengezinswoning
Soort bouw
vrijstaande woning
Bouwjaar
1952
Energieklasse
C
Soort dak
zadeldak
Slaapkamers
4
Badkamers
1
Oppervlakten en inhoud
Woonoppervlakte
144 m2
Overige inpandige ruimte
20 m2
Gebouwgebonden buitenruimte
2 m2
Externe bergruimte
8 m2
Inhoud
519 m3
Perceeloppervlakte
540 m2
faciliteiten
Alarminstallatie
Tv kabel
Rookkanaal
Dakraam
Natuurlijke ventilatie
Aan bosrand
Aan rustige weg
In woonwijk
Beschutte ligging
In bosrijke omgeving
Baerz & Co Property Brochure

Brochure

Video’s

Makelaarschap Veluwe

Jufferenstraat 1
8081 CP Elburg

johan@makelaarschap.nl
+31 0525745805

www.makelaarschap.nl

Informatie / bezichtigingsaanvraag

Johan Mulder profile image
Johan Mulder
Real Estate Agent

Een luxe woning kopen in Blaricum

Blaricum biedt stijlvol wonen in een groene, serene omgeving, met hoogwaardige voorzieningen en een kosmopolitische gemeenschap. De mix van monumenten, privacy en culturele dynamiek spreekt veeleisende internationale bewoners aan.