Baerz & Co is een landelijk samenwerkingsverband van zorgvuldig geselecteerde boutique luxury makelaars. Samen vormen wij één netwerk, met één gedeeld aanbod. De woningen die u op onze website ziet, zijn afkomstig van alle aangesloten kantoren binnen Baerz & Co. Daardoor is niet ieder object rechtstreeks door ons kantoor in verkoop, maar door een gespecialiseerde collega binnen ons netwerk. Heeft u een woning gevonden die u aanspreekt en wilt u meer informatie? Dan brengen wij u graag persoonlijk in contact met de betreffende verkoopmakelaar, zodat u direct en zorgvuldig wordt begeleid.

BREDA
Oude Liesboslaan 265 - 4839 AC
Nederland

Lennart van Oosterhout profile image
Lennart van Oosterhout
Real Estate Agent
€1.575.000 k.k.
Woonoppervlakte
182m2
Perceeloppervlakte
9523m2
Slaapkamers
4

Omschrijving

Moderne, in landhuisstijl gebouwde villa, direct gelegen aan het Liesbos, op een prachtig perceel.

De woning verkeert in uitstekende staat van onderhoud en is zeer gebruiksvriendelijk ingericht, met o.a. een slaap- en badkamer op de begane grond en 3 slaapkamers én een badkamer op de verdieping. Achter de woning is een prachtige grote schuur met dubbele garage aanwezig, daarnaast tref je op het perceel een dubbele carport. 

De riante tuin met achtergelegen grasland biedt optimale privacy. Achter de woning én naast het bijgebouw is een prachtige veranda gerealiseerd, waaronder het heerlijk genieten is van de prachtige tuin.
BEGANE GROND
HAL/ENTREE
Hal/ entree met garderobe, meterkast (voorzien van een moderne groepenkast met 8 groepen en een aardlekschakelaar) en toegang tot de gang.

GANG
Gang met trapopgang naar verdieping I en toegang tot diverse vertrekken:

TOILET
Toiletruimte met wandcloset met inbouwreservoir en fonteintje in meubel.

BADKAMER
Badkamer met ligbad, douchecabine met thermostaatkraan, een wastafelmeubel met veel kastruimte en een designradiator. 

SLAAPKAMER I
Ruime slaapkamer met zicht op het bos, de sfeervolle patio en aan weerszijden prachtig zicht op de tuin. Een aan de achterzijde gesitueerde schuifpui biedt toegang tot de tuin. De vloer is voorzien van fraaie houten vloerdelen.

WOONKAMER
De woonkamer bevindt zich aan de rechterzijde van de woning en biedt zicht op het eerdergenoemde Liesbos. Het zitkamergedeelte is aan de voorzijde gesitueerd, hier is een stijlvolle gashaard geplaatst. 

EETKAMER
De eetkamer is aan de tuinzijde gesitueerd en biedt zicht op de tuin en terrassen rondom de woning én het naast de woning gelegen ven. Een dubbele schuifpui vormt de verbinding met de tuin en het terras. 

KEUKEN
De keuken grenst aan de eetkamer en is voorzien van een moderne inrichting, bestaand uit een composiet blad, een inductie-kookplaat, een afzuigkap, een vaatwasmachine en veel bergruimte in kasten en laden. In het wandmeubel is een grote koelkast geplaatst, alsmede een combi-hetelucht- /stoomoven en een combi-heteluchtoven/magnetron. Ook hier tref je veel extra kastruimte.

BIJKEUKEN
Bijkeuken met modern keukenblokje met spoelbak. In deze ruimte zijn ook de aansluitpunten t.b.v. de wasapparatuur gesitueerd. Daarnaast tref je hier een aparte trapkast. 

De hal, voorkamer, keuken en bijkeuken zijn voorzien van een grote (antracieten) plavuizenvloer.
EERSTE VERDIEPING
OVERLOOP
Overloop met groot dakvenster. Vanuit deze overloop toegang tot:

SLAAPKAMER II
Zijslaapkamer met 2 Velux dakvensters en 2 vaste kasten. Vanuit deze kamer toegang tot een berging waarin de HR cv-combiketel (ca. 2018) en mechanisch ventilatiesysteem-unit geplaatst zijn. 

BADKAMER
Badkamer met inrichting, bestaand uit een douchecabine met thermostaatkraan, een wastafel en een wandcloset met inbouwreservoir. Daglichttoetreding middels een Velux dakvenster. 

SLAAPKAMER III
Voorslaapkamer met zogenaamd Frans balkon.

SLAAPKAMER IV
Grote achterslaapkamer met aan weerszijden bergruimte achter de knieschotten

De slaapkamers zijn allen voorzien van een lichte laminaatvloer.
TUIN
De prachtige, volledig omheinde tuin omringt de woning, biedt optimale privacy en gaat als het ware op in de omgeving. Rondom de woning zijn diverse terrassen aangelegd in strakke betontegels. Er is een veranda gesitueerd tussen de woning en het bijgebouw, deze is ook naast het bijgebouw doorgetrokken en biedt prachtig zicht op de tuin. Ook achter het bijgebouw is deze veranda aanwezig. De veranda is deels voorzien van terrasverwarming. In de tuin tref je o.a. een groot gazon, een fruitboomgaard en diverse bomen en hagen. Naast de woning ligt een prachtige vijver. De oprit is voorzien van sierbestrating en leidt o.a. naar de carport (plaats voor 2 auto’s) en de grote schuur.
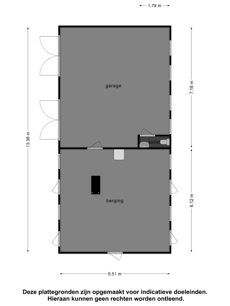
BIJGEBOUW
Het bijgebouw bestaat uit 2 delen. De rechterzijde is een multifunctionele berging/hobbyruimte waarboven een volwaardige zolderetage. De linkerzijde, nu in gebruik als hobbyruimte, biedt ruim plaats aan 2 auto’s.

Dit bijgebouw is voorzien van krachtstroom. 
WAT U VERDER NOG MOET WETEN;
• De begane grond is onder de tegelvloer voorzien vloerverwarming. 

• De begane grond is voorzien van glad stucwerk.

• De woning is volledig geïsoleerd. 

• De ligging is zeer gunstig, aan de rand van het Liesbos, op enkele fietsminuten afstand van de Haagsemarkt en op ca. 15 minuten van het centrum van Breda.

• U treft diverse uitvalswegen in de directe omgeving.

• De woning verkeert in een uitstekende staat van onderhoud.

• De ruimte in de woning én het bijgebouw maakt deze woning zeer geschikt voor verschillende doelgroepen. 

Kenmerken

Overdracht
Vraagprijs
€ 1.575.000 k.k.
Status
beschikbaar
Aanvaarding
in overleg
Bouw
Soort woonhuis
Villa
Soort bouw
vrijstaande woning
Bouwjaar
2000
Energieklasse
B
Soort dak
samengesteld dak
Slaapkamers
4
Badkamers
2
Oppervlakten en inhoud
Woonoppervlakte
182 m2
Overige inpandige ruimte
0 m2
Gebouwgebonden buitenruimte
86 m2
Externe bergruimte
141 m2
Inhoud
674 m3
Perceeloppervlakte
9523 m2
faciliteiten
Mechanische ventilatie
Tv kabel
Aan bosrand
Aan rustige weg
Vrij uitzicht
Open ligging
In bosrijke omgeving
Baerz & Co Property Brochure

Brochure

Plattegronden

Storimans en Partners

Ginnekenweg 161
4818 JD Breda

lvanoosterhout@storimansenpartners.nl
+31 76 522 60 90

www.storimansenpartners.nl

Informatie / bezichtigingsaanvraag

Lennart van Oosterhout profile image
Lennart van Oosterhout
Real Estate Agent

Een luxe woning kopen in Breda

Breda trekt een veeleisende internationale gemeenschap met elegante woningen, een verfijnde levensstijl en hoogstaande vastgoedservice. De combinatie van rijk erfgoed en moderne voorzieningen maakt de stad blijvend geliefd bij wie stijlvol en comfortabel wil wonen in een energiek Nederlands decor.