Baerz & Co is een landelijk samenwerkingsverband van zorgvuldig geselecteerde boutique luxury makelaars. Samen vormen wij één netwerk, met één gedeeld aanbod. De woningen die u op onze website ziet, zijn afkomstig van alle aangesloten kantoren binnen Baerz & Co. Daardoor is niet ieder object rechtstreeks door ons kantoor in verkoop, maar door een gespecialiseerde collega binnen ons netwerk. Heeft u een woning gevonden die u aanspreekt en wilt u meer informatie? Dan brengen wij u graag persoonlijk in contact met de betreffende verkoopmakelaar, zodat u direct en zorgvuldig wordt begeleid.

LEIDEN
Dwars Koornbrugsteeg 8 - 2311 EL
Nederland

Michiel de Jong RM profile image
Michiel de Jong RM
NVM Register Makelaar - Partner
€900.000 k.k.
Woonoppervlakte
173m2
Perceeloppervlakte
204m2
Slaapkamers
3

Omschrijving

Achter de historische gevel aan een van de meest karaktervolle grachten van Leiden bevindt zich dit bijzondere grachtenpand.

Het monumentale herenhuis dateert uit circa 1650 en combineert eeuwenoude charme met verrassend veel leefruimte, verdeeld over meerdere woonlagen. De ligging aan de gracht en aan vaarwater onderstreept het authentieke karakter, terwijl het aanwezige dakterras een zeldzame en zeer aangename buitenruimte biedt midden in de binnenstad. Originele details, speelse niveauverschillen en de royale opzet maken dit appartement tot een uniek woonobject voor de liefhebber van historie en stedelijk wonen.

De woning maakt deel uit van een monumentaal pand en is door de jaren heen zorgvuldig bewoond en onderhouden. Positieve aanpassingen en verbeteringen zijn uitgevoerd met respect voor het karakter van het gebouw, waarbij functionaliteit en comfort zijn toegevoegd zonder afbreuk te doen aan de historische uitstraling.

De locatie is zonder meer uitstekend. Dwars Koornbrugsteeg ligt in het hart van de Leidse binnenstad, op steenworp afstand van de Haarlemmerstraat, de Breestraat en het Stadhuisplein. Musea zoals het Rijksmuseum van Oudheden en Museum De Lakenhal, evenals de Leidse grachten en hofjes, bevinden zich op loopafstand. Ook het Plantsoen en de singels bieden groen en ontspanning dichtbij huis. Leiden Centraal Station is per fiets of te voet snel bereikbaar en via de A4 en A44 zijn steden als Den Haag, Amsterdam en Schiphol uitstekend ontsloten.

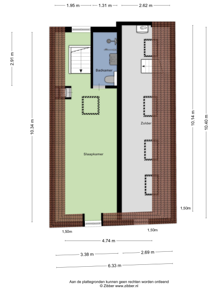
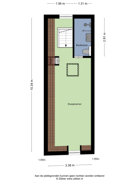
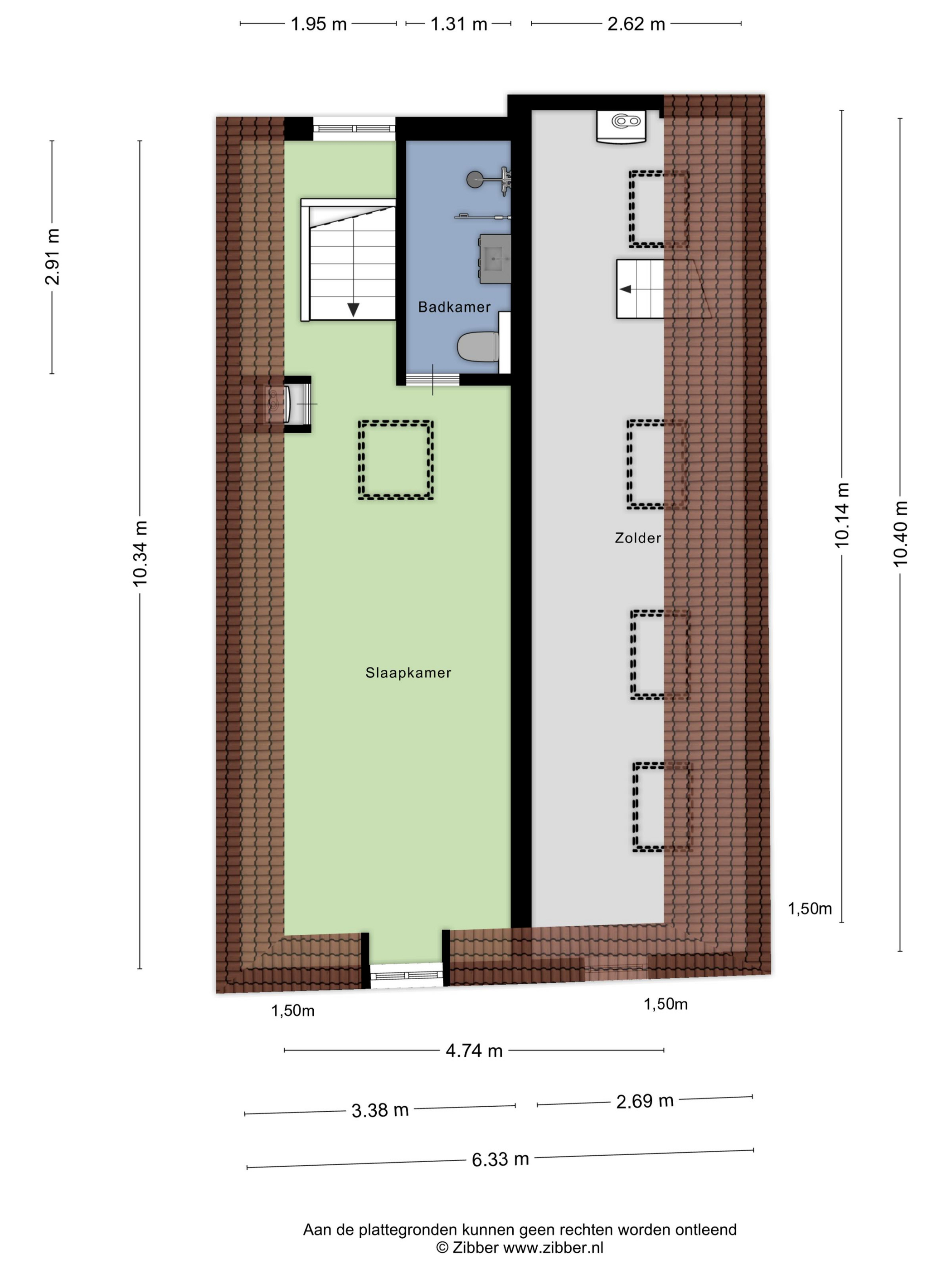
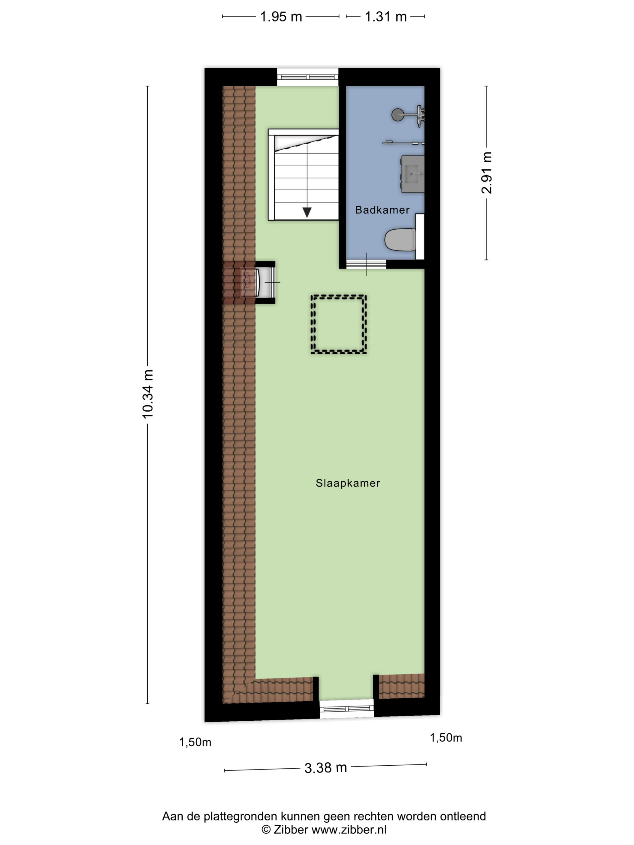
De indeling is speels en royaal, verdeeld over meerdere niveaus. Via de eigen entree op straatniveau leidt een trap naar het souterrain met praktische ruimte en bergruimte en onder het souterrain een kelder. Op de woonverdiepingen bevinden zich de keuken, meerdere slaapkamers en badkamers, verbonden door gangen en overlopen die zorgen voor een prettige routing door de woning. Op de tweede verdieping bevindt zich een dakterras, een heerlijke plek met privacy en uitzicht over de historische bebouwing. Daarnaast is er een entresol die uitstekend dienst kan doen als werkruimte, atelier of extra verblijfsruimte.

Een zeldzame kans om te wonen in een monumentaal pand met ruimte, buitenruimte en een topligging in het historische hart van Leiden.
BIJZONDERHEDEN

- Rijksmonument (subsidiemogelijkheden!)
- Beschermd stadsgezicht
- Ouderdomsclausule van toepassing
- Bouwtechnische keuring aanwezig
- De woning zal worden omgezet in één appartementsrecht middels een Splitsingsakte

Kenmerken

Overdracht
Vraagprijs
€ 900.000 k.k.
Status
beschikbaar
Aanvaarding
in overleg
Bouw
Soort woonhuis
Grachtenpand
Soort bouw
tussenwoning
Bouwjaar
1650
Soort dak
samengesteld dak
Slaapkamers
3
Badkamers
3
Oppervlakten en inhoud
Woonoppervlakte
173 m2
Overige inpandige ruimte
35 m2
Gebouwgebonden buitenruimte
12 m2
Inhoud
350 m3
Perceeloppervlakte
204 m2
faciliteiten
Mechanische ventilatie
Tv kabel
Rookkanaal
Glasvezel kabel
Aan water
In centrum
In woonwijk
Vrij uitzicht
Baerz & Co Property Brochure

Brochure

Video’s

Plattegronden

Graal Makelaardij

Rapenburg 4
2311 EV Leiden

info@graalmakelaardij.nl
+31 (0)71 51 61 000

www.graalmakelaardij.nl

Informatie / bezichtigingsaanvraag

Michiel de Jong RM profile image
Michiel de Jong RM
NVM Register Makelaar - Partner

Een luxe woning kopen in Leiden

Leiden biedt uitzonderlijk erfgoed, dynamische cultuur en een gericht dienstverleningsniveau, waardoor het een aantrekkelijke omgeving wordt voor internationale bewoners. Met verfijnde woningen, een vitale academische traditie en discrete luxe biedt deze grachtenstad een geraffineerde levensstijl voor een internationale gemeenschap.