Baerz & Co is een landelijk samenwerkingsverband van zorgvuldig geselecteerde boutique luxury makelaars. Samen vormen wij één netwerk, met één gedeeld aanbod. De woningen die u op onze website ziet, zijn afkomstig van alle aangesloten kantoren binnen Baerz & Co. Daardoor is niet ieder object rechtstreeks door ons kantoor in verkoop, maar door een gespecialiseerde collega binnen ons netwerk. Heeft u een woning gevonden die u aanspreekt en wilt u meer informatie? Dan brengen wij u graag persoonlijk in contact met de betreffende verkoopmakelaar, zodat u direct en zorgvuldig wordt begeleid.

LEIDEN
Hoge Rijndijk 320 - 2314 AN
Nederland

Michiel de Jong RM profile image
Michiel de Jong RM
NVM Register Makelaar - Partner
€2.850.000 k.k.
Woonoppervlakte
332m2
Perceeloppervlakte
1686m2
Slaapkamers
4

Omschrijving

Landhuis “Huize Rijnlust” met poortgebouw en boothuis op 10 minuten van centrum

In voorbije tijden zochten de welvarende burgers van Leiden hun rust en ontspanning buiten de stad. Langs de rivieren en vaarten rondom Leiden werden buitenplaatsen aangelegd waar men de drukke stad in de zomer kon ontvluchten en kon genieten van de rust en gezonde buitenlucht. In de loop der tijden is de stad gegroeid en werden de buitenplaatsen beetje bij beetje werden opgeslokt. Daarbij zijn vele buitens verloren gegaan, maar nog enkele pareltjes behouden die nu een eiland van rust en groen in een dynamische stad vormen. Een van deze parels ligt achter het moderne poortgebouw aan de Hoge Rijndijk 320.

Nadat je het elektrische hek van het poortgebouw achter je hebt gesloten waan je je direct in een andere omgeving en komt de rust over je heen. Een centraal gazon met eeuwenoude plataan (1820) vormt het hart van de binnentuin. Bijzonder is de kas met mandarijnenboom naast de boom, waar je op een zonnige dag in hartje winter nog heerlijk kunt zitten. Zowel links als rechts van het gazon loopt een grindpad, waar je eventueel met de auto direct voor het huis kunt komen. Nu zijn er enkele hoekjes en zitjes waar je op verschillende momenten van de dag kan genieten van zon of schaduw. Iets verderop ligt een vijver die van een waterleidingsysteem met Rijnwater is voorzien, met daarachter de entree van de woning, links geflankeerd door een veranda en rechts een zonrijke serre. Ook hier zijn het alle jaargetijden genieten van deze grote tuin.

In de zomer is direct aan de Rijn aangenaam verblijven. De achterzijde van het huis met 5 prachtige leilinden ligt aan het smalste stukje vaarwater van de Rijn in Europa.
In de tuin met terras langs het water kunnen ontbijt, lunch, borrel en diner tegen een achtergrond van voorbijvarende bootjes genuttigd worden. Mocht er een bekende voorbij varen, dan kan er even aangelegd worden om in te stappen. Uiteraard zou je ook de eigen boot kunnen pakken. De woning beschikt immers over een eigen botenhuis met helling, waar je zou ook nog een insteekhaven zou kunnen maken en met een klein stukje varen ben je op De Kaag of naar het midden in het Groene Hart, het centrum van Leiden met haar vele romantische grachten en terrassen.

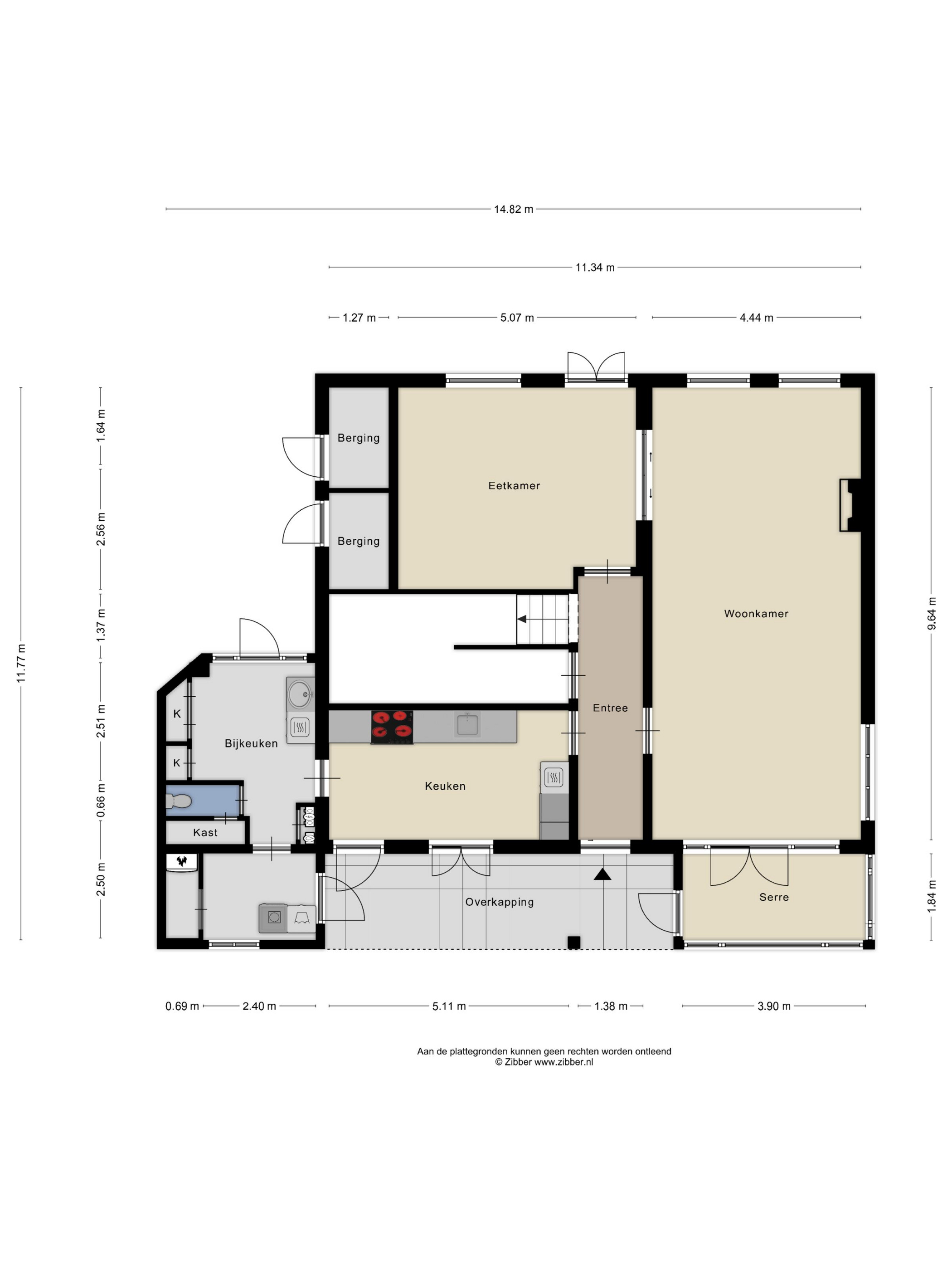
Het hoofdgebouw uit 1820 wordt getypeerd door de klassieke stijlelementen uit die periode: een centrale entree met aan weerszijden twee raampartijen met luiken en op de eerste etage de aanzet van de kap met centraal een gevel met drie raampartijen met luiken. Ook binnen zijn de voor deze bouwperiode kenmerkende eigenschappen aanwezig; hoge statige plafonds en raampartijen aan alle zijden zorgen voor een prachtige lichtinval op elk moment van de dag. Op de begane grond zijn een L-vormige woonkamer en suite, open haard met aan de tuinzijde een serre en aan de waterzijde zicht op de Rijn. De centrale hal loopt van voor- naar achterzijde en heeft openslaande deuren naar de tuin met terras aan de waterkant. Aan de linkerzijde van de hal liggen de keuken met bijkeuken met een doorloop naar de schuur, de ruime kelder en de formele eetkamer met ook weer een prachtig zicht op de Rijn en de voorbijvarende boten.

De bordestrap vormt het hart van het huis en de verbinding, met een toegang tot een ruime toiletruimte met wandcloset en fontein, naar de slaapverdieping. Hier zijn drie ruime slaapkamers met de master bedroom aan de waterzijde en inloopkast. De slaapkamers typeren zich door de hoge plafonds en het uitzicht op de tuin en het water, waarbij de master bedroom eruit springt door het formaat. De badkamer is voorzien van alle luxe met een granito-vloer, vloerverwarming en 2 in natuursteen ingebouwde wastafels. Niet alleen de hygiëne, maar ook ontspanning: naast een verzonken duo-bad, een doucheruimte met stortdouche en “Turks bad”, sauna, een wandbidet en een wandcloset.

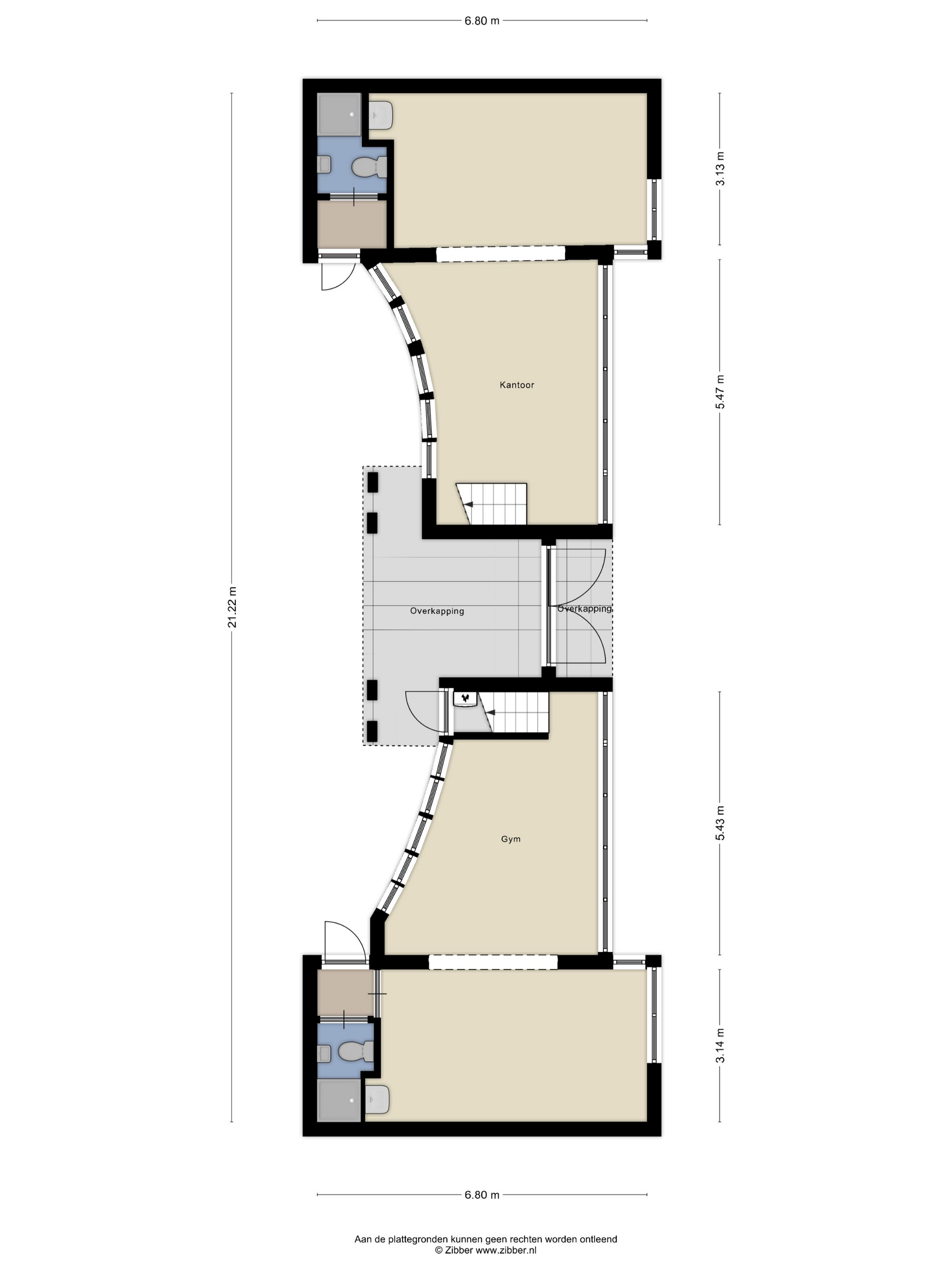
Het poortgebouw uit 1995 is symmetrisch van opzet met een centrale doorgang in het midden en op de begane grond zowel aan de linker- als aan de rechterzijde een entree. De linkervleugel is in gebruik als kantoor, waarbij ook een wc, douche en pantry aanwezig zijn. De rechtervleugel is in gebruik als fitnessruimte en beschikt ook over een wc, douche en pantry. Zowel vanuit de linker- als vanuit de rechtervleugel is een trap naar de kamer boven de poort, die nu als gastenslaapkamer is ingericht. De gevel van het poortgebouw bestaat grotendeels uit glas en heeft openslaande deuren naar de tuin in beide vleugels, waarmee gezorgd is voor veel lichtinval en verbinding met de binnentuin.

Winkels en faciliteiten zoals sportclubs en goede scholen, liggen op loop- of fietsafstand. Ook vindt men in Leiden de 1e Universiteit die Willem van Oranje schonk in 1575 tijdens het beleg van Spanje. In de naastgelegen wijk Meerburg ligt een geheel nieuw winkelgebied met supermarkt en diverse winkels geopend. Ideaal voor de dagelijkse boodschappen. Tevens het grote gezellige winkelcentrum te bereiken “Het Winkelhof” op loop- en fietsafstand en gratis parkeren. Het fietsbruggetje over de Rijn loop je direct in de Hoofdstraat in Leiderdorp. Leuk straatje met restaurantjes zoals De Hollandsche Tuyn en andere Horeca in deze Hoofdstraat. Nog geen 10 minuten fietsen ben je in het centrum in van Leiden: historie, cultuur, winkels, vele restaurants aan de Leidse grachten. Kortom Leiden bruist!

Met de toegang tot de A4 ligt de gehele Randstad op korte reisafstand. Even naar Den Haag? 15 minuten. Vlucht vanaf Schiphol? 20 minuten. En via de nieuwe Rijksweg 11 West ben je in 15 minuten aan de kust.
BIJZONDERHEDEN

- Rijksmonument
- Bevat 34 zonnepanelen (310 Wp per paneel) uit 2018
- Twee cv-ketels (hoofdhuis en poortgebouw)
- In 1995 geheel gerenoveerd en gemoderniseerd, waarbij ook de nieuwbouw van het poortgebouw
- In 2007 op onderdelen gemoderniseerd
- Uitstekend onderhouden en voorzien van moderne voorzieningen
- Isolerende beglazing
- Gekoppelde alarminstallatie met het poortgebouw met camera’s
- Ziekenhuizen in en rondom Leiden

Kenmerken

Zonnepanelen
Alarm system
Air conditioning
Overdracht
Vraagprijs
€ 2.850.000 k.k.
Status
beschikbaar
Aanvaarding
in overleg
Bouw
Soort woonhuis
Herenhuis
Soort bouw
vrijstaande woning
Bouwjaar
1820
Soort dak
samengesteld dak
Slaapkamers
4
Badkamers
3
Oppervlakten en inhoud
Woonoppervlakte
332 m2
Overige inpandige ruimte
23 m2
Gebouwgebonden buitenruimte
33 m2
Externe bergruimte
42 m2
Inhoud
1316 m3
Perceeloppervlakte
1686 m2
faciliteiten
Mechanische ventilatie
Alarminstallatie
Tv kabel
Buitenzonwering
Airconditioning
Zonnecollectoren
Rookkanaal
Glasvezel kabel
Zonnepanelen
In woonwijk
Vrij uitzicht
Aan vaarwater
Baerz & Co Property Brochure

Brochure

Graal Makelaardij

Rapenburg 4
2311 EV Leiden

info@graalmakelaardij.nl
+31 (0)71 51 61 000

www.graalmakelaardij.nl

Informatie / bezichtigingsaanvraag

Michiel de Jong RM profile image
Michiel de Jong RM
NVM Register Makelaar - Partner

Een luxe woning kopen in Leiden

Leiden biedt uitzonderlijk erfgoed, dynamische cultuur en een gericht dienstverleningsniveau, waardoor het een aantrekkelijke omgeving wordt voor internationale bewoners. Met verfijnde woningen, een vitale academische traditie en discrete luxe biedt deze grachtenstad een geraffineerde levensstijl voor een internationale gemeenschap.