Baerz & Co is een landelijk samenwerkingsverband van zorgvuldig geselecteerde boutique luxury makelaars. Samen vormen wij één netwerk, met één gedeeld aanbod. De woningen die u op onze website ziet, zijn afkomstig van alle aangesloten kantoren binnen Baerz & Co. Daardoor is niet ieder object rechtstreeks door ons kantoor in verkoop, maar door een gespecialiseerde collega binnen ons netwerk. Heeft u een woning gevonden die u aanspreekt en wilt u meer informatie? Dan brengen wij u graag persoonlijk in contact met de betreffende verkoopmakelaar, zodat u direct en zorgvuldig wordt begeleid.

LISSE
Achterweg-zuid 56 - 2161 DZ
Nederland

Frits Wilbrink profile image
Frits Wilbrink
Real estate agent
€3.950.000 k.k.
Woonoppervlakte
590m2
Perceeloppervlakte
10170m2
Slaapkamers
6

Omschrijving

Uniek en riant landhuis (bouwjaar 2009) met een allure die je niet vaak ziet. Dit sfeervolle landhuis ligt op een fantastische locatie midden tussen de bollenvelden, op steenworp afstand van Keukenhof en het Keukenhofbos. De villa is gebouwd met gebruik van hoogwaardige materialen en voorzien van alle luxe en comfort. Water rondom het perceel, het elektrisch bedienbare sierhek met anti-inrijpaal, de camera's en automatische buitenverlichting zorgen voor extra beveiliging.

• 6 slaapkamers
• 2 badkamers
• Wellness
• Gym
• Groot garagegebouw

Bouwjaar 2009; Woonoppervlakte 590m2; Gebruiksoppervlakte bijgebouw 352m2; Inhoud villa 2.859m3; Perceel 10.170m2

Het landhuis;
Via het elektrisch bedienbare toegangshek rijden we de oprijlaan naar de woning op.
Er is ruim parkeergelegenheid voor meerdere auto's.

Begane grond;
De elektrisch te ontgrendelen deur aan de voorzijde leidt ons naar de hal waar luxe, ruimte en comfort direct opvallen.
Aan de voorzijde van de woning is de grote luxe woonkeuken, voorzien van een spoeleiland en luxe inbouwapparatuur, een gashaard en openslaande deuren naar het terras. De grote sfeervolle woonkamer heeft eveneens een gashaard, openslaande deuren naar het terras en via stalen draaideuren toegang tot de woonkeuken en de royale gezellige eetkamer. Verborgen achter een deur in de hal bevindt zich de luxe drie-eenheid van slaapkamer, kleedkamer en badkamer. Deze royale ouderslaapkamer met gashaard heeft uitzicht op en toegang tot de tuin. Ook is er een separaat toilet.
Aan de achterzijde van de woning is een tweede entree met trapopgang naar de verdieping.

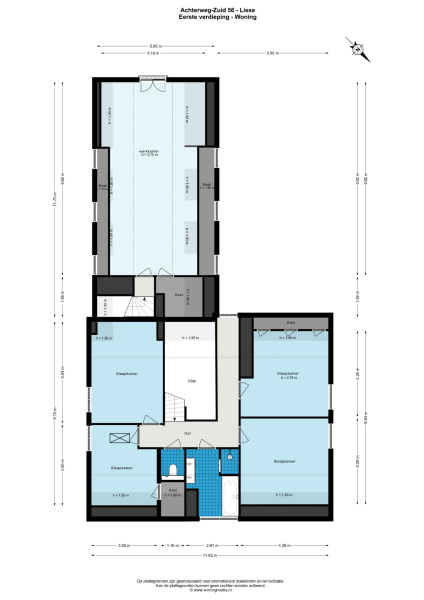
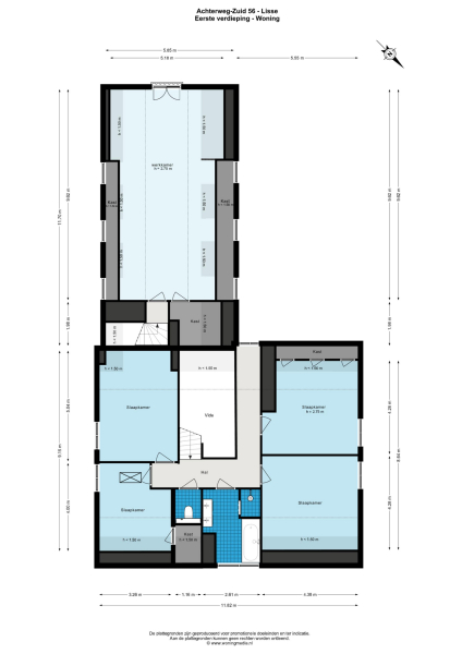
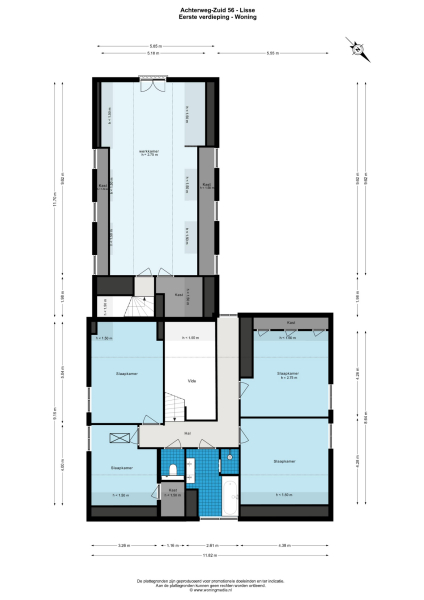
1e etage;
De verlichte, centraal gelegen trap brengt ons naar de slaapverdieping waar 4 royale slaapkamers met fraai uitzicht zijn, een 2e luxe badkamer en apart toilet. Via de trapopgang aan de achterzijde van de woning komen we in een zeer grote kamer met vaste kasten en 6 dakkapellen die thans in gebruik is als werkkamer. Ook hier genieten we van een prachtig uitzicht.

Souterrain;
Voor de wellness hoeven we ook de deur niet uit; in het souterrain met o.a. een Finse sauna, een Turks stoombad en een rustruimte kunt u heerlijk relaxen. Tevens is er een fitnessruimte, een chillroom met bar met openslaande deuren naar de aanwezige buitenkoekoek. Deze ruimte is ook te gebruiken voor de au-pair of voor dubbele bewoning.

Vliering;
De bergzolder is te bereiken via een Vlizotrap, hier staan de cv-ketels, de warmwaterboiler en de motor van de professionele afzuigkap.

Garagegebouw;
De luxueuze vrijstaande garage biedt parkeerplaats aan 6 auto’s. De gehele ruimte is voorzien van vloerverwarming en er is een autobrug aanwezig om aan de (hobby)-auto te sleutelen. Dit gebouw kan mogelijk voor bewoning geschikt gemaakt worden.

Duurzaamheid;
• Muurisolatie
• Dakisolatie
• Vloerisolatie
• Vloerverwarming
• Warmtepomp
• Energielabel B
Tuin;
Het perceel is omringd door water en afgesloten met een elektrisch sierhek met anti-inrijpaal. De riante tuin heeft diverse terrassen, veranda's, 2 vijvers, fraaie bomen, hagen en bloemperken. Hier is het heerlijke genieten van de geuren en kleuren van de bollenvelden.
Het alarmsysteem met intercom en camera's zorgt voor extra beveiliging.

Ligging;
Wie Lisse zegt denkt direct ook aan Keukenhof en bloembollenvelden.
Deze villa is schitterend gelegen tussen de bollenvelden en op loopafstand van Keukenhof, Kasteel Keukenhof en het bijbehorende bos. Het centrum van Lisse met z'n vele winkels en gezellige restaurants ligt op loop-/fietsafstand en ook strand, zee en duinen zijn met de fiets te bereiken. Met de auto zijn Amsterdam/Schiphol, Leiden, Haarlem en Den Haag met 30 minuten te bereiken.

Bijzonderheden;
- bijzonder fraai en luxe landhuis;
- traditioneel gebouwd;
- groot perceel eigen grond;
- weids uitzicht over de bloembollenvelden;
- sierhek met anti-inrijpaal ter beveiliging;
- houten tapis vloeren met white wash finish op de begane grond;
- slaapkamer, kleedkamer en badkamer op de begane grond;
- domotica t.b.v. verlichting, verwarming/koeling, zonwering etc.;
- goederenlift van het souterrain naar de 1e etage;|
- stortkoker wasgoed;
- warmtepomp met 12 bronnen;
- hydrofoor;
- 2 cv + boiler;
- waterontharder;
- volledig onderkelderd (souterrain);
- meerdere koekoeks aanwezig voor natuurlijke lichtinval en ventilatie in het souterrain;
- wellness gedeelte in souterrain;
- grote wasruimte in souterrain;
- camerabewaking met volgsysteem;
- hoge plafonds;
- vloerverwarming gehele woning;
- speakers in plafonds;
- geluidsinstallatie Naim;
- koelplafonds;
- alarminstallatie met intercom en camera's;
- 2 veranda's;
- zinken goten en regenpijpen;
- bliksemafleider;
- het perceel is omringd door water;
- het perceel heeft twee grote vijvers;
- grote vrijstaand garagegebouw met toilet, pantry en autobrug;
- plaats voor 6 auto's in de garage met elektrische deuren, vloerverwarming
- aansluiting voor oplaadpunt elektrische auto
Makelaar Frits Wilbrink nodigt u van harte uit voor een bezichtiging.
Met elkaar maken wij het waar(d).

Kenmerken

Alarm system
Overdracht
Vraagprijs
€ 3.950.000 k.k.
Status
beschikbaar
Aanvaarding
in overleg
Bouw
Soort woonhuis
Landhuis
Soort bouw
vrijstaande woning
Bouwjaar
2009
Energieklasse
A+
Soort dak
samengesteld dak
Slaapkamers
6
Badkamers
2
Oppervlakten en inhoud
Woonoppervlakte
590 m2
Overige inpandige ruimte
31 m2
Gebouwgebonden buitenruimte
20 m2
Externe bergruimte
352 m2
Inhoud
2859 m3
Perceeloppervlakte
10170 m2
faciliteiten
Alarminstallatie
Lift
Stoomcabine
Rookkanaal
Frans balkon
Domotica
Aan water
Aan rustige weg
Vrij uitzicht
Open ligging
Buiten bebouwde kom
In bosrijke omgeving
Landelijk gelegen
Baerz & Co Property Brochure

Brochure

Video’s

Video Achterweg-Zuid 56

Wilbrink & v.d. Vlugt Makelaars

Heereweg 231
2161 BG Lisse

info@wilbrinkvandervlugt.nl
+31 252 41 90 49

www.onsaanbod.nl

Informatie / bezichtigingsaanvraag

Frits Wilbrink profile image
Frits Wilbrink
Real estate agent

Een luxe woning kopen in Lisse

Lisse biedt een harmonieuze leefstijl waar traditie en eigentijdse verfijning samenkomen. Exclusieve woningen, levendige cultuur en optimale bereikbaarheid maken Lisse aantrekkelijk voor internationale families, investeerders en kritische kopers.