Ons kantoor is lid van Baerz & Co Luxury Homes; een internationaal platform dat exclusieve woningmakelaars met elkaar verbindt. Neem contact op met ons secretariaat voor meer informatie over het landelijke aanbod, waarvan u hieronder een selectie kunt bekijken.

SASSENHEIM
Van Pallandtlaan 24 - 2172 JJ
Nederland

Rick Broekhof profile image
Rick Broekhof
Real estate agent
€1.295.000 k.k.
Woonoppervlakte
199m2
Perceeloppervlakte
1130m2
Slaapkamers
2

Omschrijving

Welkom in deze schitterende villa gelegen op een ruim perceel van maar liefst 1130m² in het mooie Sassenheim. Deze villa biedt ultiem wooncomfort, privacy en laat u zich vooral verrassen door de vele mogelijkheden.

- Grotendeels onderkelderd
- Boeidelen zijn vervangen na foto's (2024)
- 2 Badkamers
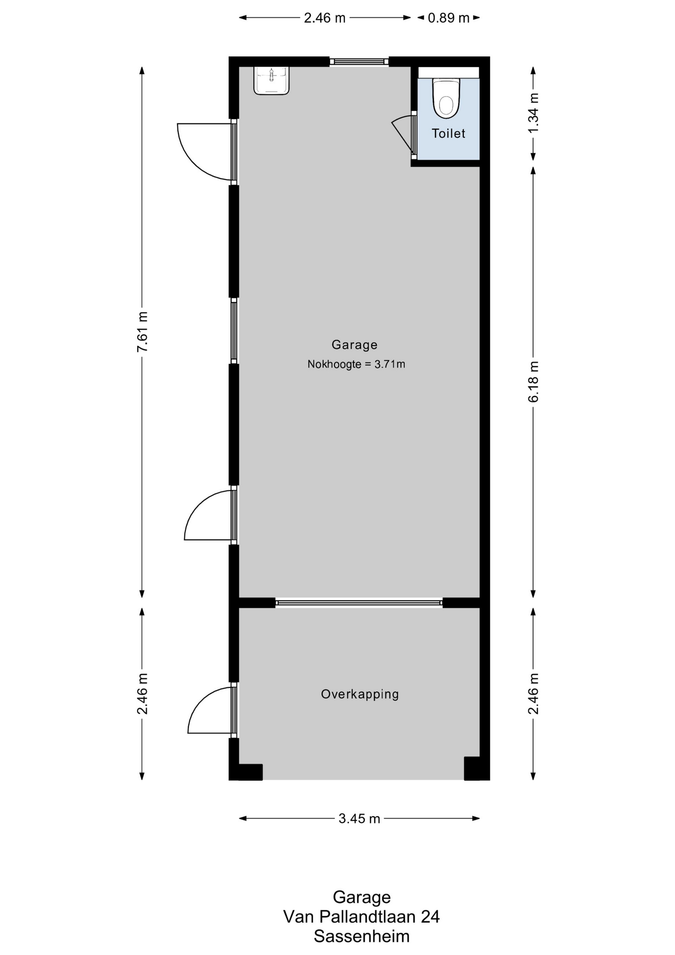
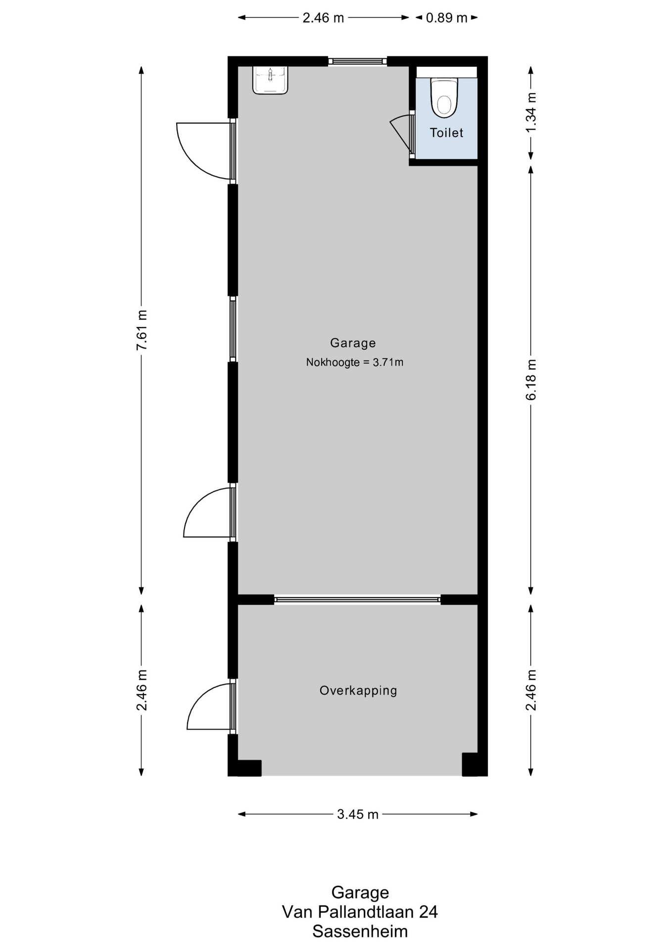
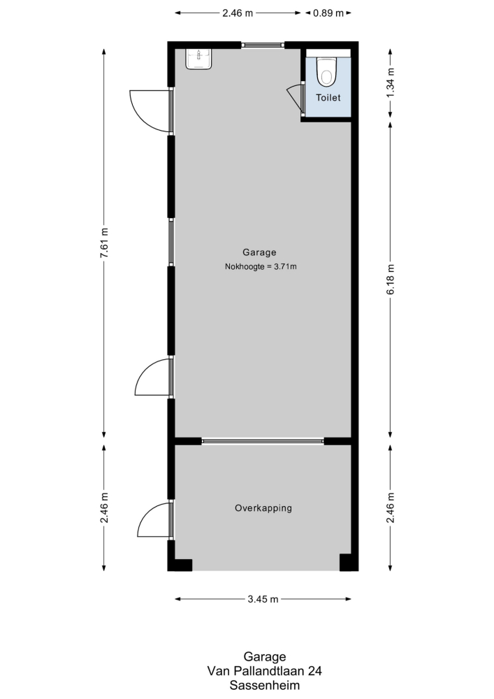
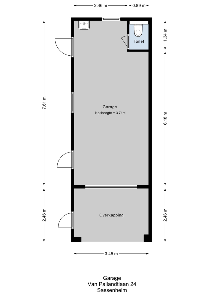
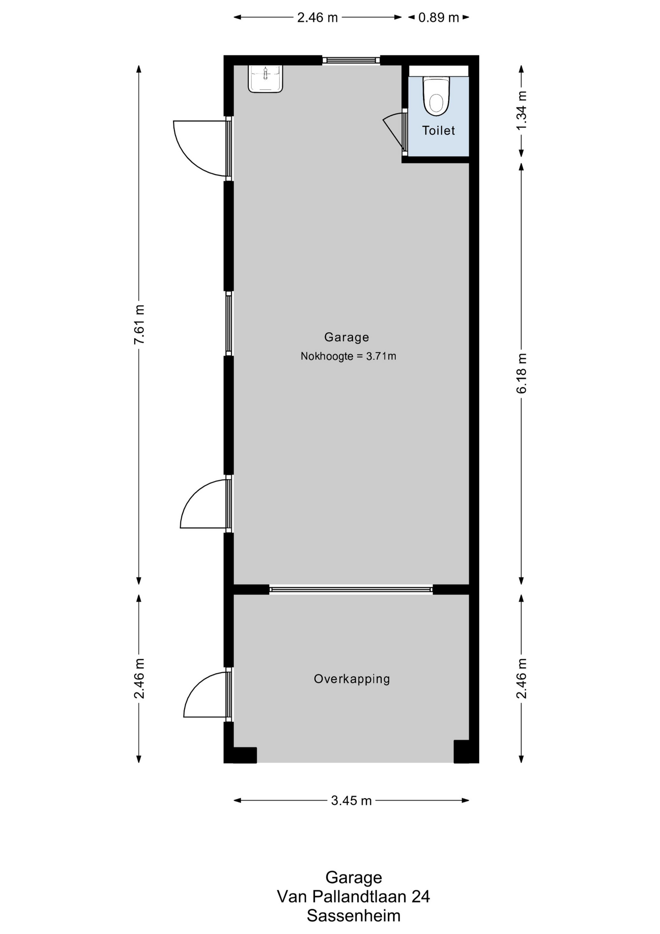
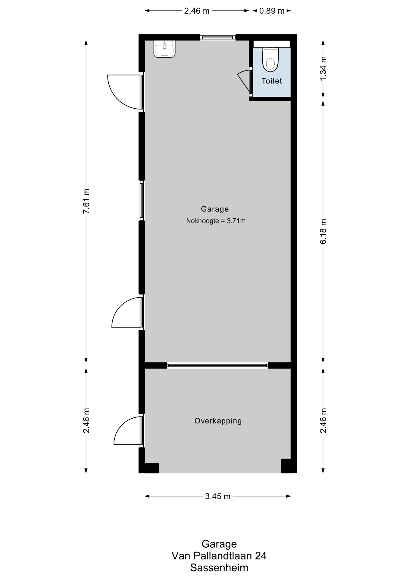
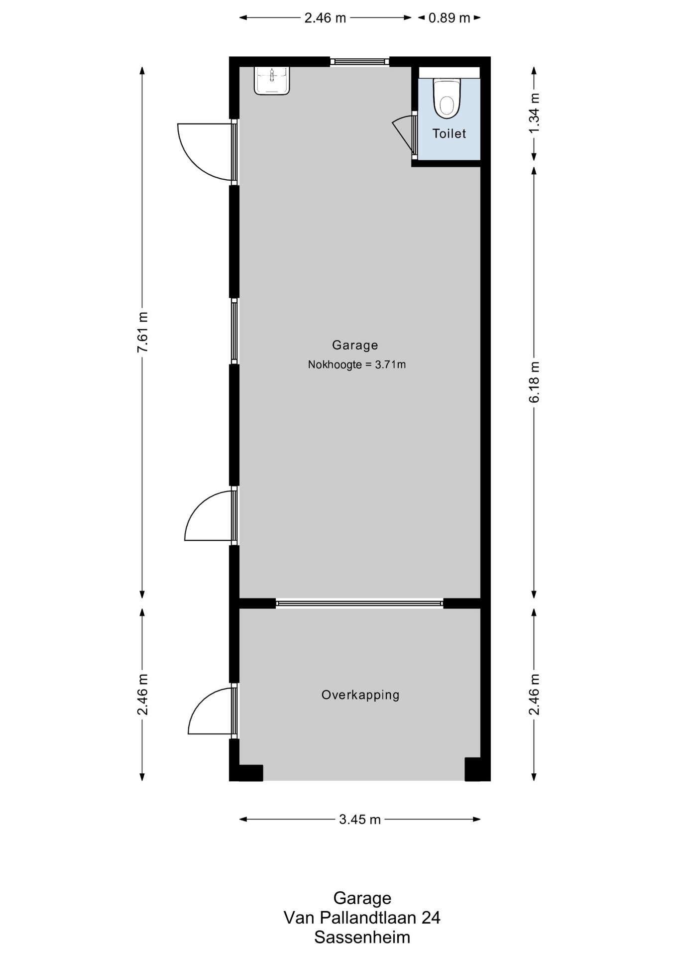
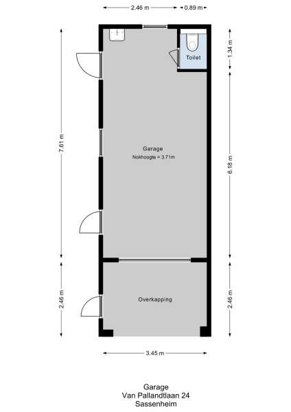
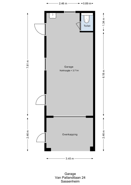
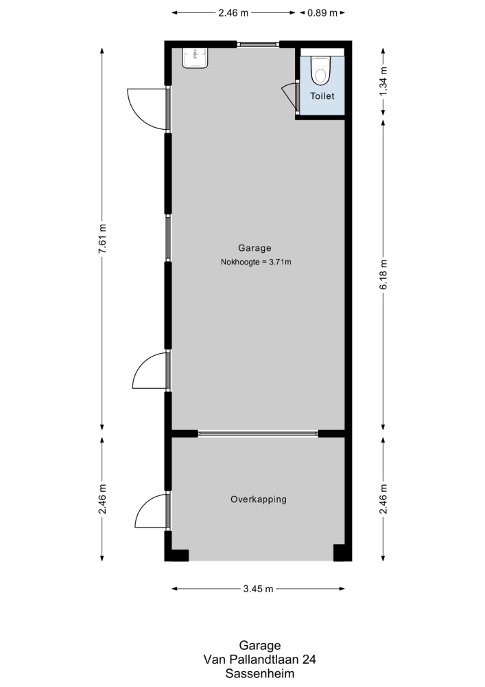
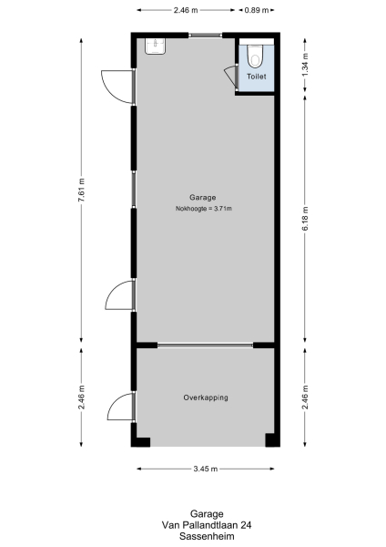
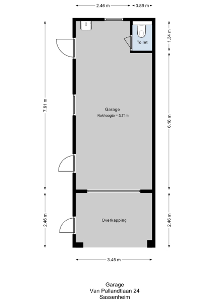
- 2 Garages
- 2 oprijlanen

Bouwjaar: 1951, woonoppervlakte: 199m², perceel: 1130m², garage 1: 26m², garage 2: 16m²

Bij aankomst valt direct de royale oprit op, die plaats biedt aan meerdere auto's. Daarnaast beschikt de villa over een ruime garage, perfect voor het stallen van uw voertuigen en extra opslagruimte. Het perceel strekt zich uit tot aan de achterliggende laan, de Willem Warnaarlaan, waar u ook een handige tweede oprit vindt met garage. Hierdoor heeft u altijd voldoende parkeergelegenheid en toegangsmogelijkheden.
We nemen u mee door de woning.

Begane grond:
Entree in zeer ruime hal, sfeervolle glas in lood ramen, toilet en verdiepte garderobe. De woonkamer is opgesteld in L-vorm, heeft veel lichtinval, sfeervolle gashaard en is voorzien van een prachtige houten parketvloer. De serre en tweede woonkamer zijn later aangebouwd waardoor er veel extra ruimte is gecreëerd welke meerdere mogelijkheden geven. De serre en tweede woonkamer zijn voorzien van een nette tegelvloer met vloerverwarming. De keuken is gelegen aan de voorzijde van de woning welke tevens toegang biedt tot de ruime bijkeuken.

1e Etage:
Ruime overloop met 2 slaapkamers gelegen aan de achterzijde, beide slaapkamers zijn ca 15m². De hoofdslaapkamer beschikt over een badkamer ensuite, welke is voorzien van een douche, toilet en wastafelmeubel. De andere slaapkamer beschikt over een heerlijk balkon gelegen op het zuidwesten. De tweede badkamer is toegankelijk vanuit de overloop en is voorzien van een ligbad, toilet, wastafelmeubel en douche. De vliering is bereikbaar door middel van een vlizotrap. Vanwege de nokhoogte van 2,3m zijn er mogelijkheden om in de toekomst hier een extra slaapkamers te creëren.

Kelder:
De woning is bijna in zijn geheel onderkelderd en de kelder is zowel toegankelijk vanuit de hal als de bijkeuken. Momenteel wordt deze ruimte gebruikt als waskamer en verder biedt de kelder juist veel mogelijkheden, zoals bijvoorbeeld het creëren van een; fitnessruimte, sauna, bioscoop of hobbykamer. Deze ruimtes kunnen op verschillende manieren worden aangepast om te voldoen aan uw specifieke wensen.

Tuin:
Fraai aangelegde tuin met twee oprijlanen, meerdere terrassen en biedt aan zee aan speelruimte voor de kinderen. De garage heeft een apart toilet en biedt genoeg ruimte voor de auto. Daarnaast is er nog een extra garage aan de achterzijde gelegen, welke een oppervlakte heeft van ca 16m².

Ligging:
Op slechts enkele minuten afstand vindt u het gezellige centrum van Sassenheim met veel winkels, scholen en restaurants. Bovendien zijn de belangrijke uitvalswegen zoals de A44 en N206 snel bereikbaar, wat zorgt voor een uitstekende verbinding met steden als Leiden, Amsterdam, Haarlem en Den Haag. Tevens is het openbaar vervoer in Sassenheim uitstekend geregeld, met snelle trein- en busverbindingen.

- Prachtig ruim perceel
- Glas in lood ramen
- Loopafstand centrum Sassenheim
- Veel mogelijkheden

Pim leidt je graag rond door de woning. Bel ons voor een afspraak!

Ontdek Sassenheim met Baerz, Uw Vertrouwde Personal Property Finder & Advisor

Discretie en diepgaande lokale kennis zijn essentieel aan de bovenkant van de markt. Off-market deals en vertrouwelijke onderhandelingen zijn de norm. Vertrouwde adviseurs bieden toegang tot exclusieve objecten, behartigen de belangen van kopers bij structuur en prijs, en geven inzicht in regelgeving en investeringspotentie. Hun begeleiding is onmisbaar voor optimale kansbenutting.

Speciale Kenmerken

Alarm system

Kenmerken

Overdracht
Vraagprijs
€ 1.295.000 k.k.
Status
beschikbaar
Aanvaarding
in overleg
Bouw
Soort woonhuis
Villa
Soort bouw
vrijstaande woning
Bouwjaar
1951
Energieklasse
E
Soort dak
samengesteld dak
Slaapkamers
2
Badkamers
2
Oppervlakten en inhoud
Woonoppervlakte
199 m2
Overige inpandige ruimte
94 m2
Gebouwgebonden buitenruimte
11 m2
Externe bergruimte
42 m2
Inhoud
980 m3
Perceeloppervlakte
1130 m2
faciliteiten
Alarminstallatie
Rookkanaal
Baerz & Co Property Brochure

Brochure

Video’s

Plattegronden

Wilbrink & v.d. Vlugt Makelaars

Heereweg 231
2161 BG Lisse

info@wilbrinkvandervlugt.nl
+31 252 41 90 49

www.onsaanbod.nl

Informatie / bezichtigingsaanvraag

Rick Broekhof profile image
Rick Broekhof
Real estate agent