Baerz & Co is een landelijk samenwerkingsverband van zorgvuldig geselecteerde boutique luxury makelaars. Samen vormen wij één netwerk, met één gedeeld aanbod. De woningen die u op onze website ziet, zijn afkomstig van alle aangesloten kantoren binnen Baerz & Co. Daardoor is niet ieder object rechtstreeks door ons kantoor in verkoop, maar door een gespecialiseerde collega binnen ons netwerk. Heeft u een woning gevonden die u aanspreekt en wilt u meer informatie? Dan brengen wij u graag persoonlijk in contact met de betreffende verkoopmakelaar, zodat u direct en zorgvuldig wordt begeleid.

VOORHOUT
Jacoba Van Beierenweg 136 a - 2215 KX
Nederland

Rick Broekhof profile image
Rick Broekhof
Real estate agent
€1.175.000 k.k.
Woonoppervlakte
422m2
Perceeloppervlakte
726m2
Slaapkamers
5

Omschrijving

Thuiskomen in een grote villa met mogelijkheden, een plek waar ruimte, rust, natuur en een vrij uitzicht samenkomen.
• 422m² woonoppervlakte
• Volledige privacy en vrijheid
• Met lange oprijlaan en eigen parkeerplaatsen
• Dubbele bewoning mogelijk
• Vijf ruime slaapkamers

Bouwjaar 1975, woonoppervlakte 422m², perceeloppervlakte 726m², inhoud 1387m³, berging 7m²

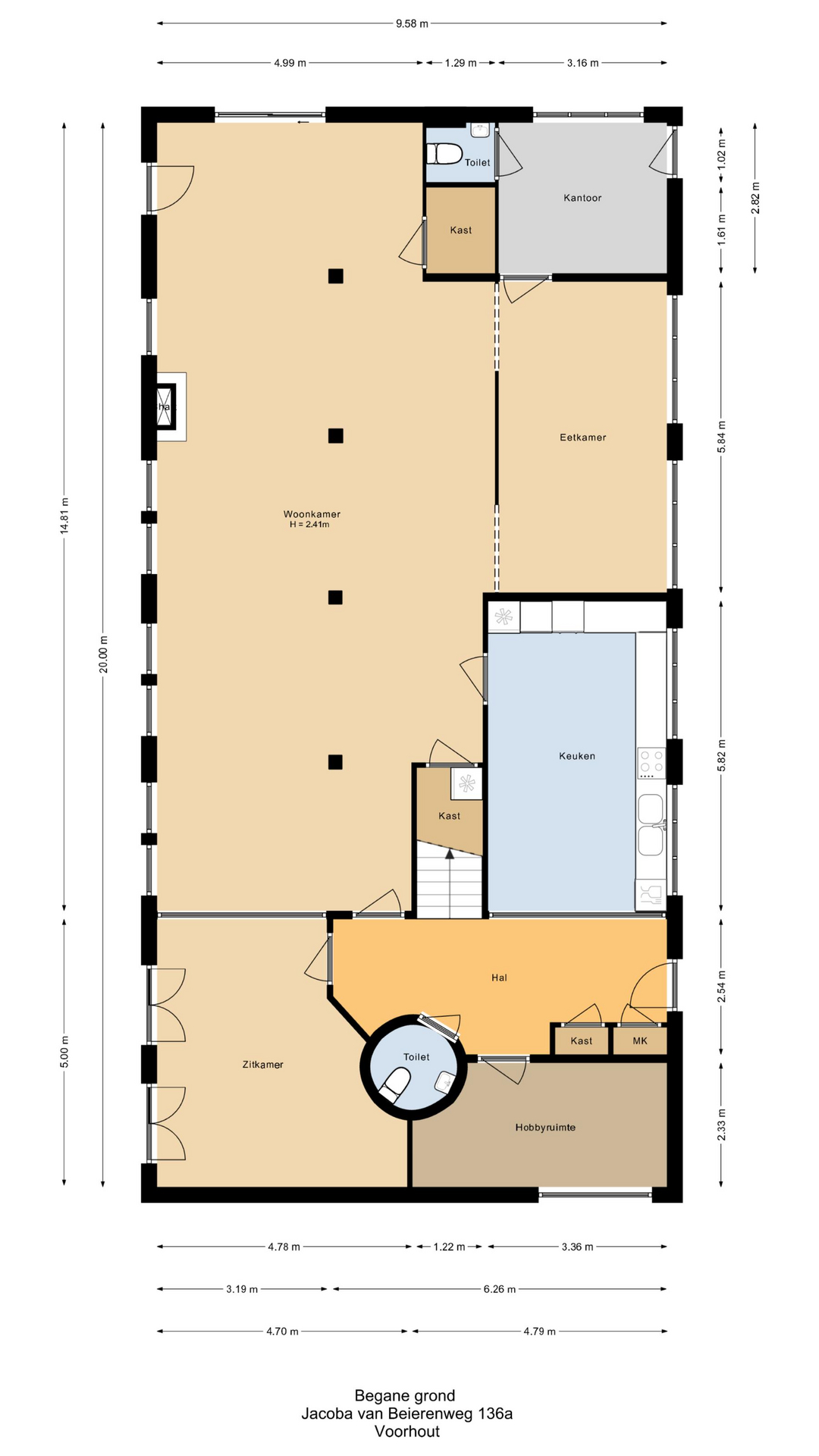
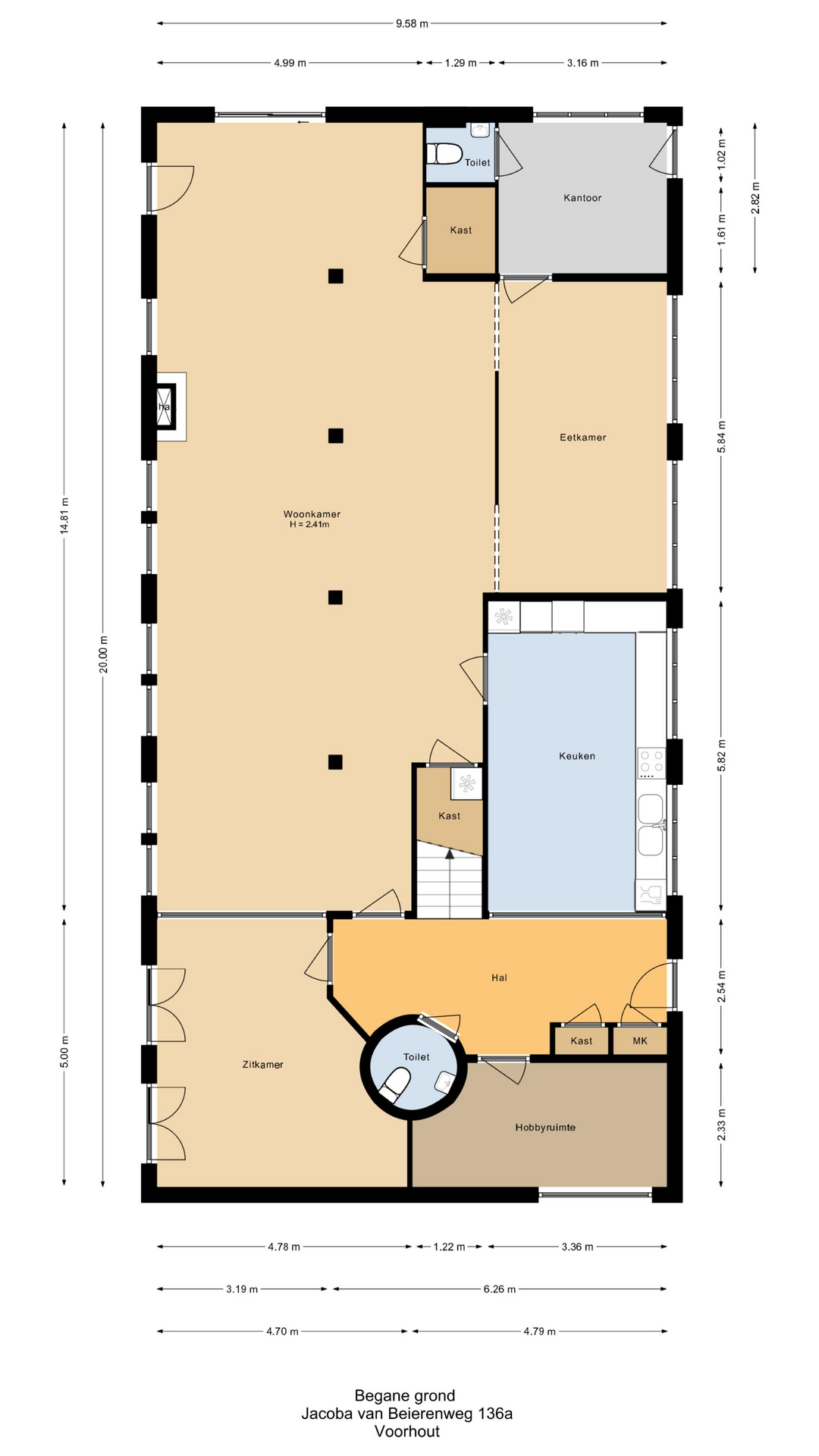
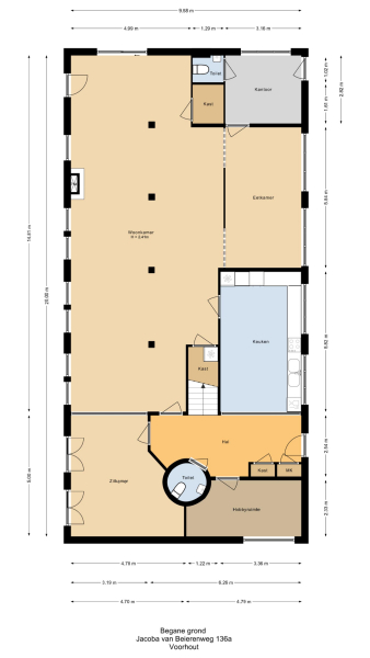
Begane grond:
Bij binnenkomst via de ruime entree met garderobe, toilet en kastenwand betreed je de royale woonkamer met open haard en meerdere zithoeken.
Dankzij de grote ramen geniet je hier van veel lichtinval en een prachtig uitzicht.
Aangrenzend bevindt zich een aparte hobbykamer en een TV-kamer met zicht op de tuin. De ruime keuken, voorzien van alle benodigde apparatuur. Vanuit de keuken kijk je uit op zowel het binnenplein als op de weilanden.

Daarnaast is er een aparte eetkamer. Aan de voor- en achterzijde van de woning zijn ruimtes die uitstekend geschikt zijn voor een kantoor of praktijk aan huis, elk met eigen entree. Hier bevindt zich ook een tweede toilet.
De begane grond is verder afgewerkt met een sfeervolle parketvloer en authentieke abdijplavuizen.

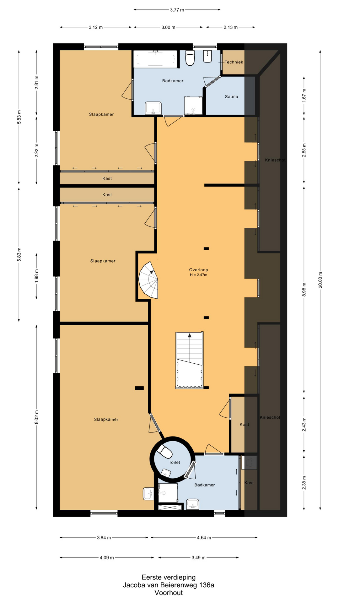
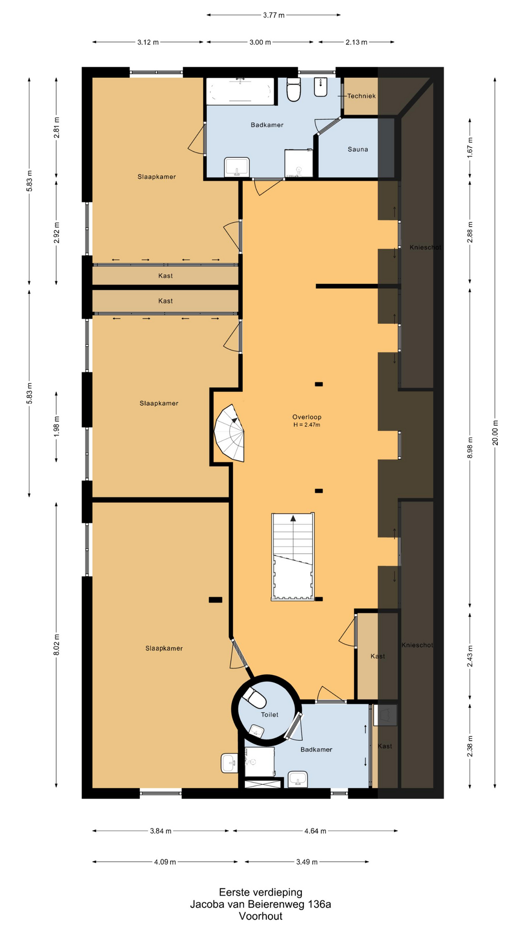
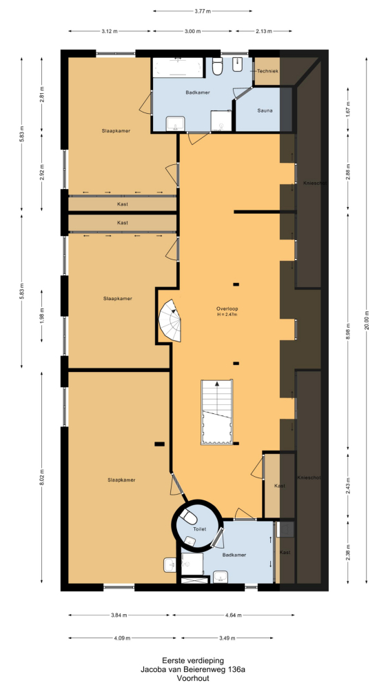
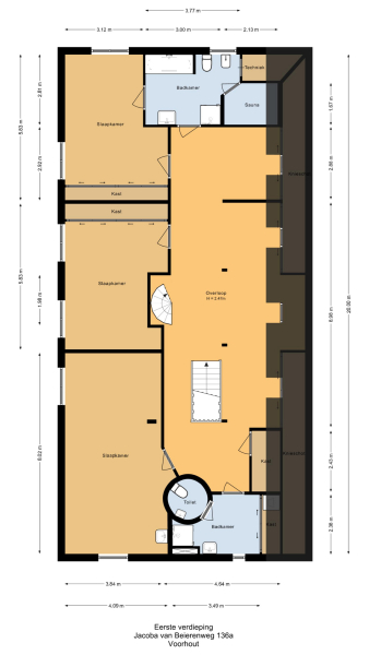
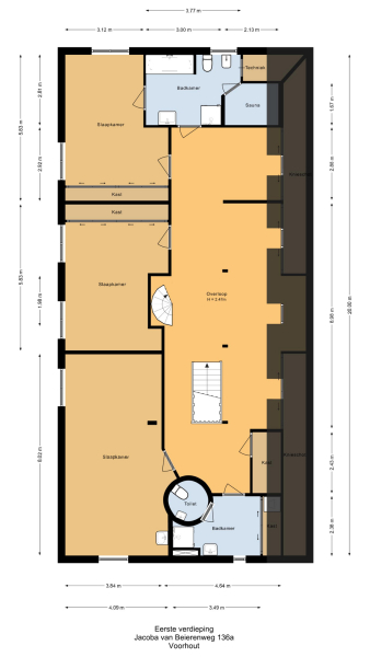
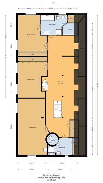
1e Etage:
Via de trap in de hal bereik je de ruime overloop op de eerste verdieping. Hier bevinden zich drie royale slaapkamers en twee badkamers.
De badkamer aan de achterzijde beschikt over een kleine sauna. De tweede badkamer is uitgerust met een inloopdouche, aansluiting voor wasapparatuur en een apart toilet.
De slaapkamers zijn licht en ruim, waarvan één voorzien van airconditioning. Indien gewenst zijn de kamers te splitsen, zodat er extra slaapkamers kunnen worden gecreëerd. De overloop biedt bovendien nog ruimte voor een extra kamer of werkplek.

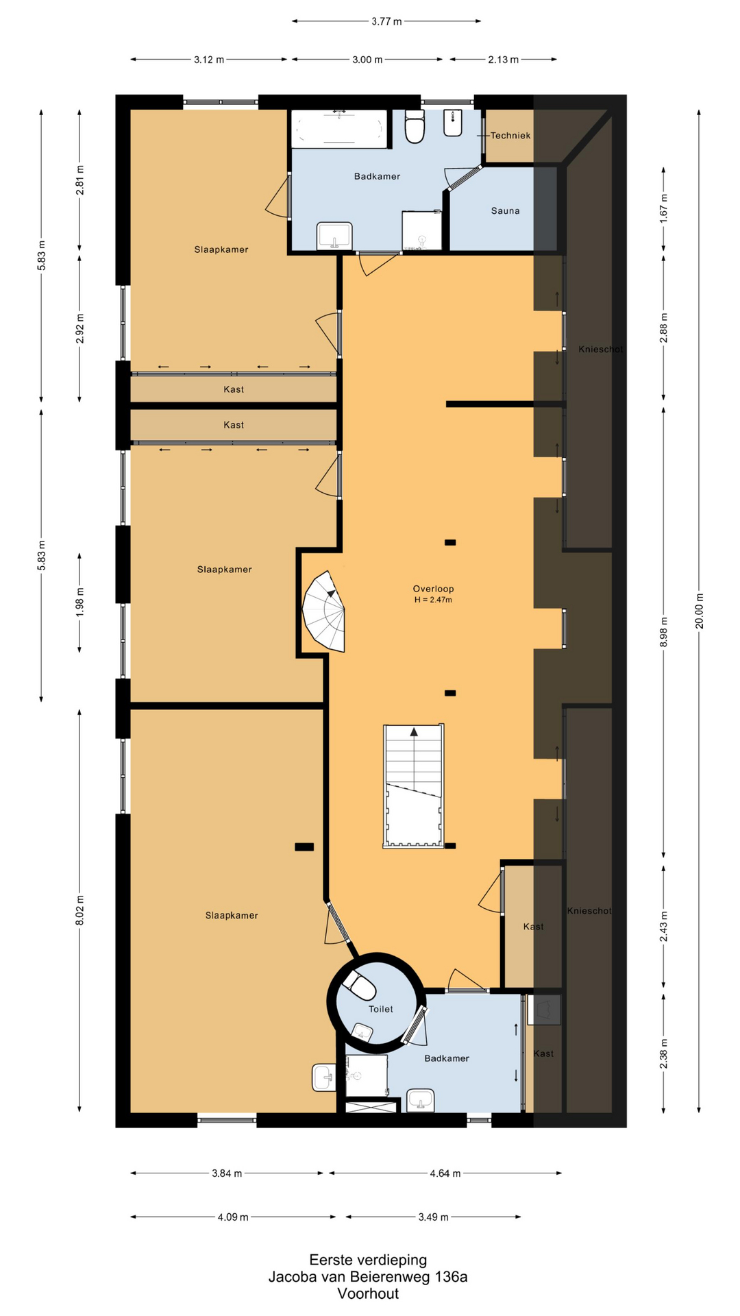
2e Etage:
Via de spiltrap bereik je de tweede verdieping. Hier zijn nog twee extra slaapkamers, uitstekend geschikt als gastenkamer of thuiskantoor. Daarnaast is er volop bergruimte aanwezig.

Tuin:
Rondom de woning ligt een royale tuin met zowel zon- als schaduwplekken. Geniet hier van de rust en privacy, of organiseer gezellige zomeravonden bij de gemetselde barbecue. Een aparte berging biedt ruimte voor tuinbenodigdheden.
Parkeren is mogelijk op eigen terrein, met ruimte voor meerdere auto’s.

Mogelijkheden:
Dankzij de constructie is de woning relatief eenvoudig aan te passen of te verbouwen. Het pand is in het verleden deels gebruikt als woning en deels als kantoor, waardoor dubbele bewoning of een combinatie van wonen en werken uitstekend mogelijk is.

De villa is gelegen in het pittoreske Voorhout, midden in de Bollenstreek. Hier woon je rustig en vrij, met prachtig uitzicht over de weilanden, maar toch dicht bij alle voorzieningen. Het dorp is eenvoudig per fiets bereikbaar en beschikt over een treinstation in het centrum.

Bijzonderheden:
- Grote woonkamer met veel licht
- Vrij gelegen maar nabij het dorp
- Geschikt voor zonnepanelen
- Airconditioning in de slaapkamer (april 2024)
- Mogelijkheid voor bedrijf aan huis
- Glasvezel aanwezig
- Twee cv ketels (2021 + 2024)
- Sauna aanwezig + 4 toiletten
- Treinstation in het centrum
Bel het kantoor van Wilbrink & v.d. Vlugt voor een afspraak en ontdek zelf de eindeloze mogelijkheden van jouw nieuwe thuis. Rick Broekhof laat je deze woning graag zien!

Kenmerken

Air conditioning
Overdracht
Vraagprijs
€ 1.175.000 k.k.
Status
beschikbaar
Aanvaarding
in overleg
Bouw
Soort woonhuis
Villa
Soort bouw
vrijstaande woning
Bouwjaar
1975
Energieklasse
C
Soort dak
zadeldak
Slaapkamers
5
Badkamers
2
Oppervlakten en inhoud
Woonoppervlakte
422 m2
Overige inpandige ruimte
0 m2
Externe bergruimte
7 m2
Inhoud
1387 m3
Perceeloppervlakte
726 m2
faciliteiten
Mechanische ventilatie
Tv kabel
Airconditioning
Rookkanaal
Sauna
Glasvezel kabel
Natuurlijke ventilatie
Vrij uitzicht
Beschutte ligging
Landelijk gelegen
Baerz & Co Property Brochure

Brochure

Video’s

Video Jacoba van Beierenweg 136 a

Plattegronden

Wilbrink & v.d. Vlugt Makelaars

Heereweg 231
2161 BG Lisse

info@wilbrinkvandervlugt.nl
+31 252 41 90 49

www.onsaanbod.nl

Informatie / bezichtigingsaanvraag

Rick Broekhof profile image
Rick Broekhof
Real estate agent

Een luxe woning kopen in Voorhout

Voorhout is een ingetogen, hoogwaardige gemeenschap met luxe, natuurschoon en een bevoorrechte ligging vlak bij toplocaties in Nederland. De internationale vastgoedservice maakt Voorhout geliefd bij kritische bewoners.