Ons kantoor is lid van Baerz & Co Luxury Homes; een internationaal platform dat exclusieve woningmakelaars met elkaar verbindt. Neem contact op met ons secretariaat voor meer informatie over het landelijke aanbod, waarvan u hieronder een selectie kunt bekijken.

AMSTERDAM, NH
Boymansweg 17 - 1064 WR
荷兰

Niels Eering profile image
Niels Eering
Real Estate Agent
€850,000 k.k.
生活区
167m2
地块大小
118m2
卧室
4

描述

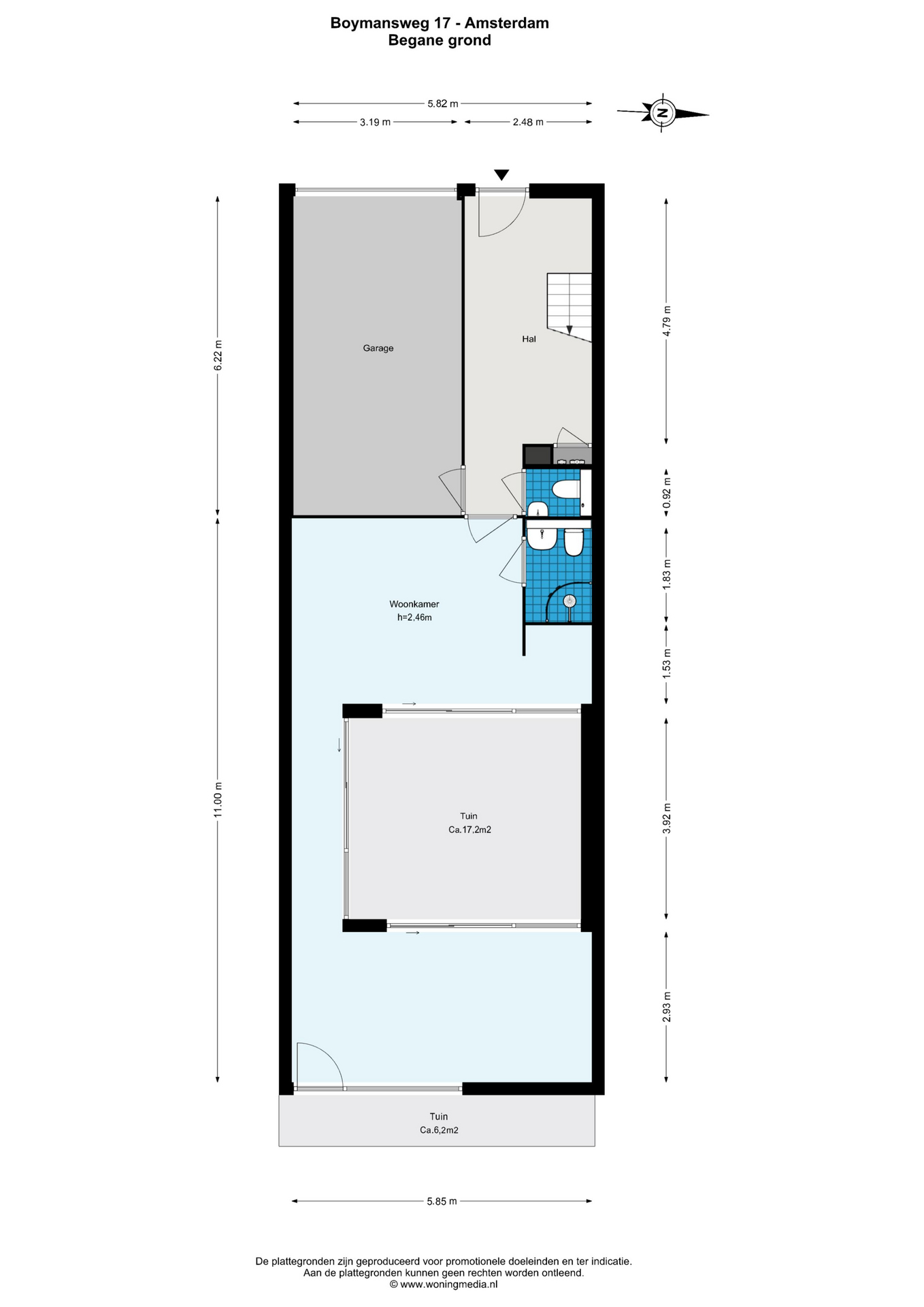
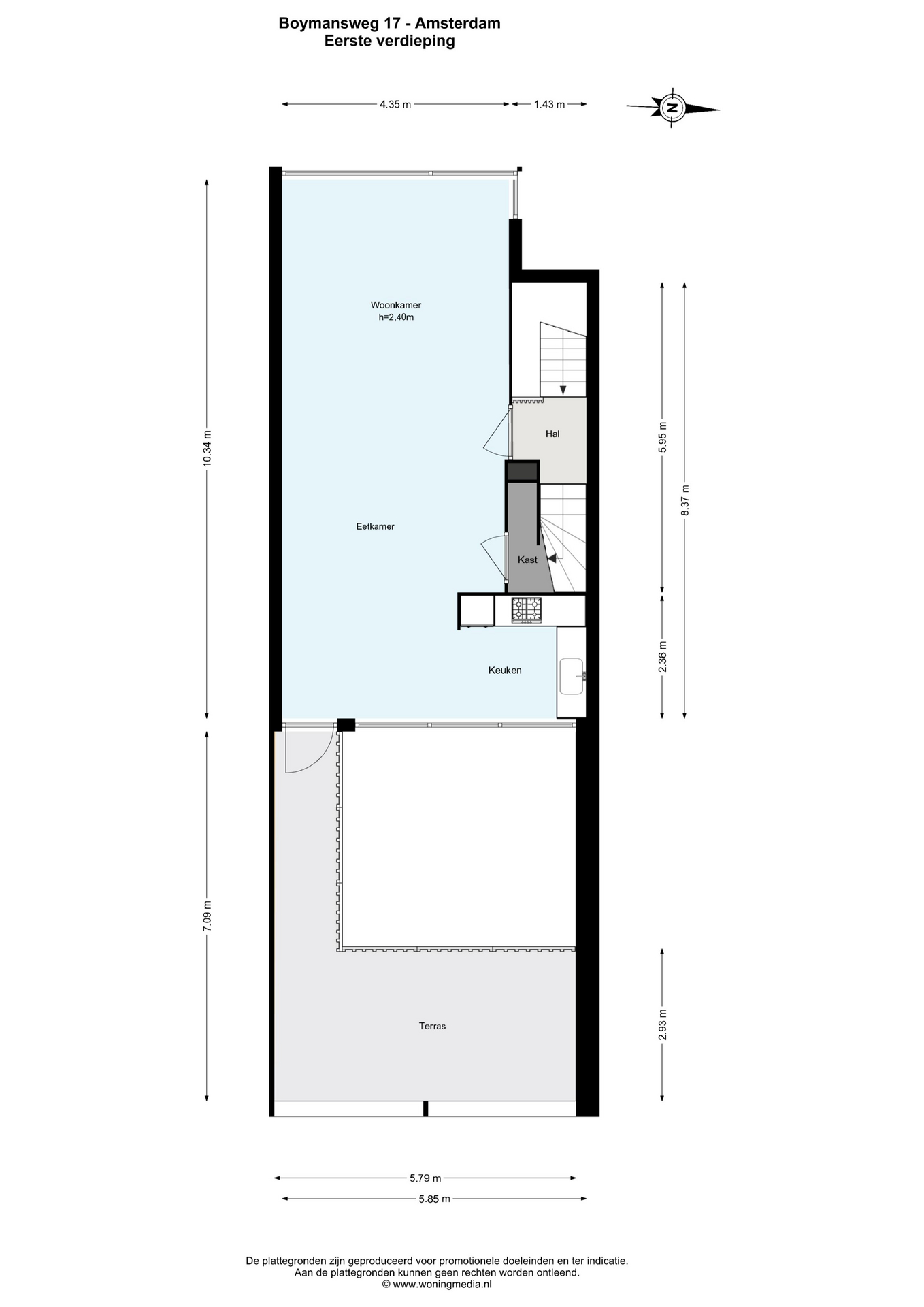
阿姆斯特丹城市车库住宅于斯洛特公园与斯洛特湖宁静宽广的对面,展现出光线、空间与灵活性的卓越融合。此167平方米居所专为现代都市生活而设,绿意、水景与便捷的城市通达性相得益彰。四间卧室分布于三层楼,布局通透,氛围开放明朗,整体结构兼顾家庭生活与居家办公的多元需求。

入户一层设有21平方米的车库及次入口,同时保障隐私与功能性,十分适合设置家庭办公或工作室。本层中央为一座17平方米的私人天井花园,静谧而独立,四周推拉门引入自然采光。开阔的二楼客厅被大面积窗户点亮,自然融入开放式厨房,并连通一座46平方米的屋顶露台——宽敞而宜人的户外空间,适宜款待宾客或静心休憩。

顶层安置三间额外卧室,其中一间享有西向阳台,可远眺树梢与城市脉动。整栋房产以卓越的隔热性能、双层玻璃和A能效等级著称,机械通风系统、高档细节与宽绰空间共同营造出全年舒适体验。

阿姆斯特丹市中心与Oud-West骑行数分钟即达,主要道路和车站近在咫尺。周边配套包括儿童游乐场、咖啡馆、商店及学校,私人及访客停车设施布局合理。此出售的现代奢华别墅,立于都市活力与自然宁静的交界,为追求品质生活者提供雅致居所,直达静谧公园绿地。

与 Baerz 一起探索 Amsterdam,您值得信赖的私人房产顾问和搜寻专家

驾驭阿姆斯特丹高端市场需深厚本地洞察、严密保密与谈判专业技巧。顶尖顾问可助您获取私密房源,梳理细致产权规定,并洞察那些罕见进入市场的隐藏机会。顾问团队严苛资产甄别与代表,提升协商地位、确保交易顺畅并全程保障您的隐私。

避免常见陷阱

国际买家经常浪费大量时间浏览重复、过时或误导性的在线房源,尤其是因为近 30% 的豪华物业根本不会公开上市。
卖方代理代表卖方的利益,而非您的利益;甚至仅仅对房产进行咨询,都可能导致中介在未经您同意的情况下将您登记为他们的“客户”。
通过 Baerz Property Finders & Advisors,您可以完全避免这些问题。
我们只代表您,提供独立建议、透明指导,并让您接触所有可售房源,包括私人及未上市的独家机会,这些往往不会被他人看到。

想知道如何获得您自己的私人房产顾问吗?联系我们,了解我们如何代表您的利益并为您打开整个市场。

特点

所有权转让
要价
€ 850.000 k.k.
状态
beschikbaar
接受
in overleg
建筑
房屋类型
Eengezinswoning
建筑类型
tussenwoning
建筑时期
1997
屋顶类型
plat dak
卧室
4
浴室
1
表面积和体积
生活区
167 m2
其他室内空间
21 m2
附属于建筑的外部空间
29 m2
体积(立方米)
607 m3
地块大小
118 m2
设施
Mechanische ventilatie
Tv kabel
Schuifpui
In woonwijk
Baerz & Co Property Brochure

宣传册

视频

11 Makelaars - Amsterdam Noord

Mt. Lincolnweg 36 - 617
1033SN Amsterdam

info@11makelaars.nl
+31 20 20 50 208

www.11makelaars.nl

信息/查看请求

Niels Eering profile image
Niels Eering
Real Estate Agent