Ons kantoor is lid van Baerz & Co Luxury Homes; een internationaal platform dat exclusieve woningmakelaars met elkaar verbindt. Neem contact op met ons secretariaat voor meer informatie over het landelijke aanbod, waarvan u hieronder een selectie kunt bekijken.

AMSTERDAM
Schubertstraat 40 H - 1077 GV
荷兰

Sander Bovenkerk profile image
Sander Bovenkerk
Real estate agent
€2,500,000 k.k.
居住面积
277m2
地块大小
N/A
卧室
5

描述

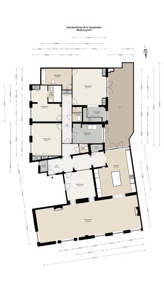
这套位于阿姆斯特丹南区的底层公寓,提供277平方米经过精心重塑的雅致生活空间,将经典细节与现代奢华升级巧妙融合。五间宽敞卧室与三间高雅浴室,兼顾开阔感与私密性。客厅以温润的匈牙利鱼骨拼地板和两座壁炉为特色,自然过渡至定制厨房,厨房配备大理石台面、手工橱柜和甄选嵌入式电器。每个细节都流露出低调的高级感与舒适氛围。

法式落地门引入充足阳光,通向约36平方米、朝西南的花园,将空间感延伸至户外。公寓布局包括多功能玄关、可作书房或次客厅的空间,以及下沉一层的两间额外房间(净高2.23米),为居住和储物带来灵活性。玄关、浴室和厨房均配有地暖,提升日常舒适度。

这套住宅坐落在绿树成荫的街道上,承载着亨德里克·彼得鲁斯·贝拉赫(Hendrik Petrus Berlage)的建筑影响,展现出阿姆斯特丹南区的理想韵律。Beethovenstraat商铺与咖啡馆、知名国际学校、如Vondelpark等绿意公园及优越交通,成就了一种注重私密性和便捷流动性的都市生活方式。持证安全停车及健康的业主协会完善了这一独特臻品。对于寻求阿姆斯特丹南区豪华公寓的购房者而言,此物业融合了地段、历史渊源与精致设计。

与Baerz一起探索Amsterdam,您值得信赖的个人房产搜索和顾问

驾驭阿姆斯特丹高端市场需深厚本地洞察、严密保密与谈判专业技巧。顶尖顾问可助您获取私密房源,梳理细致产权规定,并洞察那些罕见进入市场的隐藏机会。顾问团队严苛资产甄别与代表,提升协商地位、确保交易顺畅并全程保障您的隐私。

特点

所有权转让
要价
€ 2.500.000 k.k.
状态
verkocht onder voorbehoud
接受
in overleg
建筑
房屋类型
Dubbel benedenhuis
建筑类型
appartement
建造时期
1931
能源评级
E
屋顶类型
zadeldak
卧室
5
浴室
3
表面积和体积
居住面积
277 m2
其他室内空间
0 m2
体积(立方米)
1087 m3
设施
Tv kabel
Natuurlijke ventilatie
In woonwijk
Baerz & Co Property Brochure

宣传册

视频

户型图

Heeren Makelaars

Stadionweg 75
1077 SE Amsterdam

info@heerenmakelaars.nl
+31 204702255

www.heerenmakelaars.nl

信息/查看请求

Sander Bovenkerk profile image
Sander Bovenkerk
Real estate agent