Ons kantoor is lid van Baerz & Co Luxury Homes; een internationaal platform dat exclusieve woningmakelaars met elkaar verbindt. Neem contact op met ons secretariaat voor meer informatie over het landelijke aanbod, waarvan u hieronder een selectie kunt bekijken.

KATWIJK
Mallebrugge 1 - 2223 BV
荷兰

Frits Wilbrink profile image
Frits Wilbrink
Real estate agent
€1,850,000 k.k.
居住面积
275m2
地块大小
710m2
卧室
6

描述

Katwijk别墅临水而建,配备私人船坞,巧妙平衡了空间、采光与低调奢华。这座六卧室别墅拥有275平方米居住面积,静谧地坐落于友好的住宅区内,步行即可抵达水岸,尽享私密氛围。2017年,经精心翻新,住宅实现了现代设计与温馨舒适的无缝融合。全屋采用地源热泵的地暖与制冷系统和全面隔热保温,荣获A类能效评级。

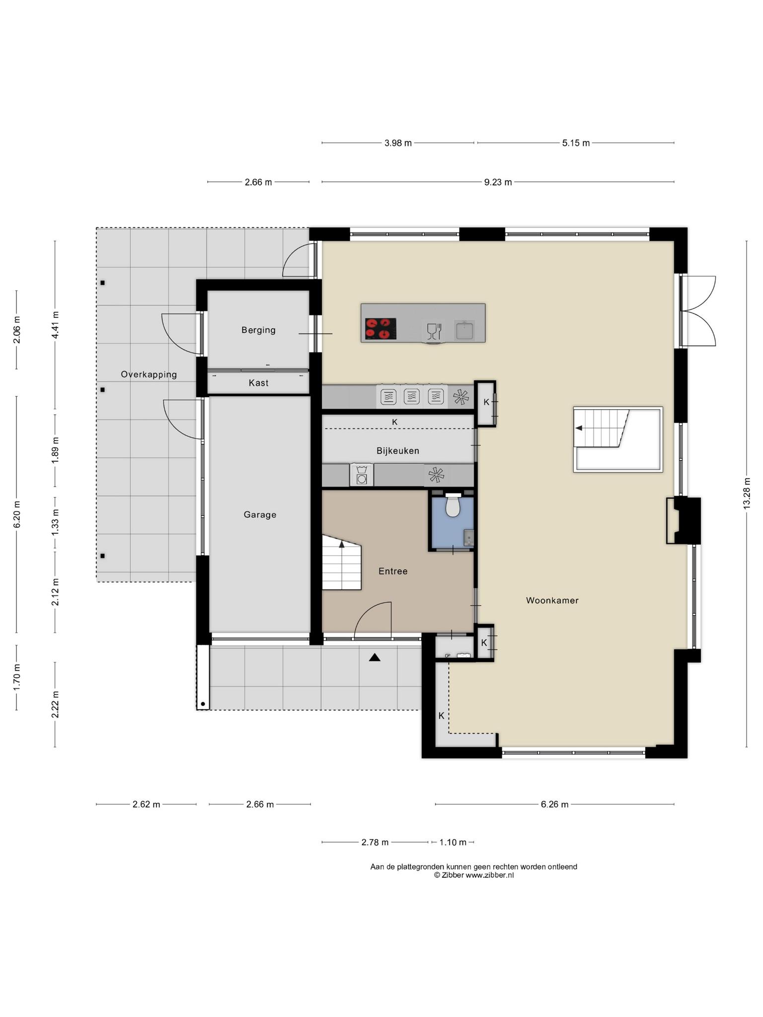
玄关处采光充足,配以醒目的楼梯,通向宽敞的客厅。落地大窗、橡木地板和朝南露台营造优雅开阔氛围。相邻的厨房采用现代化装修设计,配备料理岛,聚会空间充裕,并可直通实用间。多功能地下室、分布于上层的六间卧室、两间高雅浴室以及专用储藏阁楼,赋予住宅高效实用的生活节奏。

室外生活在细致规划的花园中展开,拥有多个露台、成熟绿篱及户外淋浴。私人船坞便于通往运河,非常适合在Oegstgeester运河及更远水域泛舟游览。此外,配有车库、车棚和安全停车位,生活便利安然。日常生活配套及充满活力的Katwijk海滩近在咫尺,这座待售奢华别墅成就少有的尊贵生活方式。

与Baerz一起探索Katwijk,您值得信赖的个人房产搜索和顾问

在卡特韦克高阶地产领域,私密性、本地洞察力及卓越谈判能力不可或缺。顾问可提供罕见的专属资源、协调复杂交易并全权维护客户利益。他们熟知政策细节,能够联结建筑师和各类专业服务者,助力顺利购置与长久满意。

特点

报警系统
空调
所有权转让
要价
€ 1.850.000 k.k.
状态
beschikbaar
接受
in overleg
建筑
房屋类型
Villa
建筑类型
vrijstaande woning
建造时期
2005
能源评级
A+
屋顶类型
samengesteld dak
卧室
6
浴室
2
表面积和体积
居住面积
275 m2
其他室内空间
17 m2
附属于建筑的外部空间
68 m2
体积(立方米)
1082 m3
地块大小
710 m2
设施
Mechanische ventilatie
Alarminstallatie
Tv kabel
Airconditioning
Rookkanaal
Dakraam
Glasvezel kabel
Natuurlijke ventilatie
Aan water
Aan rustige weg
In centrum
In woonwijk
Beschutte ligging
Aan vaarwater
Baerz & Co Property Brochure

宣传册

视频

Wilbrink & v.d. Vlugt Makelaars

Heereweg 231
2161 BG Lisse

info@wilbrinkvandervlugt.nl
+31 252 41 90 49

www.onsaanbod.nl

信息/查看请求

Frits Wilbrink profile image
Frits Wilbrink
Real estate agent