Ons kantoor is lid van Baerz & Co Luxury Homes; een internationaal platform dat exclusieve woningmakelaars met elkaar verbindt. Neem contact op met ons secretariaat voor meer informatie over het landelijke aanbod, waarvan u hieronder een selectie kunt bekijken.

VALKENBURG
Voorschoterweg 71 B - 2235 SG
荷兰

Frits Wilbrink profile image
Frits Wilbrink
Real estate agent
€1,175,000 k.k.
居住面积
162m2
地块大小
655m2
卧室
3

描述

这座位于Valkenburg的联排别墅毗邻水岸,营造出静谧的滨水生活氛围,坐落于兰斯塔德都市圈的中心地带。物业占地655平方米,拥有162平方米精致室内空间,由建筑师设计的庭院与十米长的私人码头贯穿其间,直接通达莱顿和卡格湖区。您可从阳光充足的后花园步入水边,将泛舟融入日常节奏,步行即可抵达Valkenburg湖。

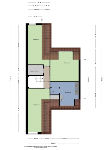
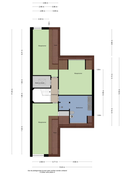
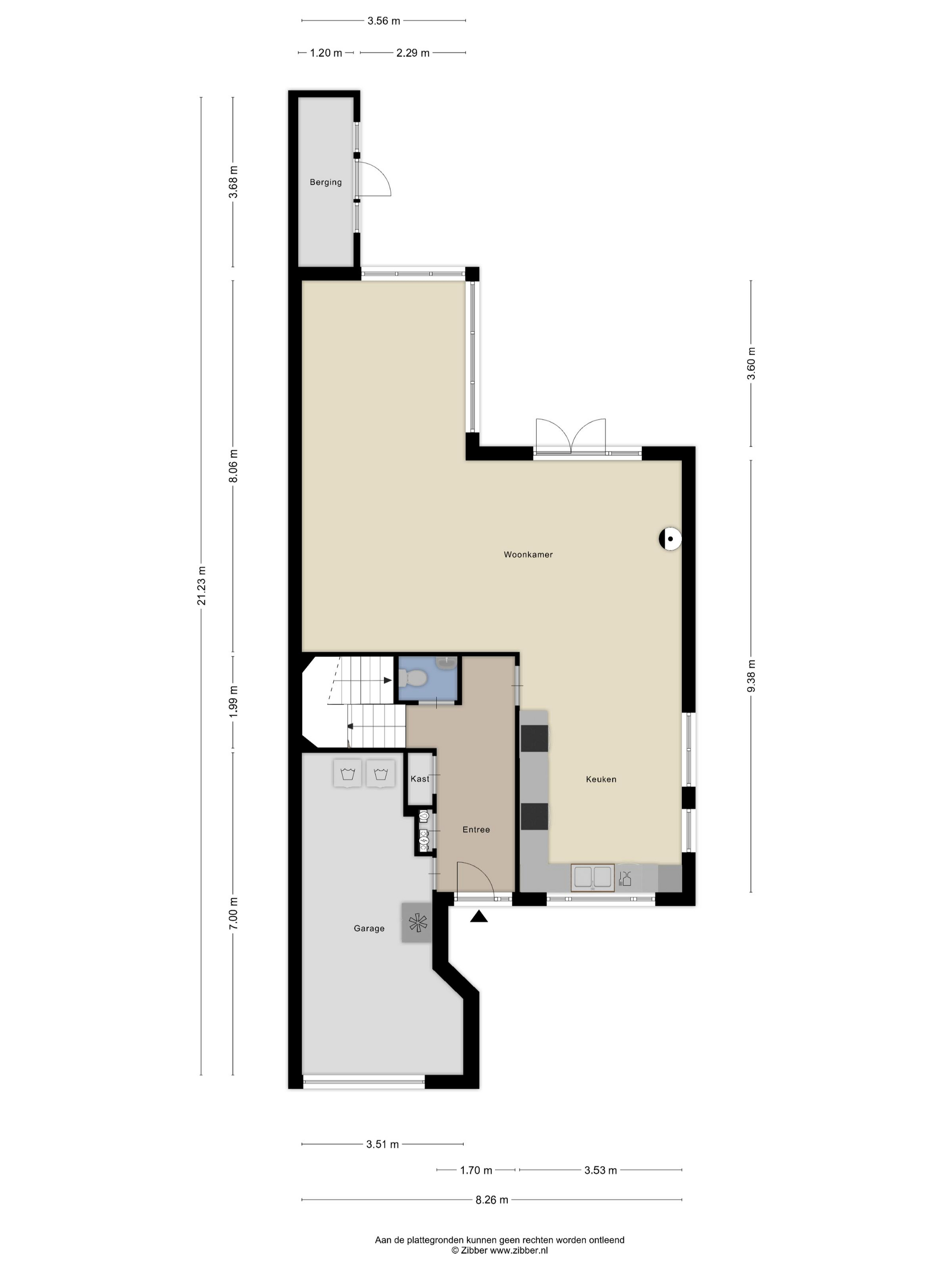
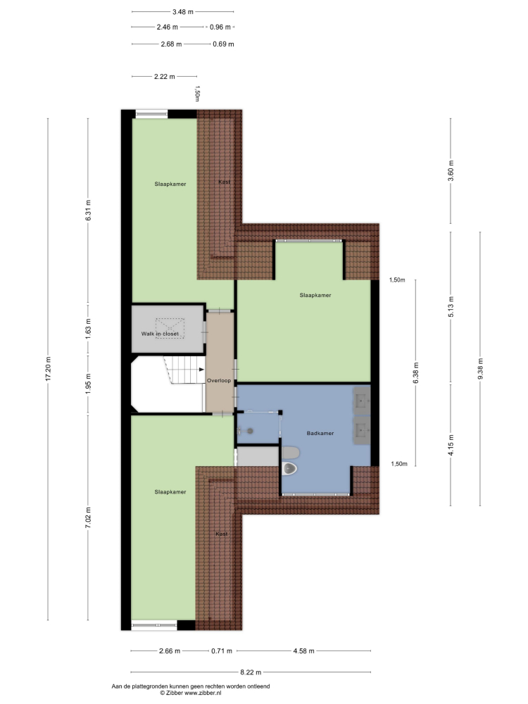
别墅内部以宽敞的门厅为起点,引向通透明亮的客厅。大面积落地窗与法式双开门,将花园与水景尽收眼底,并配有燃气壁炉与地暖系统贯穿整个底层。厨房兼具操作与社交功能,相连车库配有电动门及专属设施接口。楼上三间卧室和配备地暖与步入式淋浴的2022年奢华卫浴形成私密空间。步入式衣帽间和宽敞阁楼增加了灵活性,未来可轻松增设第四间卧室。

前后花园景观精致,兼有阳光与阴影,设有自动喷灌系统、水畔储物间,以及可容纳三辆车的私密停车空间。能源标签B,HR++级玻璃及安全细致的装饰,为居住带来舒适与安心。该豪华别墅待售于Valkenburg,距莱顿市中心数分钟路程,邻近国际学校,距阿姆斯特丹、史基浦机场及海牙均在二十分钟车程之内,为家庭与职业生活提供无缝衔接。在这里,空间与光线以及水的静谧存在,共同定义了理想人居。

与Baerz一起探索Valkenburg,您值得信赖的个人房产搜索和顾问

考虑到本地丰富的建筑风格和保护条例,以及非公开市场机会,经验丰富的顾问不可或缺。他们了解社区历史与潜力,助您获取稀缺房源。其谈判能力和与文化遗产专家的联系让每笔交易都更加顺畅并具策略性。

特点

报警系统
所有权转让
要价
€ 1.175.000 k.k.
状态
beschikbaar
接受
in overleg
建筑
房屋类型
Villa
建筑类型
halfvrijstaande woning
建造时期
1992
能源评级
B
屋顶类型
samengesteld dak
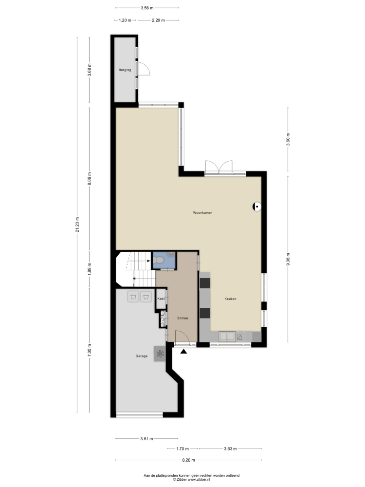
卧室
3
浴室
1
表面积和体积
居住面积
162 m2
其他室内空间
43 m2
体积(立方米)
760 m3
地块大小
655 m2
设施
Mechanische ventilatie
Alarminstallatie
Tv kabel
Buitenzonwering
Rookkanaal
Aan water
Beschutte ligging
Buiten bebouwde kom
Aan vaarwater
Baerz & Co Property Brochure

宣传册

视频

户型图

Wilbrink & v.d. Vlugt Makelaars

Heereweg 231
2161 BG Lisse

info@wilbrinkvandervlugt.nl
+31 252 41 90 49

www.onsaanbod.nl

信息/查看请求

Frits Wilbrink profile image
Frits Wilbrink
Real estate agent