Ons kantoor is lid van Baerz & Co Luxury Homes; een internationaal platform dat exclusieve woningmakelaars met elkaar verbindt. Neem contact op met ons secretariaat voor meer informatie over het landelijke aanbod, waarvan u hieronder een selectie kunt bekijken.

WILNIS
Waterpeil 52 - 3648 LH
荷兰

John Korver profile image
John Korver
Real estate agent
€1,100,000 k.k.
生活区
195m2
地块大小
290m2
卧室
4

描述

这座位于Wilnis的联排别墅,是De Maricken全新住宅区中当代生活的典雅诠释。别墅专为追求低调奢华与私密的居者而设计,195平方米的宜居空间自入户之际光线与通透感即十分突出。建筑格局以清晰流畅为主线,辅以高品质装饰、全屋地暖和空调系统。四间宽敞卧室,轻松可布局为五间,满足家庭起居或多功能工作区的不同需求,与两间兼具水疗氛围的精致卫浴相得益彰。

厨房针对严谨烹饪需求配置,配备高档家电与充裕储藏空间。客厅定制墙体收纳柜及由Eric Kuster设计的生物乙醇壁炉,彰显国际化优雅格调。法式双扇门通向朝西的花园、露台与配有一体化灯光的廊亭,生活体验无缝延展至户外。此处私密性极佳,无直接视线穿透,园林中设有嵌入式蹦床、多处露台及全自动灌溉系统。

可持续发展理念贯穿其间,配备20块太阳能板、热泵、热回收新风系统与A级能效认证。诸多贴心细节体现在:私家地块可停放两车、设有电动汽车充电桩,储物空间与自动化设施一应俱全。周边环境亦尽显便利:绿荫大道、家庭友好型游乐区、学校、商店,畅享通往阿姆斯特丹、乌得勒支及史基浦机场的优质交通。对于追求拎包入住生活方式的人士而言,这座待售Wilnis豪华别墅将前瞻高效、持久舒适与安静优雅融为一体。

与 Baerz 一起探索 Wilnis,您值得信赖的私人房产顾问和搜寻专家

Wilnis封闭且讲究的市场环境,需要超越一般中介服务的专业能力。私密房源获取、本地行情洞察和法律流程经验,保障客户获得理想交易。值得信赖的顾问负责甄选当地专家,全程把控,高额资产交易亦能安全无忧。

避免常见陷阱

国际买家经常浪费大量时间浏览重复、过时或误导性的在线房源,尤其是因为近 30% 的豪华物业根本不会公开上市。
卖方代理代表卖方的利益,而非您的利益;甚至仅仅对房产进行咨询,都可能导致中介在未经您同意的情况下将您登记为他们的“客户”。
通过 Baerz Property Finders & Advisors,您可以完全避免这些问题。
我们只代表您,提供独立建议、透明指导,并让您接触所有可售房源,包括私人及未上市的独家机会,这些往往不会被他人看到。

想知道如何获得您自己的私人房产顾问吗?联系我们,了解我们如何代表您的利益并为您打开整个市场。

特点

太阳能面板
Alarm system
空调
所有权转让
要价
€ 1.100.000 k.k.
状态
beschikbaar
接受
in overleg
建筑
房屋类型
Herenhuis
建筑类型
twee onder een kapwoning
建筑时期
2021
能源评级
A
屋顶类型
zadeldak
卧室
4
浴室
2
表面积和体积
生活区
195 m2
其他室内空间
6 m2
体积(立方米)
720 m3
地块大小
290 m2
设施
Mechanische ventilatie
Alarminstallatie
Tv kabel
Airconditioning
Dakraam
Glasvezel kabel
Zonnepanelen
Balansventilatie
Aan rustige weg
In woonwijk
Vrij uitzicht
Beschutte ligging
Baerz & Co Property Brochure

宣传册

视频

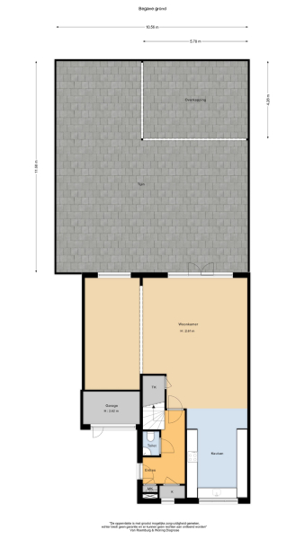
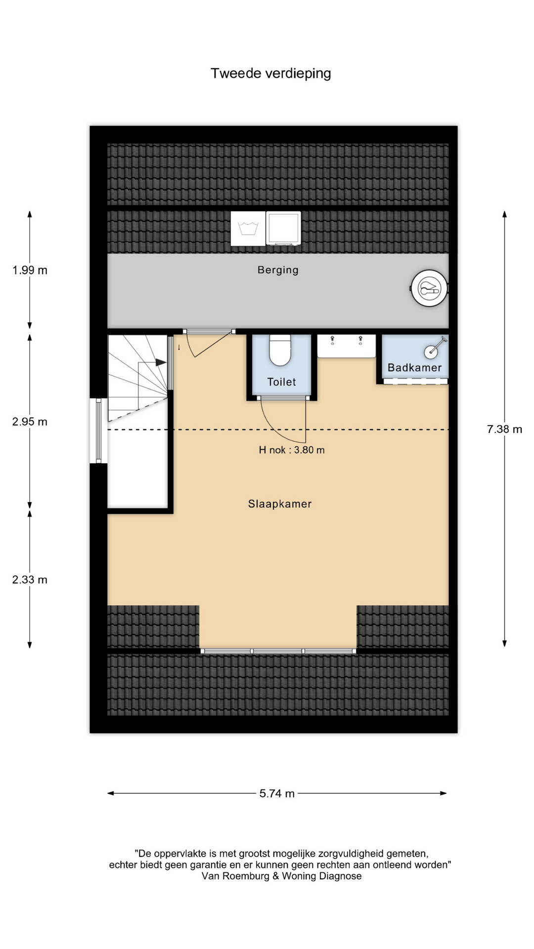
户型图

Korver makelaars

Stationsweg 12
3641RG Mijdrecht

welkom@korvermakelaars.nl
+31 297 25 04 21

www.korvermakelaars.nl

信息/查看请求

John Korver profile image
John Korver
Real estate agent